查看完整案例

收藏

下载
- LJ - 李忠光专访- 本项目位于枣庄,一座融科技创新基地与丰富旅游景区于一身的新兴城市。借由自然风物的雕琢,萃取人文精神的精华,设计师联手亚迅集团致力于打造一处集办公、商务、休闲、体验的多元复合性空间,以刚柔并济、古今相依的空间场域展现不同寻常的东方韵致,成为这座城市新的印记。
大巧若拙,大盈若冲,大智若愚。拙是一种形态,也是一种心境,更是一种智慧。
01
RESPECT
敬意
居敬行简 自有格调——何为敬意?《论语》说:“居敬而行简。”即心中认真慎重,而行动简要分明。极简与留白,是空间的风骨。大道至简,淡极始艳,寥寥数笔,意蕴无穷。
P. 01
自副楼,经园林,再到主楼。空间动线行云流水间浑然天成。光影明灭,韵律分明,移步换景,渐入佳境。整个园林沐浴在自然的气韵中。
设计师运用简约凝练而饱含敬意的现代设计手法,将池水与石景陈设其中,巧妙平衡与协调颜色、材质与比例的美感,将园林规划与行为动线完美融合,使人自在游园中享受宁静安逸。
设计师删繁就简,解析重组,对室内空间做集合性构造与重叠,打造丰富而有辨识度的层次感。以横平竖直的极简笔触,勾勒出空间轮廓与轨迹。
墨分五色 丹青如画。黑白视界之外,中国红以惊艳之姿摇曳人之心魄。朱泥映山水,日晷共春秋。方与圆,实与虚,鳞次栉间显露出东方文化举重若轻、博大恢弘。
高堂素壁,明窗净几。一楼室内陈设温润静雅。置身其中,品味空间与自然的共鸣,领略生活的真谛,就是对空间最高的礼敬。
02 NATURE 自然 以光为媒 道法自然 - 在中国古典哲学的语境中,道的最高准则是“常无为而无不为”。万物恃之以生,万物之所为即道之所为。故道虽无形,却可有为。如何见道?曰:道法自然。
设计师在构想中遵循这一理念,没有风格的常规限制,而将主导空间力量的角色让渡给了另一个重要的元素——那就是光。
居于二楼,抬头而望。
主楼以贯穿楼层的天窗为诗眼,以自由变幻的光为点睛,赋予建筑更为丰赡而跌宕的空间叙事。
光穿透建筑,直击感官,和光同尘。万物静默而自有真意。光赋予空间与人的能量,生生不息。
传统民居建筑中的天井元素,让天与水、光与影在此交融,流动的生命力焕发了无限可能。
俯察而下,一楼光影相映。诗意盎然的境界与自然浑然一体,更暗藏着四水归堂、凝气聚财的美好寓意,为置身其中的人带来会心的默契。天时、地利、人和,尽在不言之中。
业主本身具有深厚的文化修养和鉴赏能力。瓷器展厅、艺术长廊、收藏室、酒窖,满足业主的休闲与审美需求。
孵化为未来生活所期待的空间矩阵,建造出全新的互联互通、包罗万象的艺术阵地。
03
FREE FROM VULGARITY 脱俗
兼收并蓄 自由开放
-
集办公、商务、休闲、体验为一体的多元复合性空间。
本项目各板块开合自如,承担不同的空间功能。
让人获得一种或开放或私密的自由状态,让空间体验获得更为广泛、多元的人文关怀。
水吧、茶室、休闲区提升了会客与社交的功能用途。无论是内部交流还是接待访客,都应对裕如,塑造更加亲密和谐的人际关系与交往方式。
现代化办公区。适合年轻人的高效协作又不乏家的温暖。高灵活性的空间布局与高效专业的办公设备,激发员工的创造力。直通空间园林的动线,更有利员工劳逸结合。
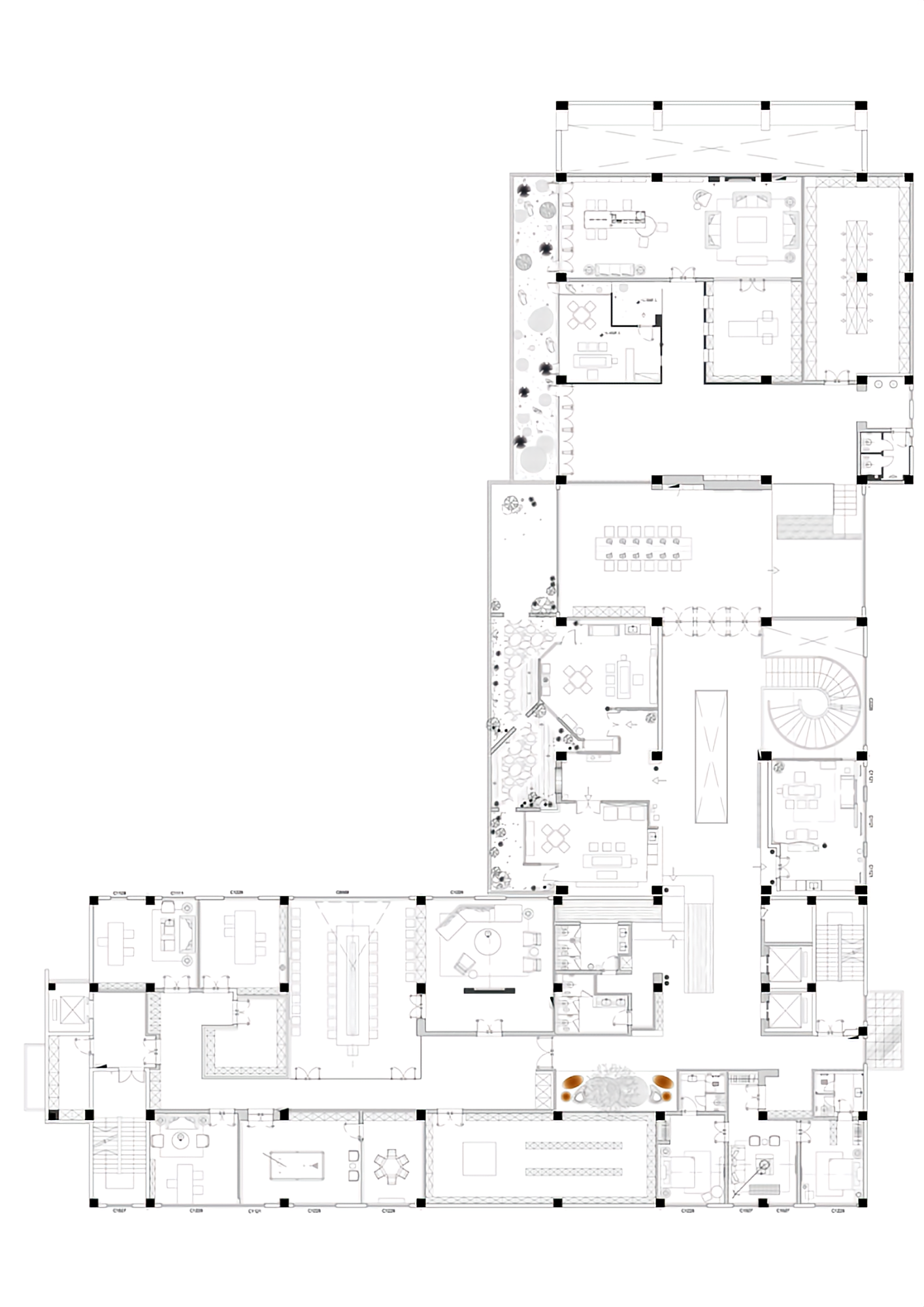
04 ANALYSIS DIAGRAM 分析图
1F 平面图
2F 平面图
3F 平面图
- 项目名称:见拙
- 项目甲方:亚讯集团
- 总设计师:李忠光
- 室内设计:李忠光设计事务所 CHASING DESIGN 启呈
- 参与深化设计:徐平凡 吴弟 周瑜
- 驻场设计师:徐平凡
- 建筑与结构设计:刘长杰
- 建筑改造设计:李忠光
- 景观设计:黄松林 李忠光
- 景观施工图深化:广州申美园林团队
- VI 导视设计:温万里
- 软装&照明:CHASING DESIGN 启呈
- 工程负责:广东启呈装饰工程有限公司
- 项目地址:山东 枣庄
- 项目摄影:黄缅贵
- 特别鸣谢:周咏平 吕立永 李荣 郭睿 李杲马健 宋烨 冯顺 张超群 鲍勇 马雷
李忠光,中国建筑装饰协会设计委员会委员,澳门国际设计联合会成员,启呈® 创始人。从事设计行业二十余年,行业人称“李校长”,他始终坚信“以作品说话”的原则。在遵循空间本质的同时,凭借敏锐的洞察力和创新思维,设计并呈现全新的美学体验与生活想象。其设计范围广泛,涵盖酒店、私人会所、商场、民宿、办公、高端豪宅等。作品曾荣获英国 Andrew Martin 国际设计大奖、德国 IF 设计奖、法国双面神“GPDP AWARD”国际设计大奖、美国 Best of Year Awards、意大利 A’Design Award、艾鼎国际设计大奖 、筑巢奖等 70 余项国际国内大奖。知名代表作品有《无间》、《落雪》、《后山·云》、《小白有点黑》等。
客服
消息
收藏
下载
最近





























































