查看完整案例

收藏

下载

翻译
Architects:Estudio Autónomo Arquitectura
Area:455m²
Year:2023
Photographs:Javier Agustin Rojas
Manufacturers:Indigo Lumieres,Marcelo y Castaño,Mobler Studio,Patagonia Flooring,SQL AMOBLAMIENTOS,Simon Ibañez Duran,Urbantek
Lead Architects:Arq. Alasino Mauro, Arq. Bustos Ramon
Collaborators:Indigo Lumieres
Landscape:Ignacio Van Heden
Program:Single family Home
Covered Area:325 m2
Semi Covered Area:100 m2
City:Mendiolaza
Country:Argentina
Text description provided by the architects. Villa 471 is a contemporary testament to modern architecture. Situated in the Sierras Chicas of Mendiolaza, Córdoba, this residence redefines the concept of modular housing through the use of heavy profiling and concrete, blending robustness with elegance.
The placement of the house on a sloped terrain presented a unique challenge, resolved with an open ground floor that allows for harmonious integration with the natural surroundings and takes advantage of orientations to maximize energy efficiency and views.
The modular construction allowed for a systematic production process in the factory and precise on-site assembly, achieving high-quality standards, reduced construction time, and cost optimization. One of the most notable structural elements is its 4-meter cantilever, an engineering feat that required meticulous structural planning to ensure its stability and safety.
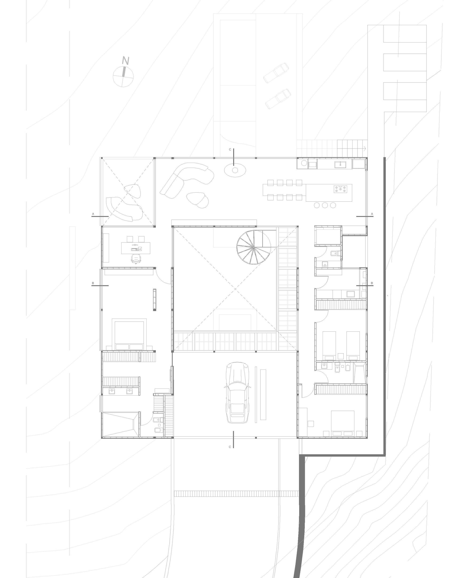
The design of Villa 471 centers around a cloister, which acts as the core of the home’s life and functionality. This central space not only fosters connection between the different areas of the house but also becomes a sanctuary of peace and tranquility for its inhabitants.
The villa’s envelopes are made with shaped panels, providing speed in project execution without compromising quality. Additionally, the integration of advanced home automation technologies transforms the project into a smart home, where comfort and efficiency are in perfect harmony.
Villa 471 is not just a home but a masterpiece that encapsulates the vision of a contemporary and sophisticated lifestyle, in an environment that celebrates nature and architectural innovation.
Project gallery
客服
消息
收藏
下载
最近

























