查看完整案例

收藏

下载
我们能否汲取成功律师事务所的 DNA 并将其转变为现代、开放和通风的空间?我们如何将团队合作与复杂或谨慎的会议结合起来?我们的解决方案反映了当代世界的动态和灵活本质。
我们改变了陈词滥调,大律师的房间必须有高绒毛地毯、皮革俱乐部椅子和低调的大厅,在它的头上。我们从客户的工作及其关键产出——合同中汲取灵感。在我们的案例中,是与设计的合同。一份为律师提供精致空间的合同,他们需要焦点室和团队合作空间,经常在家工作,但需要经常使用现代技术,这些技术主要是基于云的。
自 1992 年进入捷克共和国以来,Allen & Overy 建立了良好的声誉。布拉格办事处现已完全融入其由全球 44 个办事处组成的国际网络。今天,法律实践通常是为初创项目、大型收购或小型 IT 革命提供的复杂咨询服务的一部分。我们的客户甚至做出了非常规的决定,放弃了布拉格市中心的“高级”地址。
我们在与设计的合同中定义了四个关键点。首先,公司的国际和本地知识在云端融合在一起。其次,我们所有人每天都在踏上一段旅程——工作,进入文件页面,进入复杂的流程。第三,法律对我们来说意味着结构——部分、从句和项目具有内在逻辑,相互补充和制约。最后还有一个签名,是旅途尽头的一盏明灯,是我们共同契约的第四点。
对我们来说,另一个重要的启发是对合同进行微调的过程,其中精确的措辞是绝对必要的。在起草合同时经常使用荧光笔和便利贴,以便于定位。这两个元素都影响了设计。
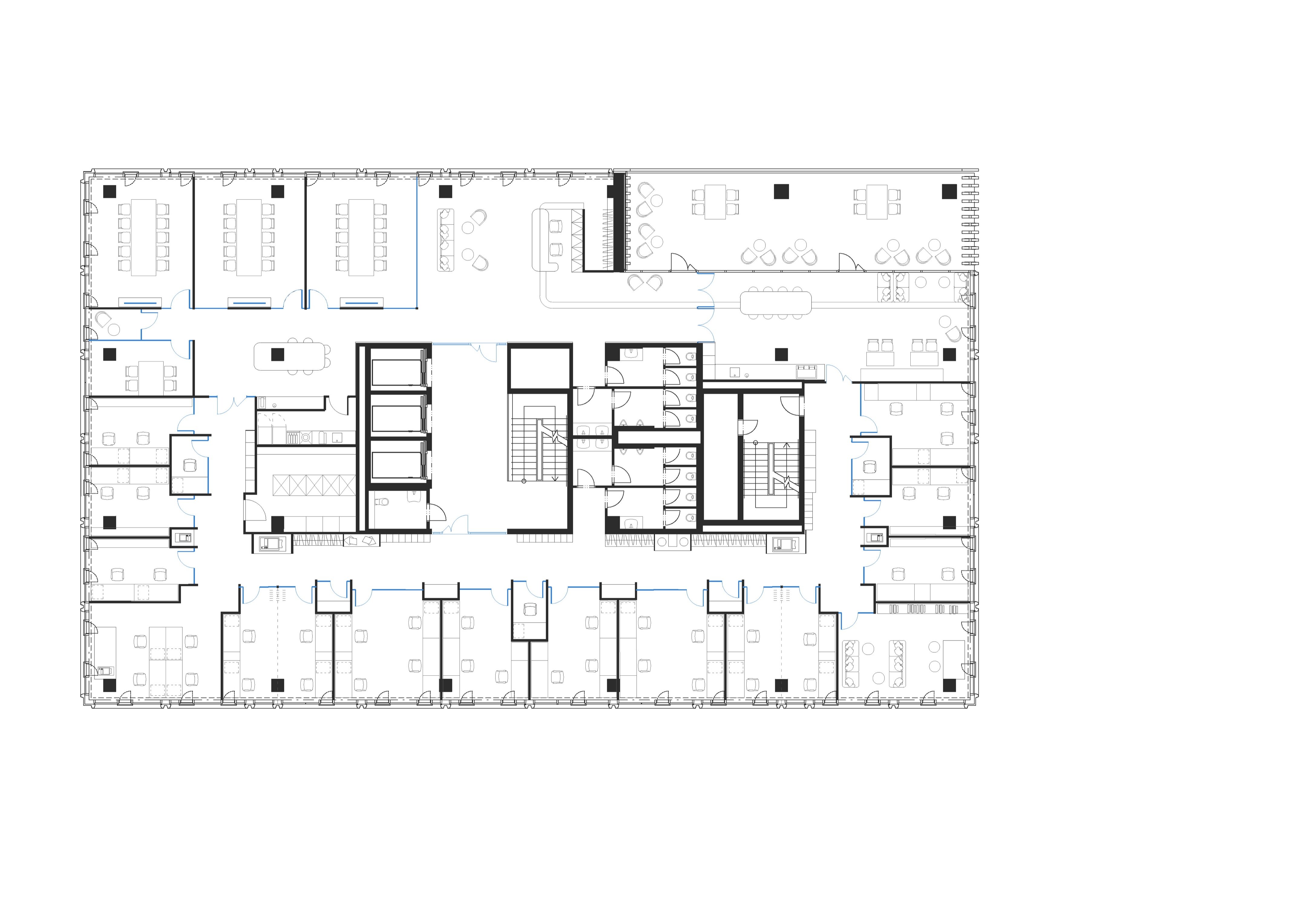
空间和规划关系也很重要:从静室和焦点室到公共区域或客户空间。主要的视觉轴穿过大厅并提供向外的视野。与第一个垂直的两个辅助轴定义了两条走廊。他们的视线通向开放空间,可以看到周围的城市景观。作为会议空间的角落也非常重要。在办公室中间,围绕垂直流通核心,我们放置了云。
该设计使用层次结构和空间分区。它是从两个方面定义的,由云和金属文件柜。旅程打开到角落,穿上酒吧和招待会。办公室、会议室和休闲室在文件柜和立面之间形成一层。
内部分区概念反映在建筑立面上。客户占据了大楼的两层。垂直线划分办公层,在立面和文件柜之间插入隔板。靠着隔墙放置的桌子与金属柜齐平。一个私人图书馆、一组会议室、一个露台和一个开放的办公空间占据了平面图的四个角落。这一层的中间部分被分配到各个办公室。那么便利贴呢?我们根据它们的最初目的使用它们——用于定向系统,引导通往个人房间的道路。
我们与 Allen & Overy 的合同底部的尖锐设计非常闪耀。它变成了贯穿整个室内的线性照明装置。这些弯曲的红色轮廓的原始灯成为我们自己的标志——我们与设计达成协议,这些灯是我们闪亮的标志。室内其他部分使用的红色落地灯与线性吸顶灯相得益彰。
提出高绒毛地毯和昂贵钢笔的象征意义不再与法律服务相匹配。谈判、教育、理解和个性更合适。这就是为什么 Allen & Overy 会所设有图书馆、休闲室和咖啡吧的原因……
平面与结构图:
设计师:Studio Reaktor
坐落:Prague / 2021
语言:English
客服
消息
收藏
下载
最近























































