查看完整案例

收藏

下载
say architects 的新办公室坐落于街边,比邻钱塘江,相较于以往隐私性较强的办公区域,街边则面临更大的开放性挑战。say 希望新的办公室可以取消传统的办公模式,将休闲置入工作区,以使用者的需求为切入点,探寻更具生活化的开放办公空间,为每一位使用者带来更舒适自在的工作体验。▽办公室外观© Wen Studio
入口与社区街道相连,将人行道砖延伸至外摆区域,门口的景观区域与 hang bar 外摆区域相连,让办公室拥抱社区自然。100*100 的工字钢作为外立面结构的基础,贯穿室内外,向外挑出的牛腿结合绳索,让景观植物顺着绳索攀爬生长,横向的钢管则预埋雾化喷淋。工字钢向内横贯,则为室内书架的爬梯提供支撑,裸露的钢架作为建筑脊柱在室内随处可见,营造更为轻松有趣的办公环境。▽立面分析图©say architects
▽入口处© Wen Studio
▽外立面的钢结构© Wen Studio
办公室内一层的整体区域用作办公活动使用,凭借层高的优势向内置入了三个维度的盒子:大会议室、楼梯以及模型室,并排的区块分割使得每个功能区使用连贯。现浇混凝土楼梯作为连结的体块,为了使其呈现地更有温度,在支模时覆盖布料,脱模后呈现布料的自然肌理。楼梯上则保留支模时的孔洞,作为扶手的固定点,扶手使用螺纹钢,原始建筑材料的搭配让空间呈现更为归真。
▽顶视透视分析图© say architects
▽首层办公区© Wen Studio
▽办公区良好的采光© Wen Studio
▽工区钢制的爬梯架© Wen Studio
▽办公区细部© Wen Studio
大会议室悬挑在一层上方,底部无落柱,根据结构巧妙设计使用抱箍与梁相接。大会议桌根据使用习惯,桌面宽幅做了前窄后宽的倾斜角度,确保每位参会人员都获得完整浏览体验。大会议室地面为现浇穿孔楼板,保证光线流通。▽轴测分析图©say architects
▽大会议室© Wen Studio
▽从首层看向大会议室© Wen Studio
整体办公区域则坐落窗边,超宽幅的落地窗确保了充足的阳光采集,自然光线的引入,让空间不再过于追求过度人工打光。落地窗同时带来光线直射的问题,但为尽量保证窗外绿植景观的完整,搭配天幕作为遮阳。
▽模型室© Wen Studio
▽从工区看向模型室© Wen Studio
▽从模型室看向工区© Wen Studio
办公区域的功能区布局契合使用者的工作习惯,工作区位于中央,通过材料收纳柜作软隔断分隔三张办公桌,工位背面即是可随手拿取的各类材料,确保设计灵感不间断地在现实中具象呈现。▽软隔断对工区进行空间划分© Wen Studio
▽软隔断细部© Wen Studio
工作区周围则是生活化的休闲区,搭建材料墙供设计师研讨,依墙设立一面书架作阅读区,临近处摆放了提供茶饮的水吧台,转角沙发提供休息讨论场所。每个区块毗邻却无实体分隔,打破工位限制,让休闲与工作共在一处。▽阅读区© Wen Studio
▽沙发休息处© Wen Studio
办公区域边缘的内间作模型室使用,整体为木结构,柔和的暖调打光配合温暖的原木材质,营造灵感作坊的氛围。收纳柜体将所有材料分门别类,便于使用者拿取。模型室背面的窗户连接着 hang bar 行也行吧,使模型室同样也作为对外的观察窗口展示。▽楼梯© Wen Studio
hang bar 行也行吧作为办公室的衍生,其承载了展陈的功能。根据 Hang(悬挂)的想象,四周的方钢及中央可升降的钢架框均作为了展览的关键,利用裸露的结构实现悬挂陈列艺术,为空间带来无限的可能。▽可升降钢架©say architects
▽hang bar 行也行吧© Wen Studio
say 一直都在与人讲述不同的故事,故而社区办公室同样也是服务于人,消除形式主义,回归“人”的探索,空间在功能与温度之间寻找得平衡,让每一位使用者获得获得正向的能量与愉悦体验。▽大会议室搭建©say architects
▽天幕细节©say architects
▽楼梯搭建与建材细部©say architects
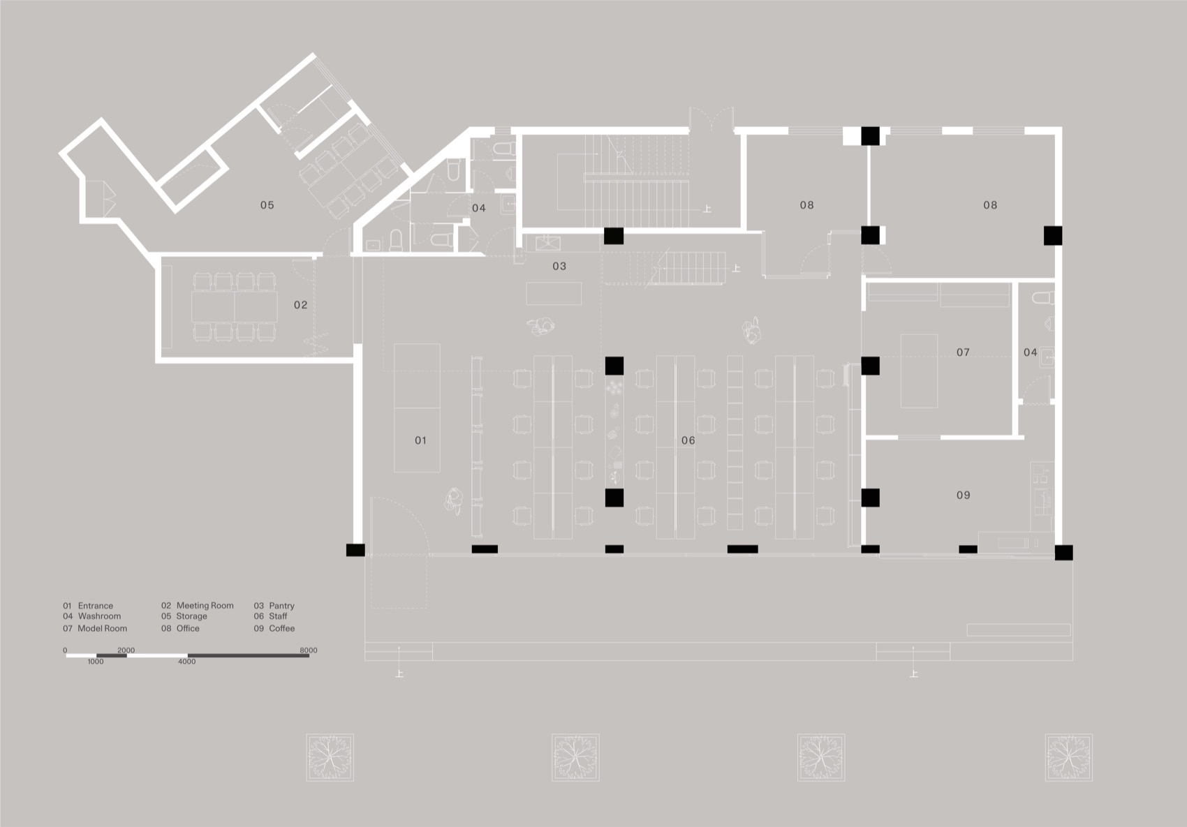
▽平面图©say architects
say architects 社区办公室
业主:say architects
状况:完成
年份:2023
面积:285sqm
地址:杭州市上城区之江路
项目类型:办公空间
设计公司:say architects
主持设计:张岩、单嘉男
团队:孙紫益(项目主管)、王佳、叶金、兰丹娜、陈达超(分析图)
施工图:金铁军
空间摄影:Wen Studio
灯光咨询:TRACE 光迹照明设计
施工团队:上海中耕装饰设计有限公司、杭州优办装饰有限公司
景观设计:去野 · 二旦植物工作室
结构咨询:XTRUCINSTITUTE 未知结构
家具制作:浙江诺隐家具有限公司、品初家居设计公司
材料供应:上海嘉岚建筑科技有限公司、上海日朗门窗有限公司
家电洁具品牌:Panasonic 松下、LAUFEN 劳芬
家具供应:吱音、Enjoy Space、Home Gallery
客服
消息
收藏
下载
最近













































