查看完整案例

收藏

下载

翻译
Architects:Sens Architects
Area:2000m²
Year:2024
Photographs:Wu Qingshan
Lead Architects:Zhang Juntian, Sun Hongfei
Engineering:Su Qinjun
Clients:Longnan Stock Economic Cooperative in Gaoqiao Street, Tongxiang City
City:Jiaxing
Country:China
Background. Old Houses by the River - Longnan Village has vast farmland, trees, and rivers winding north to south, presenting a natural pastoral scenery. The site is adjacent to the water, There was an old house in a dangerous state and an old sycamore tree that accompanied it from beginning to end. history and an office building that provides services for villagers, and create a new party and Public center in Longnan Village.
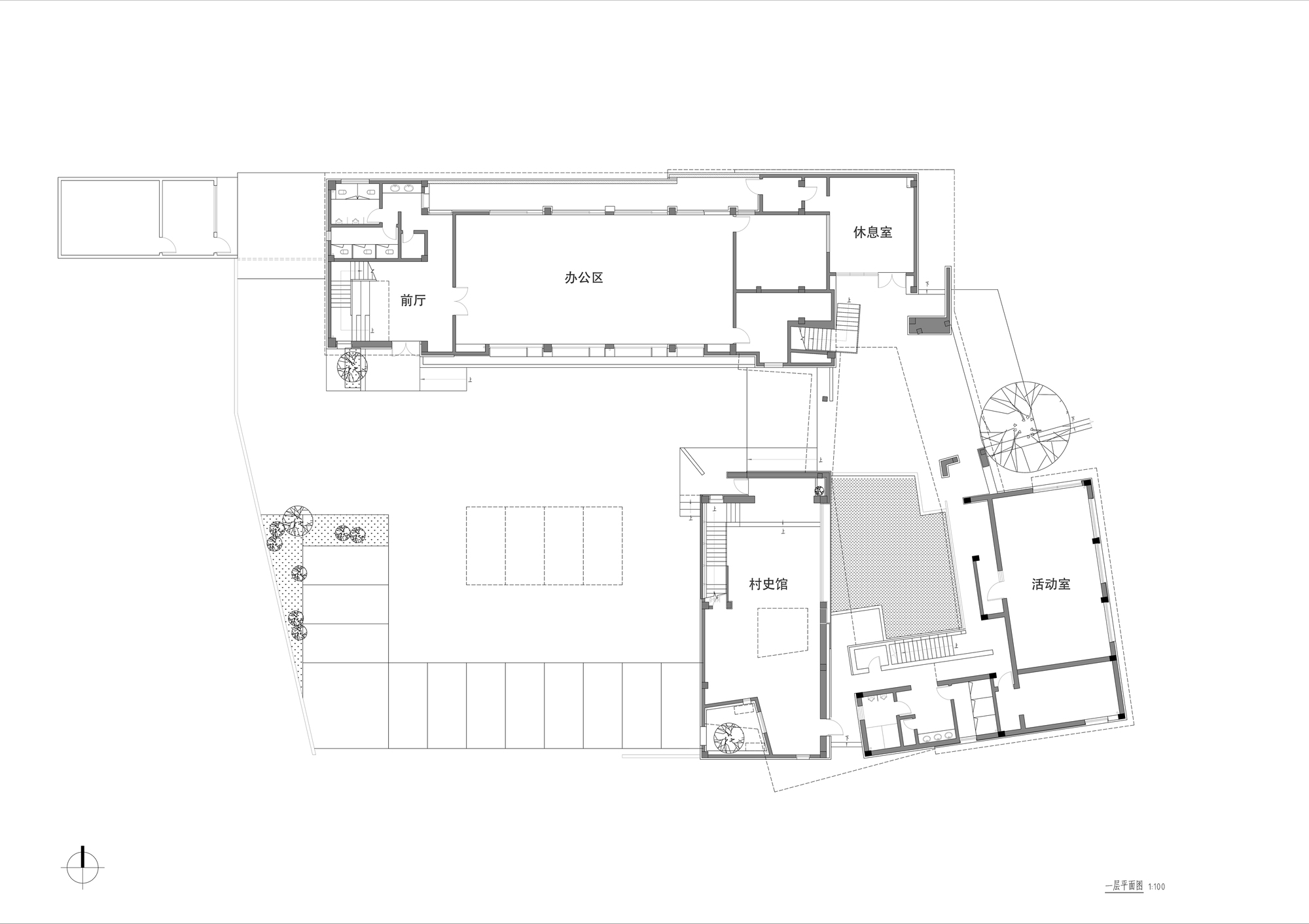
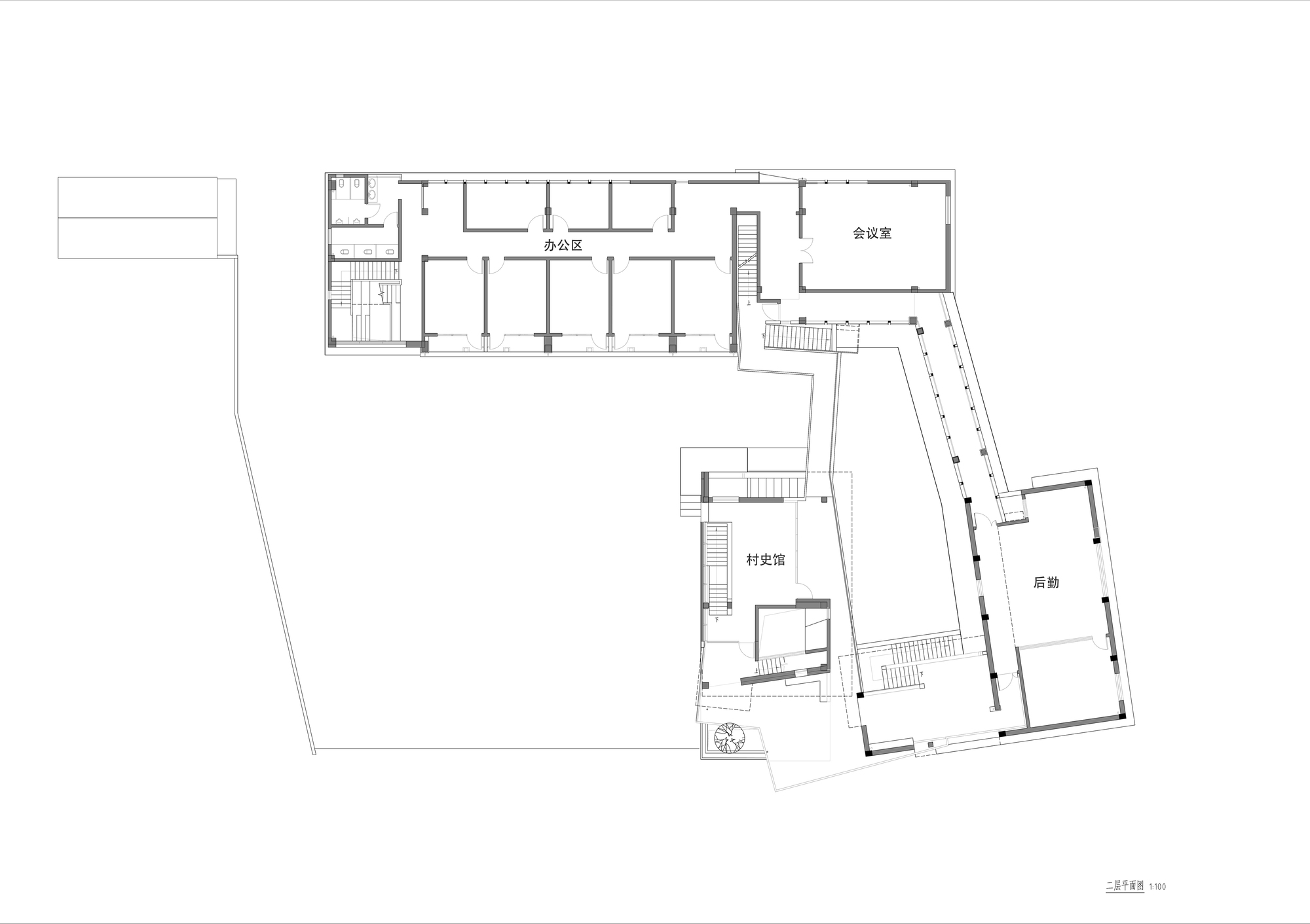
Site. Water Courtyard -Courtyard- Large Courtyard - The design aims to continue the texture of rural settlements under the humanistic context and organize the Party and Public Center layout and the Historical and Cultural Museum by courtyards. After the demolition of the warehouse, half of the site will be rebuilt, and the other half will be enclosed with the preserved buildings to form an inner courtyard, providing visitors to the cultural center with a public leisure area. While learning about history, they can also feel the courtyard space with traditional culture.
The original square within the venue should be preserved as much as possible, becoming a party and mass courtyard with parking and distribution functions as the main functions. The spatial sequence pattern of "water courtyard, courtyard, large courtyard " incorporates the surrounding environment into the architectural cluster, and orderly sorts out public and private areas to meet different functional needs, forming a site feature with rural cultural spatial identification.
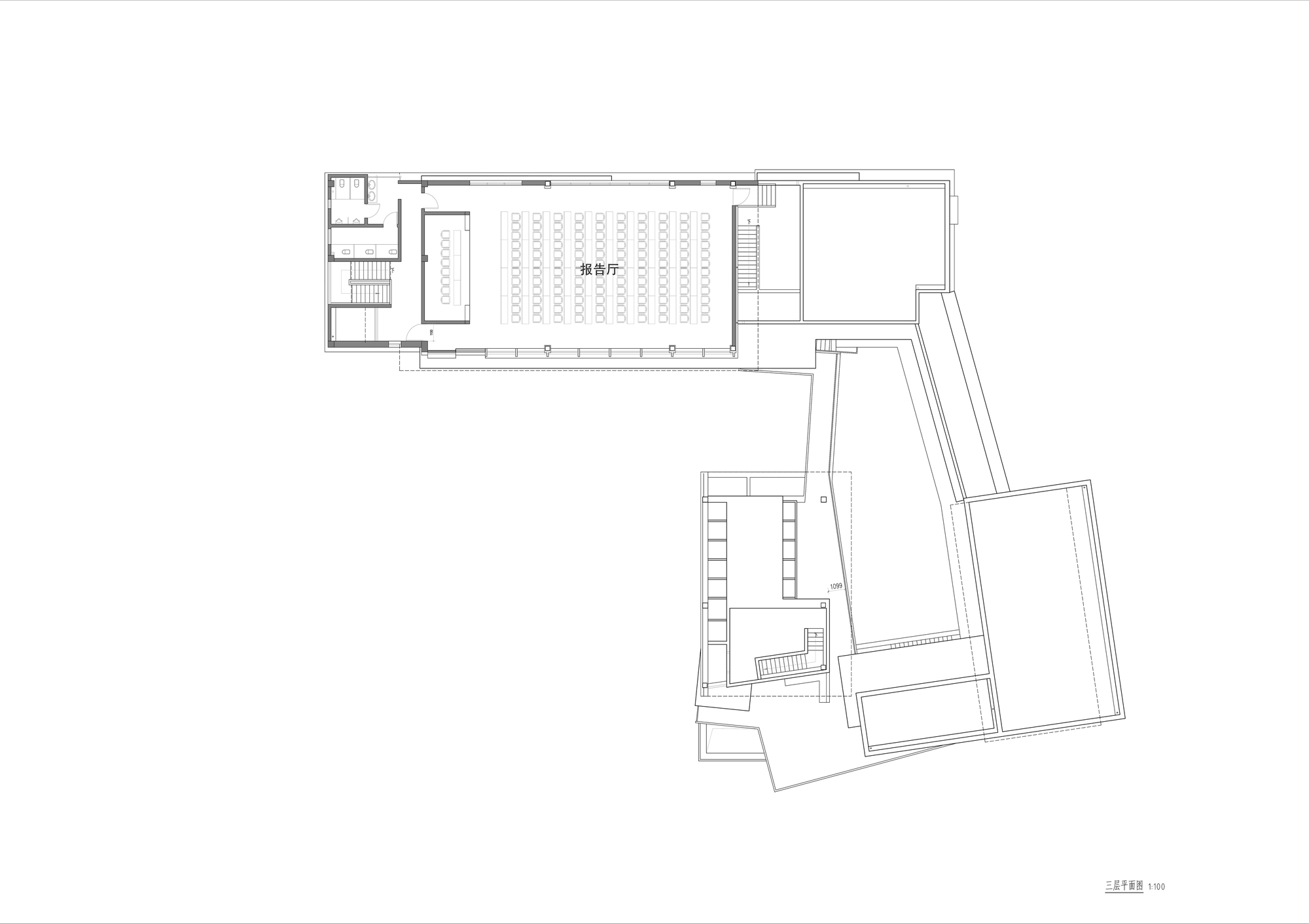
Design. The Story of the Bridge - The bridge in the water town is like a microcosm of the cultural context here, relying on unique environmental conditions to create multi-level spatial experiences with embankments, rivers, steps, etc. Crossing the river along the bridge and entering the buildings, the design takes the shape of a "bridge", with the courtyard as the center, connecting new and old buildings with various functional areas. The composition of the "bridge" system includes the external corridor of the building, the connecting corridors between clusters, and the indoor corridor, which takes the main traffic flow as the main focus, and runs through the entire courtyard and building clusters.
The design uses terraces, semi-outdoor areas, or vestibules to transform space and function at the turning points and important intersections of the path. This streamlined system also gathers some vertical transportation space, from the entrance to the courtyard, from the exhibition hall to the rooftop platform, all of which have become important spatial nodes in this travel route. Each entrance and exit platform is connected to the corridor, creating a winding and elegant atmosphere. Combining the ups and downs of steps and steps, it guides the flow of people and orderly traverses through various architectural spaces, listening to the story of Longnan Village from the “bridge house”.
Project gallery
Project location
Address:Jiaxing, China
客服
消息
收藏
下载
最近






































