查看完整案例

收藏

下载
▽项目视频© 知吾设计
知吾设计工作室位于北京市朝阳区,项目周边环境为一个艺术园区,在180平方的面积里,我们直接将空间进行切分,更好的满足了多的办公需求。
▽室内外关系© wm studio
设计灵感:来自于简单的几何体,我们通过在墙体上挖几何形空洞,看到了阴阳的虚实,看到了空间的流动且整体的形态。通过这些大小且形状不一的几何型空洞,可以增加空间的通透性,让每个空间都互相连接,这样在增加了空间的趣味性的同时还增加了室内的自然采光。
▽项目概览 – 一个上下错落有致的开放空间© wm studio
空间处理:我们将原始的建筑空间,通过增加夹层,丰富空间,增加了更多的使用面积。金属楼梯凌空而上,二层小隔间利用错位的空间设计表现手法,架起了上下错落有致的空间结构,是一个出其不意,令人眼前一亮的合理空间。空间之间的空间比空间本身更具有意味,但也容易被忽略,正是由于“之间”的多元性和复杂性以及它的不确定性,空间之间变得无限可能。
▽轴测分析图© 知吾设计
▽以简单的几何形体为灵感的空间设计© wm studio
进入工作室会先经过一个小的围合式的景观庭院,我们通过透景的设计手法,很好的将室外景观在视觉上延申至室内空间中。入户右手边利用了高差的设计手法打造出一块下沉式的交流及休闲空间,使整体空间更加富有层次感,也能实现空间转换与功能区域之间的错落感。
▽由办公空间看休闲空间© wm studio
▽下沉式的交流及休闲空间细部© wm studio
▽俯视下沉交流及休闲空间© wm studio
光线处理:我们利用软件模拟了原有建筑室内空间在被太阳光照射的情况,根据模拟情况,我们在前后墙面、屋顶上增加几处大小不同的开口,保证室内有均匀的自然采光以及通风性能。在午后的阳光对室内空间的照射下,营造出一种温馨而又自然的空间氛围,并且随着时间及太阳高度的变化,室内光线缓缓移动,呈现光线上的“通透”。
▽太阳光线在室内空间的氛围营造© wm studio
▽光线的通透© wm studio
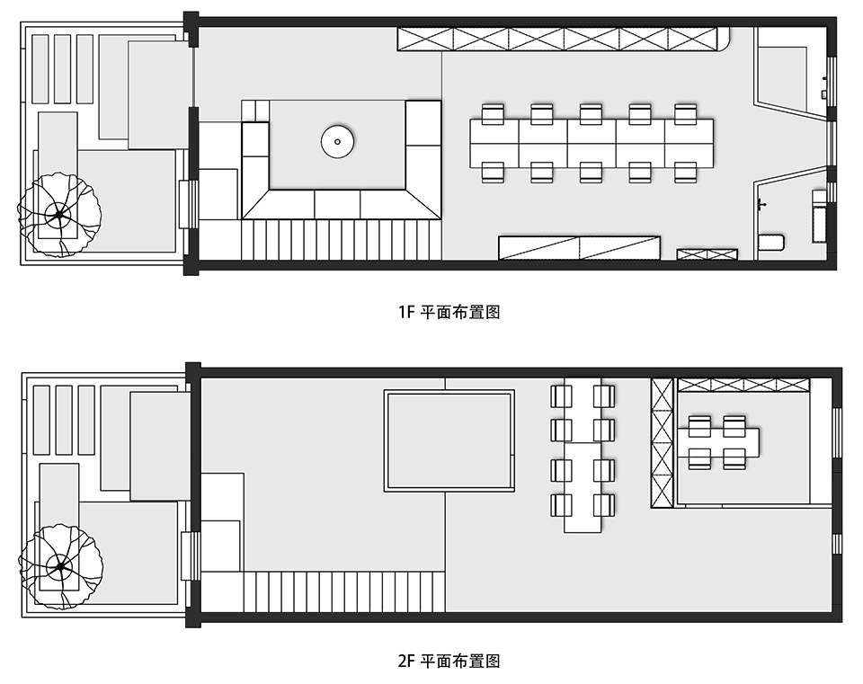
主要办公区设置在一楼,用不同于整体的地面铺装材料来区分了空间的功能,左边为办公辅助和水吧台,右边作为材料展示区和阅读区,中间则为公共办公区域,在动线上使得整体动线呈回字形,方便了工作人员的流动与沟通。
▽回字形动线的公共办公区© wm studio
▽公共办公区© wm studio
▽几何体量的穿插© wm studio
▽由阅读区看公共办公区© wm studio
▽办公区近景© wm studio
▽办公区细部© wm studio
▽材料展示及阅读区© wm studio
▽材料展示及阅读区近景© wm studio
一层最里面用两个不规则几何体将空间分割开来,左边为工具房,右边为卫生间,中间则为玻璃门,这样让后院的自然采光很好的引入到室内空间之中。二层的空间功能主要分为会议室、接待室、休息室。其中“小盒子”作为休息室来使用,给办公晚归的人员提供了私密的休息场所。
▽会议室© wm studio
▽接待室与“小盒子”休息室© wm studio
材料处理:对于新加建的空间体量我们采用了全桦木的海洋板和黑色油漆的钢板,尽量让其呈现的简单而细腻,而对于原始的墙面和地面,我们采用了浅灰色的微水泥。我们认为设计都应该保持克制,即使使用极其简单的方式与设计手法,也可以让形体和空间更加的纯净,更素雅,而又多变化。在这里,空间之间是可以存在无限变幻的。
▽空间细部与卫生间© wm studio
▽细节© wm studio
▽平面图© 知吾设计
项目名称:知吾建筑设计工作室
项目类型:办公空间设计
设计方:知吾设计
项目设计:2021.8月
完成年份:2022.2月
设计团队:知吾设计 咎靖平 倪元
项目地址:高塔艺术广场712
建筑面积:180.2501349㎡
摄影版权:wm studio
合作方:知吾施工团队
客户:咎靖平
材料:微水泥、桦木板、自流平、烤漆板、岩板、瓷砖
品牌:微罗
客服
消息
收藏
下载
最近








































