查看完整案例

收藏

下载
© 云眠摄影工作室
近几年,从室内健身房到城市公园,从宅家躺平迈向户外自然,运动休闲消费渗透到人们的生活日常中,运动赛道也因此有了新的风向,“运动即生活”已然成为运动品牌引发消费者共鸣的流行语境。
无不例外的,过去有着精英属性的高尔夫运动,也借势完成从“小众”到“大众”的破圈;高球品牌通过门店设计、品牌传播等形式为大众展现有别于以往的高尔夫生活方式。
日本高端高尔夫运动品牌 HONMA,其中国首家“HONMA 之家”坐落于上海新天地湖滨道购物广场,DCDC DESIGN 打破原有固化的品牌零售模式,打造艺术与自然、时尚与都市、社交与娱乐糅合一体的共生情景,为都市人提供运动生活的灵感。
视频由 HONMA 提供
#01 设计程式
不局限于零售
{Not limited to retail}
HONMA,这个 1959 年诞生于日本横滨的高尔夫运动品牌,秉承着“打造具有艺术美感的高尔夫球杆”信条,从始至终坚持着自主设计、生产一体化,以精雕细琢的工艺、与时代结合的科技,向消费者传递 HONMA 的文化和故事。
图片由 HONMA 提供
面对“传承、科技、匠心”的品牌基因,DCDC DESIGN 延续全新门店形象概念“律动景观”,以高尔夫球场的起伏地形和球手挥杆的优美弧线出发,从弧形构造、自然光照到回旋楼梯,用直观且具有辨识度的方式转译出品牌的艺术运动调性和时尚都市风格。
在此之上,考虑到项目参与到了一个历史文化、潮流生活和自然景观交织的独特街区中,DCDC DESIGN 以“HONMA Resort”为概念,提出不局限于零售的设计程式,拥抱多样的场景需求,涵盖大师工坊、高球体验、悠享咖啡等,在现代都市的中心地带,为上海新天地店写下新的注解,让热爱高球的玩家们在此相聚。
空间爆炸图-一层© DCDC DESIGN
空间爆炸图-二层 © DCDC DESIGN
#02 视觉锚点
创造都市果岭 { Creating urban greens }
整个门店由 700 平方米的两层空间组成,外立面以通透的玻璃幕墙和超挑高的尺度利落地勾勒出明亮的室内环境,巨大的高尔夫球装置则作为外在的视觉锚点演绎强烈的吸睛感和震撼效果。
图片由 HONMA 提供
© DCDC DESIGN
©云眠摄影工作室
立于玻璃幕墙两侧的橱窗以阶梯式或阵列式造型呈现产品的艺术美感,连同沿街和商场内部的双入口以更开放自由的态度迎接消费者。
图片由 HONMA 提供
位于商场内部的橱窗以原木格栅带来自然的感觉,高球运动场独有的地形融合在一层的橱窗内,引导来者进入延绵起伏的果岭情景。二层放射性弧线的意象回应高球运动中的挥杆轨迹和优雅姿态,打造 HONMA 的品牌个性和记忆点。
©云眠摄影工作室
#03 空间律动
木与织物交融 { Wood blends with fabric }
©云眠摄影工作室
踏入 HONMA,大片的原木和淡绿奠定空间基调,演化为地面、墙饰至柱体的室内装饰一部分,以环绕形态、柔和肌理、织物质感表达球场草地的律动感,营造空间的清新感和温馨氛围,使得消费者自然沉浸于运动的休闲松弛感。
同时,透过圆形矩阵的天花日光作为空间主照明,保证产品的主角光环外,温润的朦胧感让空间整体通亮且不抢眼。
©云眠摄影工作室
一层主要以回旋楼梯为空间轴心打造环岛式动线,依墙之间置入专业产品的陈列系统。采用纤细的金属框架,意图凸显品牌与科技感、工艺感的结合,致敬 HONMA 的工匠精神。
品牌对高球运动的专注与热情,也在服饰、球鞋和设备配件等纷繁类目所组成的经典单品中尽数体现,以兼具时尚造型感的设计美学获得受众的青睐,打造一站式购物聚集地。
©云眠摄影工作室
一个自然木质包裹起来的区块,放置着收银柜台,紧邻两侧的是试衣间。
© 云眠摄影工作室
犹如“屋子”的构造给予消费者更友好、更安心的试衣体验,连同模拟日间的天光营造至柔至暖的木质气息。
© 云眠摄影工作室
顺着空间边缘向中心收紧,让视觉重回到回旋楼梯本身,独特的构造、渐变的色彩和多重功能的承载使其成为内部空间中的视觉焦点,既是串联上下层次的垂直交通,也是大师工坊区域。
© DCDC DESIGN
© 云眠摄影工作室
HONMA 日本酒田工厂名匠为用户进行私人化球杆定制服务,以此传递出 HONMA 工匠们对每一件匠心之作的诚挚和珍视,为消费者创造更亲密的接触和更真实的体验。
© 云眠摄影工作室
图片由 HONMA 提供
#04
共生情景
拥抱多元体验
{ Embrace multiple experiences }
活力的渐变绿跃然地向上盘旋,以此为界,上下空间布局和规划流畅分明。相较于多为零售区块的一层,二层则让渡了部分零售空间,留出更多可能为消费者打造丰富的品牌体验。每个区块分布在空间各处,却有着共生的联结性,消费者在这里可以同时体验到多种场景。
© 云眠摄影工作室
图片由 HONMA 提供。木质咖啡吧台位于空间中心,半开放式布艺卡座落于玻璃幕墙旁,来往客流在驻足挑选之余,惬意品尝咖啡和拥抱阳光,也让空间成为一个促进人与人交流、聚集的社交场域。
© 云眠摄影工作室
体验区域分布在空间边缘,由室内高尔夫挥杆模拟器、推杆果岭和 VIP 挥杆私享体验空间三大区块构成,把高尔夫球场的绿茵氛围带到都市中,真实还原球场的地形、视角和击球方式,鼓励高球玩家们尽情自由地挥杆,亲身享受运动的乐趣。
© 云眠摄影工作室
DCDC DESIGN 从“生活方式”出发,让柔和、律动落于都市一隅,以新的视觉话语重塑品牌对艺术、自然的追寻和有关于品牌工匠精神的表达,也以此回馈消费者一个收获美好的旅程。
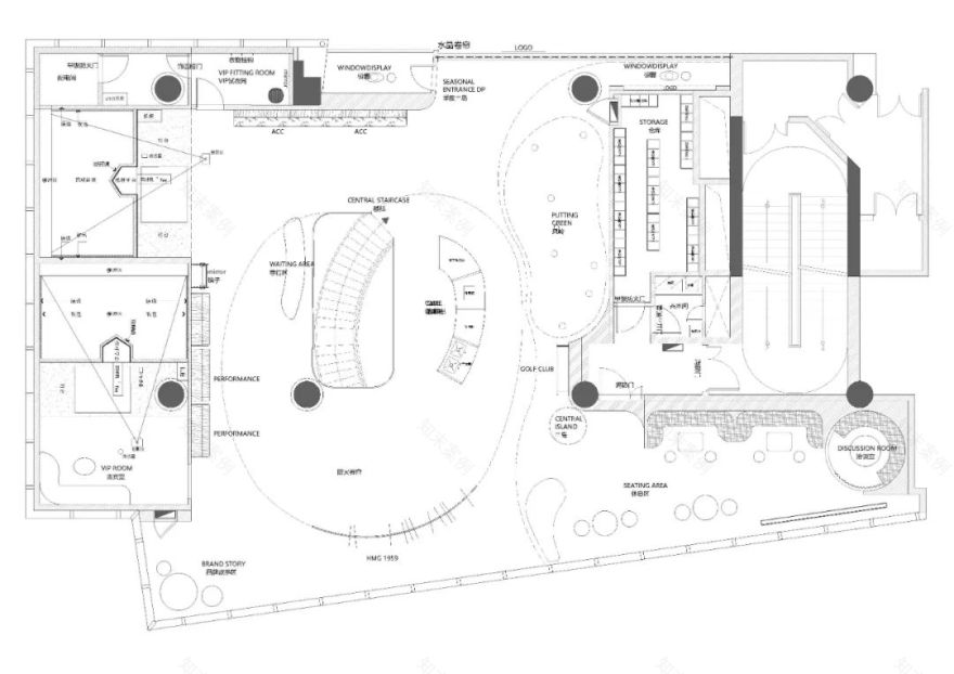
空间平面图 © DCDC DESIGN
━
项目信息
项目位置:中国上海(新天地店)
设计公司:DCDC DESIGN
设计方团队:金波-Kibo、Gianmaria、吴梦青-Ferretti
品牌方团队:卫觉锋 DEL、刘琦、徐灏 SIM
项目经理:甘泉-Enzo
平面图:吴煌-Ugo
效果图:戴明伟-Elvis、游文涛-Walker
施工图:张晓-Jack
项目摄影:云眠摄影工作室
项目时间:2024 年 1 月
客服
消息
收藏
下载
最近






































