查看完整案例

收藏

下载
向阳而生.逐光而行
以目光描摹一座城市,慢慢地对焦,再慢慢按下快门,记录这座城市里的匆忙,感知过往的行人,不乏细致得体的着装,还有向上而温暖的灵魂-MODE COMMUTER。
∇ 外立面标识1 Façade identification one ©金戎
本案坐落于带梦胡同,一个可以拿起工作又不放下生活的年轻园区。
我们希望该空间也能呼应整个园区的节奏,即要有慢节奏地沉思,又能快节奏的去回响。
原建筑空间有5米8的高度,对于一个零售商业空间来说,这高度并非是最好的选择。但单纯的为了光效去压低空间,又难免可惜。如何去利用这个高度的同时,又能有效的解决空间体量的比例。在推敲的过程中内建筑这三个字应运而生,我们决定由内做始点,利用原建筑的两根柱子,在原空间基础上做了一层飞檐结构。有效在保证建筑体量的同时,增加了空间的层次感。为了尽可能的去体现飞檐的轻盈与悬空感,在结构的加固上花了不少功夫,得益于施工方的竭力配合。
∇ 原门面 The original facade ©慕尚集团
∇ 外立面 The exterior ©金戎
∇ 外立面取景框 Facade viewfinder frame ©金戎
∇ 侧玻璃墙内看结构 The inside structure view from side glass walls ©金戎
∇ 造型顶的体块处理1 Bulk treatment of molding top one ©金戎
∇ 造型顶的体块处理2 Bulk treatment of molding top two ©金戎
∇ 造型顶的体块处理3 Bulk treatment of molding top three ©金戎
生长的力量
退去原建筑的外衣,裸露出粗糙的水泥柱,它所表达出来的那种与生俱来的力量感正是我们需要的。
我们决定保留其原始的状态,作为一种力量的支点,飞檐从柱子上衍生出来,向着阳光的方向生长。
在飞檐的色彩上,我们选择了暖色,一股带着温暖的力量迎向太阳。
∇ 原始柱与体块的穿插结构1 Interspersed structure of original column and the block one ©金戎
∇ 飞檐外生长结构 Growth structure outside cornice ©Jhoneslee
∇ 入口右侧结构 Structure of right side entrance ©金戎
∇ 入口左侧结构 Structure of left side entrance ©金戎
结构与光的关系
解脱灯的束缚,迎接光的普照。为了最大程度的减少灯对造型的打扰,我们进行了往复推敲和测试,最终选择了线型灯,利用不锈钢灯槽实现上下打光,使光能柔和的洒下来。
∇ 照度报告1 Illumination report one ©品光照明
∇ 照度报告2 Illumination report two ©品光照明
∇ 光的处理方式 The processing method of light ©金戎
空调系统放置在试衣区的墙内和中岛柜子内。
是在机电工程、结构工程、家具工程三方努力下完成的,空调的走管从清水泥地面浇筑时就预留在里面。
∇ 入口左侧结构1 Structure of left side entrance one ©金戎
地面和墙体我们选择了能体现原始状态的材料,选用了清水泥和水泥砖。
水泥砖能自然的呈现出来,得力于工程方的不断尝试和努力。
我们把水泥砖的板材按单块木纹锯开,使其能交叉铺开来,这样解决了板材呆板的拼缝线。
∇ 水泥板砖墙的穿插结构1 Interspersed structure of cement slab brick walls one ©金戎
∇ 水泥板砖墙的穿插结构2 Interspersed structure of cement slab brick walls two ©金戎
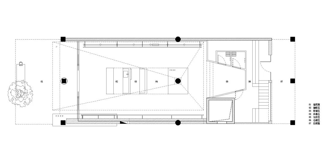
∇ 平面图 Plan ©慕尚集团
∇ 立面图1 Elevation one ©慕尚集团
∇ 立面图2 Elevation two ©慕尚集团
━
项目信息
项目位置:中国 宁波,带梦胡同
设计方:慕尚集团控股有限公司
设计团队:空间设计组
项目摄影:金戎
灯光设计:品光照明
主要材料:木纹铝板、木纹水泥板、清水泥现浇
项目时间:2023年11月
客服
消息
收藏
下载
最近























