查看完整案例

收藏

下载
01
武汉店
项目地点:中国武汉
建筑面积:914平方米
项目时间:2022年
设计总监:Wendy Saunders,Vincent de Graaf
项目建筑师:郭鹏
室内团队:陈虎,胡东凯,张旭翔
软装团队:Lili Cheng,戴维莎
摄影:WenStudio
始建于20世纪40年代的这栋建筑,曾是汉口日本租界的一部分,也是曾经的横滨银行。
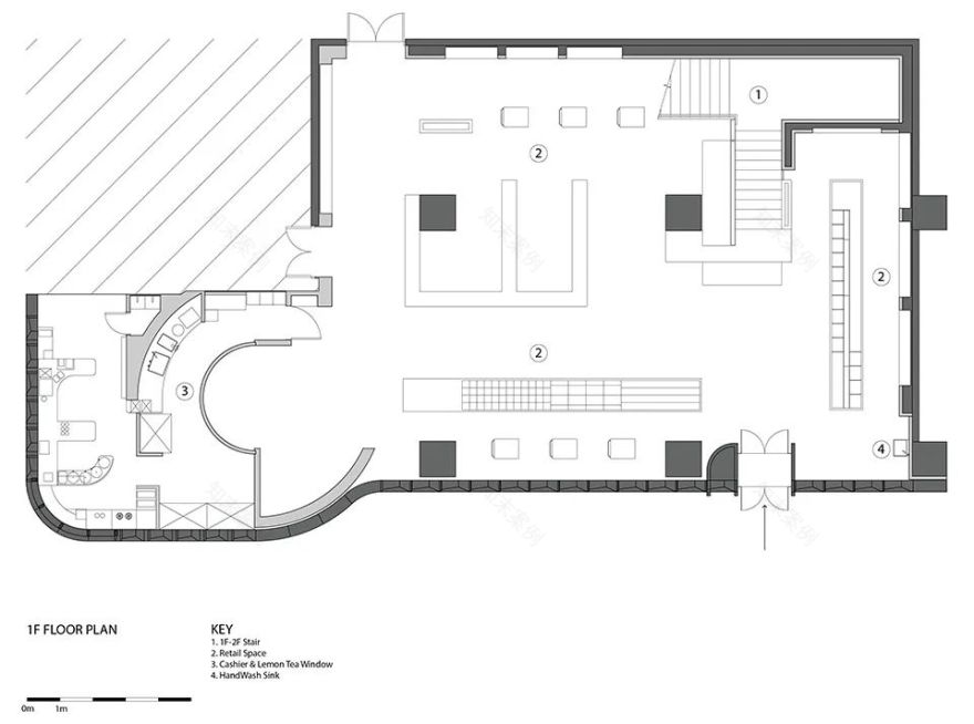
这栋建筑中三个不同的楼层代表着历史上的不同时刻。我们将材料,空间体验和细节层层叠加于这栋建筑的外壳之中,也强调了独特的时间形态。两个垂直的元素穿插在建筑中,完成着连接这些时间层次的使命。第一个垂直仓储核心筒是由机械臂管理的,长达三层的智能货舱, 另一个则是体验楼梯,宛如时间容器般引导着人们在建筑中穿梭。两者为建筑引入一种新的语言、一段对话,又恰好成为一格独立的时间层次。
古老的石头地板,体量感十足的木制家具和墙壁,安放着坚实的石墩,不禁让人想起亚洲的古董仓库。在这里,未来触手可及,不锈钢的垂直仓库。鼓励着到访者与机械臂或这个垂直空间交流。同时,展示岛、货架和收银台的排布就像熟悉的街角商店一样,让客人在空间内舒适自由地行动,舒适而无拘束。
通过镜面楼梯抵达二楼,二楼向观众们介绍着一个更加保守的形象。一进门,HARMAY話梅传统的仓储钢架整齐地排列着,唤起我们对品牌起源的记忆,在空间的中心是垂直仓库。在这里,垂直仓库的窗口和小阳台使到访者沉浸式体验着它的轻盈感。人字形的木质地板,具有装饰性的木模具和阳极氧化铝都璋示着历史长河中时间的层次。
来到阁楼的第一道风景是不锈钢垂直格子仓储与古老的木质屋顶的冲撞,展现着垂直仓库在建筑中的主导地位。这层楼的一半是开放的后仓,另一半是对公众开放的露台,也回应着”零售场所 “的理念。
项目相关图纸
02
西安小寨店
项目设计:上海无亿艺术设计工作室
项目年份:2021年
设计团队:何福孜/杨扬
项目地址:中国 西安
建筑面积:810㎡
摄影版权:Dirk Weiblen
项目落成于古城西安,一个具有着厚重的历史印记的城市。设计围绕着这所城市最为鲜明的城市符号“城墙”就此展开。
室外部分,外立面以黑色铝板和Low-E玻璃组成鳞片状模块来打造出一种工业背景下的秩序感,同时也为室内提供充足的自然采光;室内部分,将回收的老青砖,陶土砖,玻璃砖作为主要材质,把不同特质的砖体设计整合。
同时在砌筑形式上进行深化处理,上下二层之间使用了不对称钢板楼梯营造出空间上的错层感,并在楼梯延伸的终点处做了一处空间上的视觉回溯,在呼应古城墙中角楼的设计的同时使消费者的视觉重点回到一层琳琅满目的货品当中。在整个空间当中为消费者营造出一种全新的购物体验。
一层平面布置图
二层平面布置图
客服
消息
收藏
下载
最近




























