查看完整案例

收藏

下载
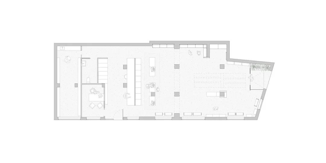
药房所在场地的条件是其设计的最大条件因素,因为它是一座建于 1940 年的建筑,是贝尼卡普街区历史中心的特色。主要前提是创造一个宽敞、明亮的地方,给人以宽敞和舒适的感觉,但又能保持建筑本身的物质性,如实心砖柱、砖石承重墙、木梁和横梁板。陶瓷制品。
在设计产品展示家具时,选择了黑色铁和白色和木质色调。
商店橱窗的架子悬挂在楼板上,没有搁在人行道上,给空间带来了更大的宽敞感。
药房的私人区域完成了一个工作区,从立面、私人办公室、厕所、实验室和仓库都有自己的入口。
欢迎关注
长按扫码关注丨让设计更高效
合作、
投稿
客服
消息
收藏
下载
最近



















