查看完整案例

收藏

下载
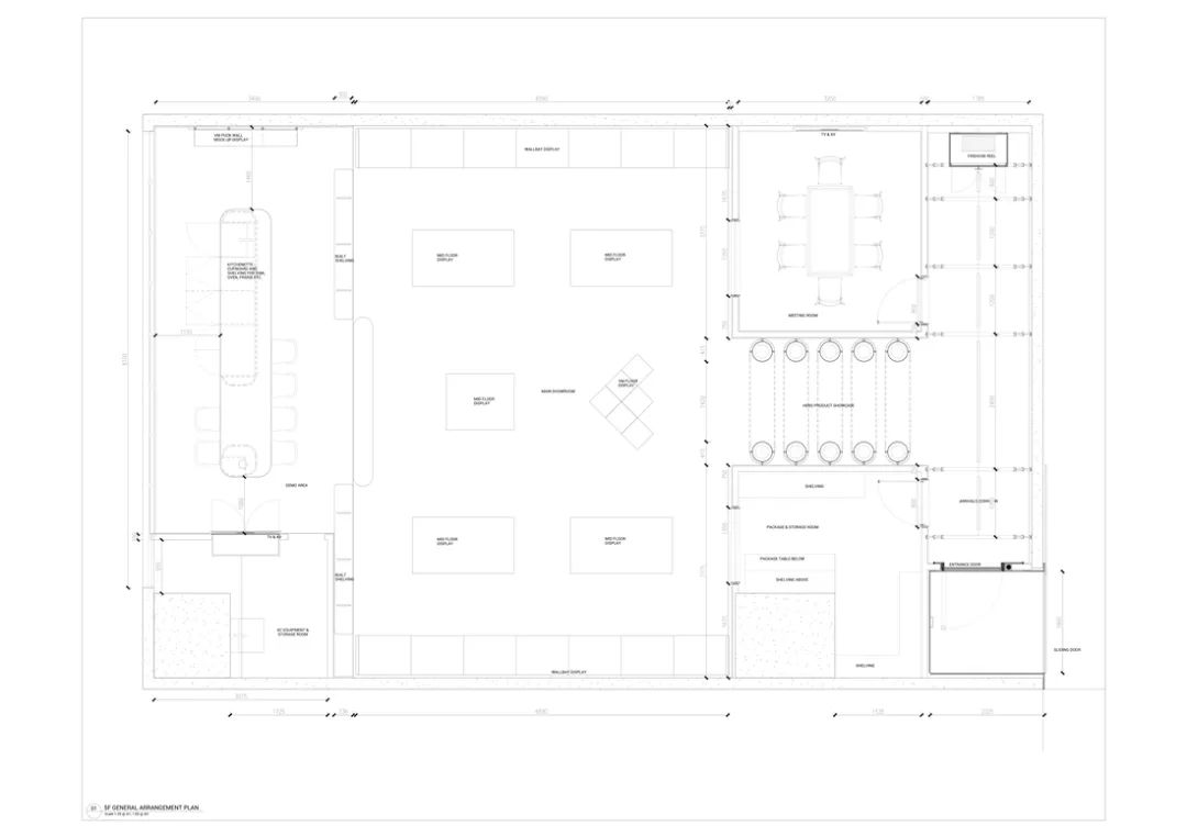
简报是将 Lee Yuen Housewares 的储藏室变成一个以客户体验为导向的陈列室,旨在让客户——Williams Sonoma 和切尔西的 Whittard 等买家——亲身体验并全面了解公司的产品范围。
我们总是通过问自己如何提高业务绩效来开始任何项目。在这种情况下,原来的空间比陈列室更让人联想到后勤储藏室。产品挤在通用货架上,没有任何销售原则或视觉层次,也没有考虑买家如何与空间和产品互动。由于产品开发业务的性质,客户的目录不断扩大,而且空间不足。
该项目涉及审计和重组 5000 多种产品,以最大限度地利用现有仓库空间。我们采用视觉营销的方法来展示特色产品,并为整个目录整合了一个带有拉出式抽屉的索引存储系统。我们重新设计了空间,让买家能够身临其境地了解公司的产品系列,并有机会在途中休息并享用饮品。观塘通常被视为不方便买家的前哨,因此部分目标是让陈列室成为令人期待的东西。
我们开发了一系列由我们的交付团队设计、原型制作和监督的定制细木工和制造项目。这些包括从画廊走秀到商品单元、大堂格子和陶瓷厨房岛的一切。我们还在厨房旁边创建了一个测试空间,让客户可以在会议期间测试销售策略,并且可以同时提供饮料和食物(使用产品制作)。
地点:香港 /
设计师:
STUDIO X
客户:利源家居用品 /
建筑面积:
140平方米
欢迎
关注
长按扫码关注丨让设计更高效
合作、
投稿
:18321662890 /
E-mail:
客服
消息
收藏
下载
最近









