查看完整案例

收藏

下载
项目背景
109Things位于南京市秦淮区莫愁路上,越界梦幻城东南门处,与朝天宫对望,莫愁路是单行道路,西面是各式五金机电商家,如今已融入多种商业业态。109Things是和委托人见面详聊后当天碰出来的名字,是一家主营进口零食、袜子、彩妆用品的商业零售空间,是非常有趣的组合。场地是街边门店,内部留有原先的钢构隔层,隔层区域上下的高度都伸手触顶,可概括为三段递进式空间和一条贯彻整个空间的过道。印象深刻的是三段空间之间的两面墙体上有两个尺寸不一的矩形窗口,透过窗口可产生一条斜向的视野线贯彻整个场地。带着较为克制的态度去塑造这个场地,围绕着三类产品展示去建立内部秩序体系。
沿街立面
入口等待区
高度-两个两米
入口处中庭层高4米,隔层区域上下层层高2米,中庭处顶部安置整块矩形软膜天花,视觉感官上这里的高度似乎更高,一直向上延伸,并且均匀柔和的光照向下方展示区。向内走,以一条通长软膜天花作为过道主照明,不强烈的区域照明对于客人在空间流线上的视觉感受也颇为友好,弱化层高产生的压抑感。隔层上在局部打开了矩形和方形空洞,打通上下界限,裸露出的钢构也呈现着过往的痕迹。
入口中庭
中庭处顶部安置整块矩形软膜天花
隔层区域上下层层高2米
楼梯
楼梯细部
材料与连接
选择刨花板、镀锌板、水洗石作为空间设计的材料语言,三类产品展示区域在空间内是相对独立而又通过材料作为媒介连接着。
入口处新增了个窗口,外面向内看去透过三层窗口看到内部却也只能望到局部,视野就像一根线串连着内部的三个“盒子”。
内部所有的柜、架、板、盒等展示方式皆以刨花板作为基底衔接,以刨花板表面的颗粒碎片和镀锌板表面的雪花纹路作为空间的立面肌理,水洗石地面也透着自然质朴的感觉,通面的水洗石也连接着内部的所有区域,模糊了界限。
分析图
袜子零售区
化妆品零售区
三类产品展示区域在空间内是相对独立而又通过材料作为媒介连接着
三层窗口增强了室内的视觉连接
窗口细部
部分墙面及展示柜内用了锡纸,揉捏出褶皱肌理的形式,镀锌板、锡纸有着不同程度的漫反射属性,对产品产生抽象的反射肌理感。人工揉捏的锡纸,机械加工而出的镀锌板配合上刨花板使立面具有节奏性的变化。
部分墙面及展示柜内用了锡纸,揉捏出褶皱肌理的形式
镀锌板、锡纸有着不同程度的漫反射属性
卫生间前部区域
展台细部
克制与接受
空间塑造上是克制的,所有展示形式皆服务于产品,在低预算的条件下去完成空间更新,材料上选用易加工低价格的,空间性质上反而呈现得纯粹且丰富,入口处敞开的折叠窗和整块的玻璃门模糊了室内外的边界。
晴天时阳光会透过路边的梧桐树照下来,部分照在外立面上产生斑驳光影,部分透过窗口照在店内,那又是另一番空间与自然的对话。
运用的材料会有自然的丰富肌理同时也须接受上面的瑕疵。
对于109Things最终是达到了预想上的好的呈现,或许材料上细节上的不完美,会留有遗憾,但接受这样的不完美。
夹层休息区
夹层空间入口
夹层细部
材料细部
天花板细部
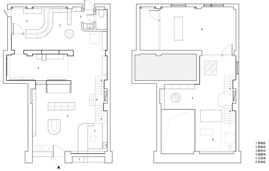
平面图
空间地址:江苏省南京市秦淮区莫愁路283号
设计公司:MUTUAL LAB
主创设计:胡啸
空间面积:1F-88平方米&2F-58平方米
空间主材:刨花板、镀锌板、水洗石、锡纸、玻璃、涂料、软膜天花
摄影版权:邱文锏
客服
消息
收藏
下载
最近





































