查看完整案例

收藏

下载
“洗尽铅华后的沉淀,平静却充满力量”
KUYE 裤爷炼金室是一家以打造手工银饰品,记录并表达匠人内心情感的艺术店铺。在这里,只想着单纯的把一件事情做到极致。2:38,作为一种传承和记载,每一件原创的手工银器都在表达他自己内心的想法,想要更完整的呈现出来,就要通过不同的手艺技法去剖析他、感受他。
在和二三沟通店铺设计的过程中能感受到他对这种散发着人间烟火气息的饰物的热爱,他更希望通过纯手工打银,为大家带来更多对生活艺术的思考。
京杭大运河畔,江南水乡的古建筑群落里,人文商业气息浓郁的街巷中,桥弄街一眼望去的青石板路上,不同时空下同一个地方的映像仿佛相互穿梭交织在一起,围绕在你我之间。
空间上采用了大面积浅奶咖系的陶土砖作为主基调,肌理质感的稻草漆作为辅助,其中穿插使用了老旧木头,锈迹斑斑的铁板,自然条件下形成的石盆点缀其间……色调与材质的舒适配比无疑是拉近了人与人之间的距离感,人间烟火的气息。
每一块砖的堆砌,整齐的序列感之中也有和谐的变化,看似规律却又打破规律,每一层层的叠加延续又似手艺人们对艺术的无限探索、打破与创新。
在后期的灯光运用与天然光线共同营造下,使得空间感的层次更加丰富灵动。复古新潮的工艺吊灯、调性十足的软装配饰,还有每一款出自主理匠人之手独一无二的手工银器,为整体空间增加了精致的美感和艺术气息。空间分解图
项目
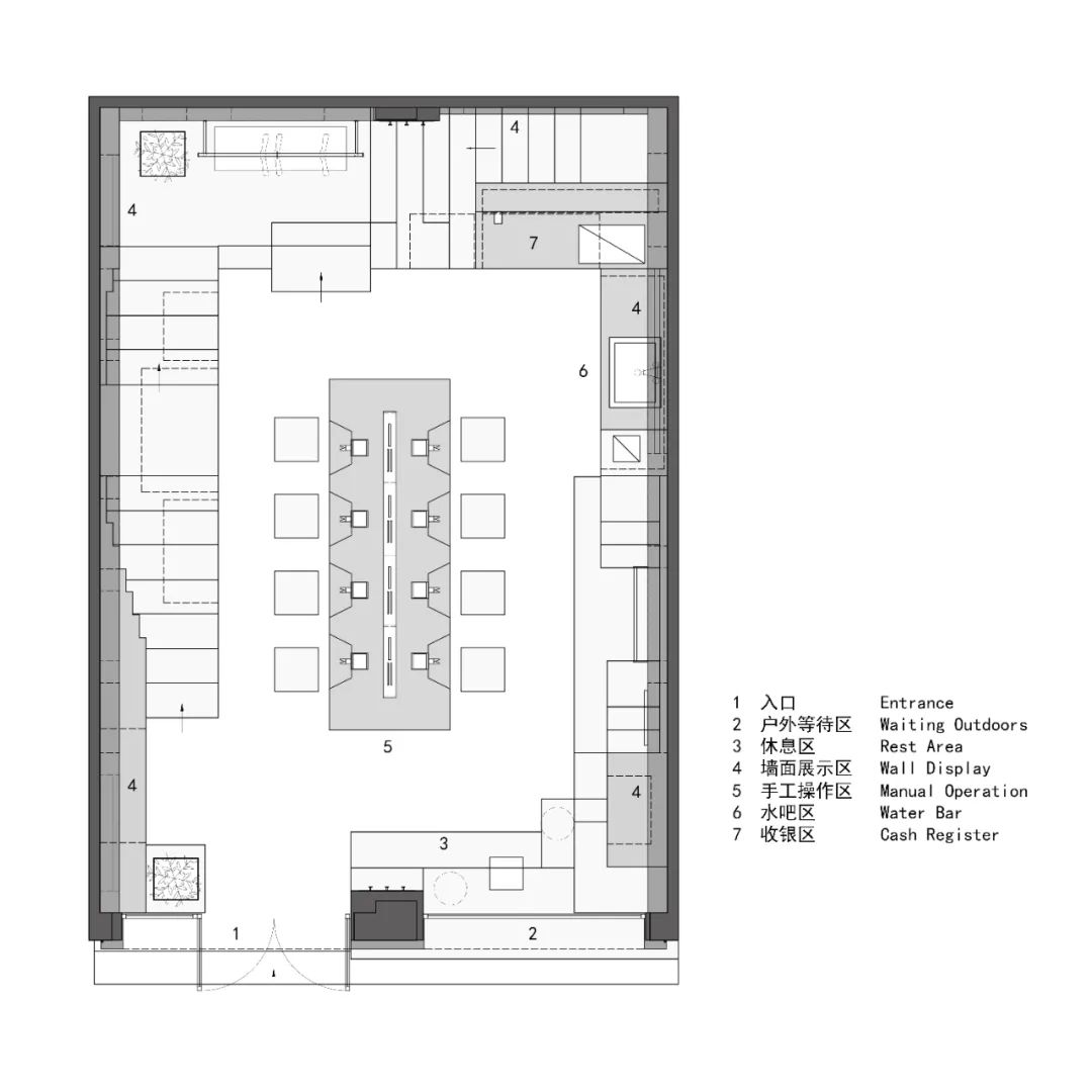
平面图
项目地址:杭州.桥弄街 27-2
完成时间:2021 年
设计公司:及上室内设计事务所
设计总监:卢 刚
项目管理:周 婷
空间设计:刘玉洁 吴君
施工团队:奥银装饰
空间摄影:稳摄影
©T5opZxn
客服
消息
收藏
下载
最近


















