查看完整案例

收藏

下载
漱石EYE OF SOSEKI,作为定位高端个性化品牌,早已从传统同质化零售中脱颖而出。
转变为由艺术家,设计师和商业品牌寻因并行的独特体验,文化融合,装置艺术等新元素的体验式消费。
本案不仅是一个常规的零售店,更蕴含着一个品牌自身的文化和魅力,而作为设计方,我们更期望通过本案,与品牌文化进行一次对话。
并将这种交流融入设计之中,为品牌作出一次关于未知旅程的探索,使整个品牌文化更具创新力量。
漱石线下体验店,在兼具展示、体验和销售功能的同时,它也将成为一张品牌对外宣传的名片。
这样一个综合性质的空间,其本身便极具戏剧意味。
因此在设计过程中,这一内在情态被作为设计线索加以思考。
正如眼镜,或柔,或刚,整个空间做完合理的动线,私密和敞开分区之后,设计师希望将透镜律动交叠的视觉效果带入到空间中,形成一种独特的视觉体验。
空间对外衔接部分采用一整面落地白玻璃,使整个店铺化身一个超大橱窗展厅,优雅而不失神秘。
顶部的圆弧造型延续了整个空间的元素,设计师希望整个空间不再像以往显得沉重、刻板与乏味。
墙身层层的凹凸肌理及其颜色变化,如同透镜在光照下的层层光晕,创造出现代感与未来感的视觉感受。弧形、流线型让空间层层推进,使其显得流畅、灵动且具有张力。天花上的简单造型灯在空间中既产生照明作用又与展柜相得益彰,空间中用纯粹的白色加以原木色突出层次感,这样简化的色彩处理手法让产品成为整个空间里最具有色彩的主角。开放式的空间结构设计让人与产品有更多的交流与互动,缩小人与产品的距离感,打破传统展柜的束缚,让整个空间更加轻松与肆意。
轴测图:
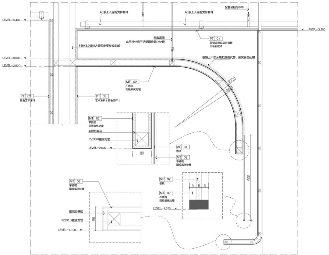
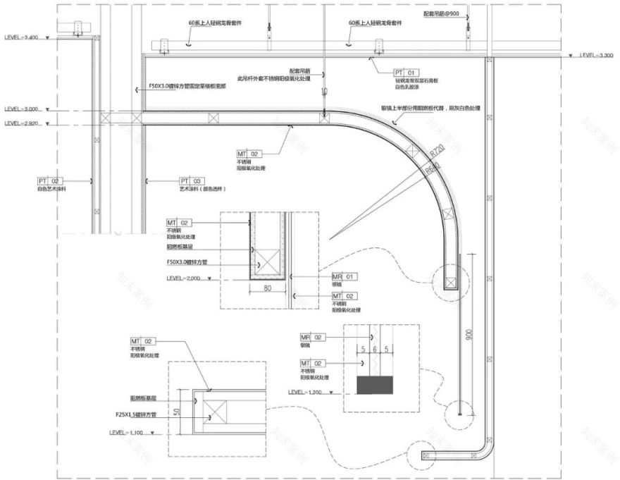
平、立面、节点图:
空间信息:
空间名称:
“漱石EYE OF SOSEKI”眼镜体验店
空间类型:
商业空间、新零售空间、体验店、眼镜店
空间地址:
杭州市黄龙万科中心
设计公司:
匠研组设计事务所
空间主材:
环氧自流平、不锈钢、黄铜、水磨石、艺术漆、玻璃钢、超白钢化玻璃、木饰面
空间摄影:
Zhang-X
客服
消息
收藏
下载
最近
















