查看完整案例

收藏

下载
WGNB为韩国流行奢侈街头服饰品牌Juun.J设计了第一家全球旗舰店。
包括一家服装店和Felt咖啡馆。
建筑师表示“黑色是一种神奇的颜色”,吸引和吸收光线,因此设计遵循“暗物质”的概念。
建筑由所有设计中都有的基本形式——圆形、四边形和三角形组成。
建筑设计理念则来自宇宙暗物质的概念。
由统一的黑色混凝土立面所约束。
临近首尔江南区多山公园,几何形状引起了路人的好奇心。
室内采用单一的配色方案。
Felt咖啡被安置在倾斜屋顶结构下的狭长区域内。
天窗沿着顶部边缘,允许一条自然光照亮下面的咖啡馆。
咖啡馆面对着一个中央开放的庭院,在庭院的中央,一棵奇特的盆栽树悬挂在火山岩坑上方。
朝庭院的窗户允许更多的光线进入室内,然而完全哑光的黑色内饰给人一种神秘的氛围。
虽然不是你的第一选择,但无法忽略的整体环境是有趣的。
首层一半空间是Juun.J时装的展示区,延续“暗物质”的概念,更具体地说,灵感来自阴影。
展示了女性试装系列,并通过光滑的地板展示了建筑内唯一的白色区域。
二楼的男装回归黑暗,在单色与各种黑色纹理的徘徊。
一个三角形的入口强调了建筑独特的坡度屋顶,而服装围绕着悬挂在天花板上的大块几何装置,展现激进的当代美学,来自巴西,德国和丹麦家具也点缀着整个空间。
“黑色是Juun.J的象征,与脱离无形存在的影子一样是黑色。
也表达了Juun的价值。
仿佛在黑暗的色彩中得到了调和。
”
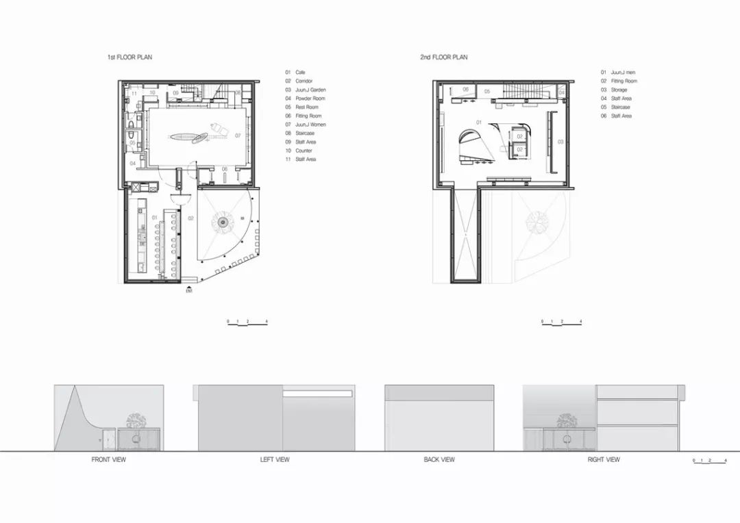
平面图
建筑事务所:
WGNB
主创建筑师:
Jonghwan Baek
项目年份:
2019
厂家:
TERRACO, Autodesk, Trimble, Unicor International
地址:
Seoul, 韩国
建筑面积:
396.0 ㎡
摄影师:
Yongjoon Choi
客户:
Juun.J
客服
消息
收藏
下载
最近
















