查看完整案例

收藏

下载
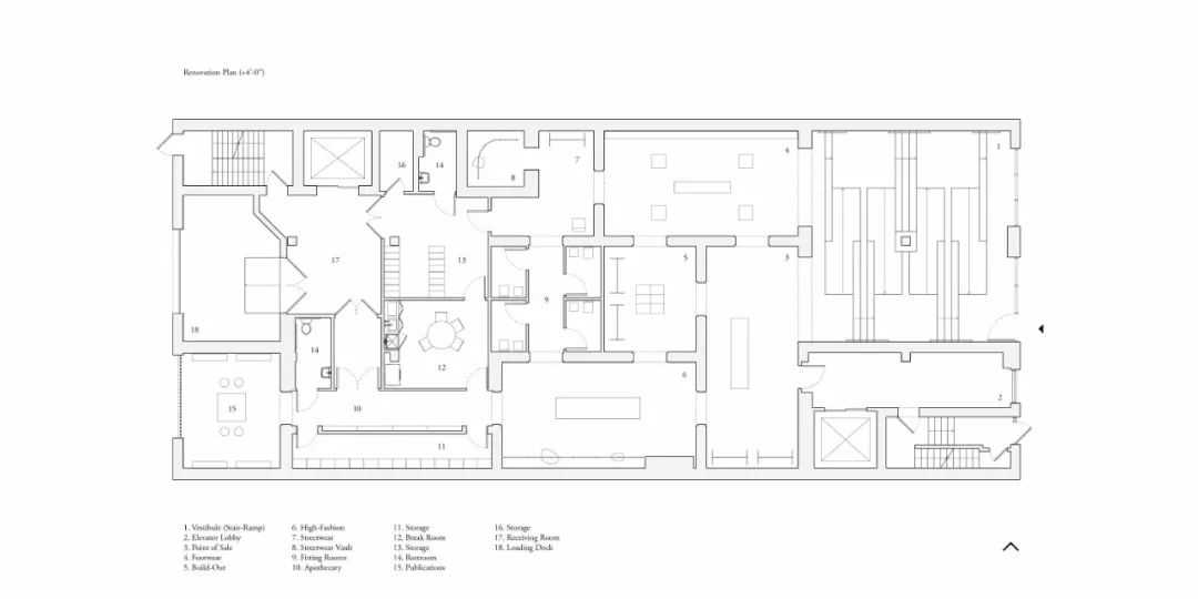
今年早些时候,notre在芝加哥西环路开设了旗舰店。由Norman Kelley公司设计,经过重新装修,该店的占地面积有所增加,这使得该店首次为女装留出了空间。增加了一个出版室,容纳精选书籍和杂志,以及一个阶梯式前厅,作为会议室或微型礼堂,重新设计提供了前所未有的灵活性,允许文化规划和社区参与。
所有图片由Chris Leh提供
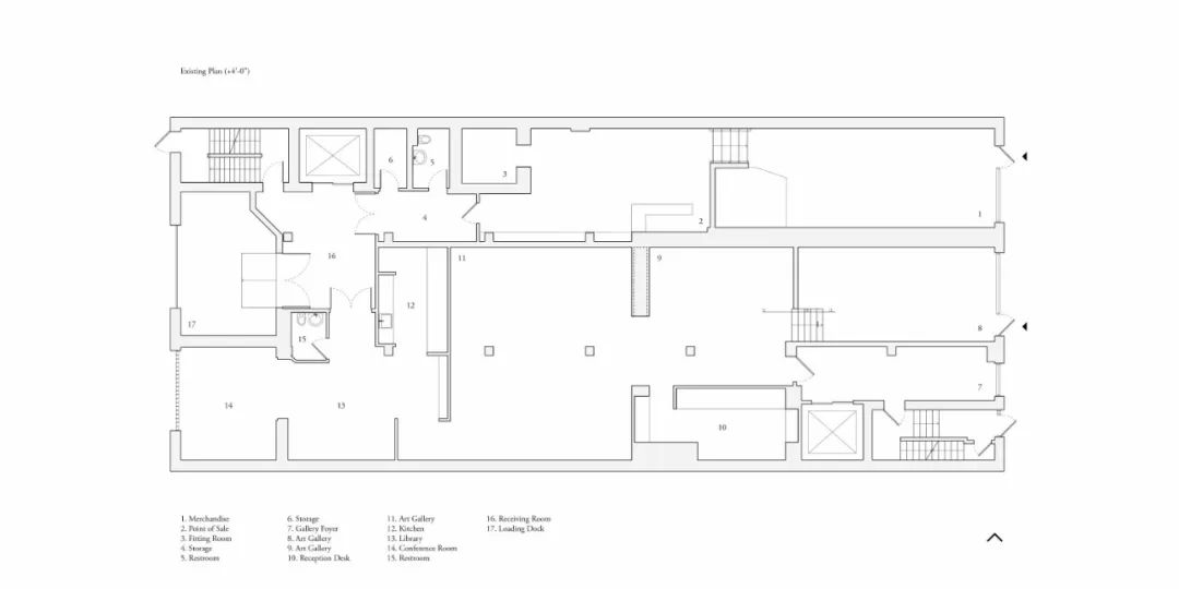
notre的旗舰店位于一座最初建于1906年的建筑的一楼,曾经是一家商业面包店锡锅制造商。
最近,这个空间是一个商业画廊,代表了迈克尔·拉科维茨、托克瓦兹·戴森和珍妮·霍尔泽等艺术家。
为了适应其分层的历史,诺特的目标是用一个国产的Enfilade或一系列紧密相连的低天花板房间来取代其仓库-画廊的起源,这些房间可以容纳各种产品,如服装、鞋类、出版物、药剂师和各种活动。
交易,”norman kelley说,他是一家芝加哥和新奥尔良的公司,由卡丽诺曼和托马斯凯利领导。
从一扇13英尺高的门进入后,游客会看到一个过渡空间,它曾经是一个装卸平台。
这个前厅覆盖着4645个当地采购的砖铺路机,包括四个缓坡,中间是低层台阶,可以容纳人行道和商店之间的三英尺高的差异。
建筑师们继续说道,多功能楼梯坡道(或称Stramp)为人们提供了一个通往以前无法进入的空间的入口,同时也提供了一套完整的定制家具,将其从循环转变为拥有80个座位的剧院。
这家商店本身已经从街上撤了出来,团队正在寻求创造一种零售亲密感。
在整个商店里,一个两英尺高的天花板掩盖了这座建筑的沉重的木材结构,以及它过去的各种机械系统。
在这里,一英尺高的木柱夹在加厚的墙壁和敞开的门框之间。
托马斯·凯利和嘉莉·诺曼于2012年创立了这家公司,他们解释说,由此形成的房间只能通过经过的视野连接,但在其他方面是分开的。
Kelley和Norman最近被耐克和Virgil Abloh选中在nikelab芝加哥重建中心内举办研讨会,在这里DesignBoom上可以看到这些研讨会的报道。
项目信息:
建筑师:
norman kelley
客户:
notre
类型:
商用
地点:
伊利诺伊州芝加哥北皮奥里亚街118号
年份:
2015年
合作者:
Isabelle Reford,Abigail Chang,Benjamin Gott
总承包商:
OSLO builders
木工/家具:
Navillus WoodWorks、-ISM、Jason Lewis
摄影:
Chris Leh
客服
消息
收藏
下载
最近




















