查看完整案例

收藏

下载
这个项目其实是很具有挑战性,拿到原始图时开始无从下手。于是我从结构、空间上去寻找问题,解决问题。随着问题的解决,发现设计其实就是分析问题到解决问题的一个过程。
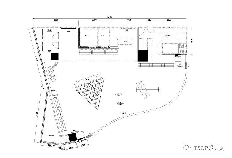
一个一百多平方的店,内部有两个机房、一个隔油池、一个设备排风井,另外还有两个消防栓。更糟糕的是在类似三角形的空间内还有两根实体柱子。该如何解决三角形的空间利用问题,如何去规整机房设备间,如何去规避利用好柱子?围绕着这些问题,对其一一做分析,一步步去解决,随后框架也就慢慢呈现出来了。整个空间围绕着两根柱子做分割。舍弃柱子,把柱子、机房、设备井化零为整,三者整理成一块区间。这区间包括了仓库、试衣区、收银区等功能性空间。
由于原
解决这些原结构上的问题后,中岛的设计又给我出了难题。在这类似三角形的空间内既要有空间感,又不能阻隔空间。如何去把握这个度,对于这个度的拿捏决定了中岛的形体。网格突然出现在我的脑海中,它即可塑造形体又可满足对空间可视度的要求。
由于空间异性的关系,顶面空调消防设备的分布就显的无序可言。杂乱的设备无论基于哪一个面来排布都显的无序。从减法上没法来解决这一个问题,我则选择加法来破解。索性放弃顶面其设备的考虑,用一排排的悬挂式灯槽来增加顶面的序列感。让其有序的灯槽来弱化无序的顶部。
在这种异性的小空间格局内,为了避免产生压抑局促的感觉,选择了用轻松的节奏去诠释这空间。白色、银色系是首选的主色调,但为了避免整体画面过于冷峻,我用了少许木色来增加整体画面色彩的饱和度。
在相续问题一个个被化解后,方案也渐渐清晰明朗。我发现有时寻找问题往往比解决问题来的更有意思。
项目信息--
设计机构:GXG店务设计部
空间设计师:张立
项目地址:广州市白云区百信广场G-107
项目面积:140平米
完工时间:2018.11
材料:白铁花板,聚酯纤维板
本文由“
GXG店务设计部
客服
消息
收藏
下载
最近














