查看完整案例

收藏

下载
本文由
原创/整理创作
本文图片设计版权来
源Onexn Architects(侵删)
”)
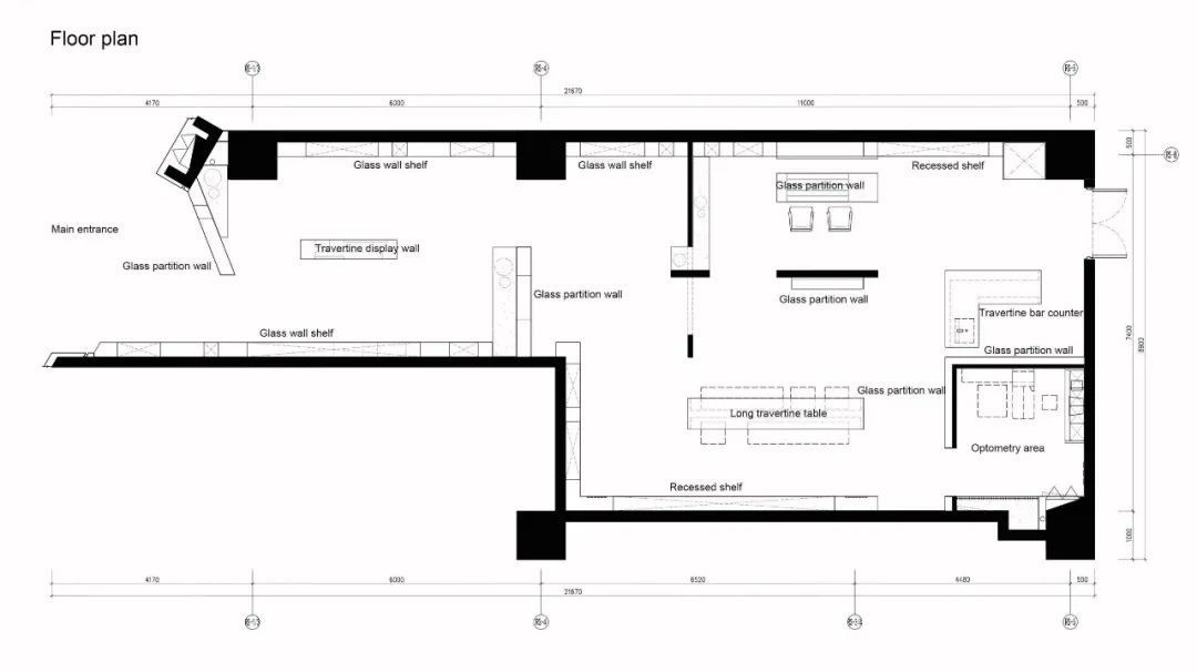
该项目位于深圳万象世界,是Onexn建筑事务所为Dishao Optical设计的新店,Dishao Optical供应多个日本品牌的手工眼镜。客户要求用一种新颖的方式来表达店内的禅意氛围,并在当代背景下诠释东方哲学。
01. 如何以非常规的方式诠释传统?
项目没有采用传统的形式来表达传统。空间不包含传统符号,但仍然可以让顾客感受到当代空间形式所产生的传统氛围。
低烧光学的品牌理念是“为有品味的人配一副好眼镜”。与工业加工制造的眼镜产品相比,手工眼镜体现了工匠的匠心、对极致工艺的追求和对完美的执着。帝韶光学提供的手工眼镜融合了日本工匠的温暖和精神。
针对低烧光学创始人对充满东方韵味空间的要求,设计团队将店铺打造成体现工艺精神的都市精神静修之所。考虑到品牌的目标客户群体是那些坚持独特品味而不是追随潮流的人,设计团队为这个品牌空间确定了三个关键词:优雅、精致和克制。经过多轮设计方案的思考,设计团队决定采用简单的几何表达工艺精神,设置夜光屏风墙形成流动的开放空间,用当代合成材料取代传统材料,激发空间的艺术张力。
店面的前区被夜光屏墙包围,形成了一个纯净完整的空间境界。这个纯净的空间从周围的环境中脱颖而出,象征着眼镜工匠的精神和追求。这家商店靠近一个地铁入口。纯净的室内空间与匆忙的路人形成对比,吸引他们驻足凝望。朦胧、纯净的明亮门厅营造出优雅的空间基调,展示了设计团队对当代东方简约美学的诠释。特卫克纸与稻草特色的涂层相结合,表达了东方美学中克制的氛围。
02. 花园旅游体验与不同的观点
内部表面插入手工眼镜显示屏。不同纹理和形式的屏风墙,或长或短,透明、半透明或不透明,将空间划分为几个区域。丰富的缝隙模糊了空间的边界,增强了不同功能区之间的联系。门的开口丰富了空间的层次,创造了一种互动的视觉体验。随着在空间中移动,视图不断变化。空气、自然、光线和能量的流动创造了一种沉浸式的氛围,让顾客暂时忘记了时间的流逝。扭转循环路线解决了深空的限制。空间后方的开放区域容纳了社交、商务洽谈、光学配件等功能,从动态的氛围过渡到宁静。设计团队将传统东方园林的游览体验引入空间中,当顾客在空间中移动时,提供不同的视角。
客服
消息
收藏
下载
最近
















