查看完整案例

收藏

下载

翻译
Architects:Martin Cenek Architecture
Area:1910m²
Year:2022
Photographs:Marek Jehlička,Martin Cenek
Manufacturers:BoConcept,TON,B&BItalia,Brokis,Catalano,Egoé,ISAN,MASKOP99,Moooi,Novatop,Zucchetti
HVAC Engineer:Ondřej Zikán
Electrical Engineering::Petr Bürger
Landscape Engineering:Tomáš Sklenář
Co Author:Tomáš Minarovič
Structural Engeneering:František Denk
Plumbing Engineer:Tomáš Balažovič
Fire Protection Engineer:Jindřiška Hüttnerová
City:Prague 6
Country:Czech Republic
Text description provided by the architects. Libocká Street, which borders the historic Hvězda (Star) Game Reserve on the north side and slopes down from Petřiny to Libocká Pond and Litovický Creek, is not very welcoming at first glance. From the south side, it is defined by fragmented original terraced housing supplemented by the remains of grand suburban villas from the late 19th century. Its northern edge is formed in part of its length by a terrain break and a downward slope.
Just above the point where the street turns and slopes sharply towards the church of St. Fabian and Sebastian in Liboc, there is an interesting, large, and formerly almost impenetrably overgrown plot of land, with several atypical features. The height difference between the street and the base of the Star Nature Reserve wall that encloses it on the south side is as much as fourteen meters, as a near-vertical sandstone cliff between eight and ten meters high divides the land about halfway down.
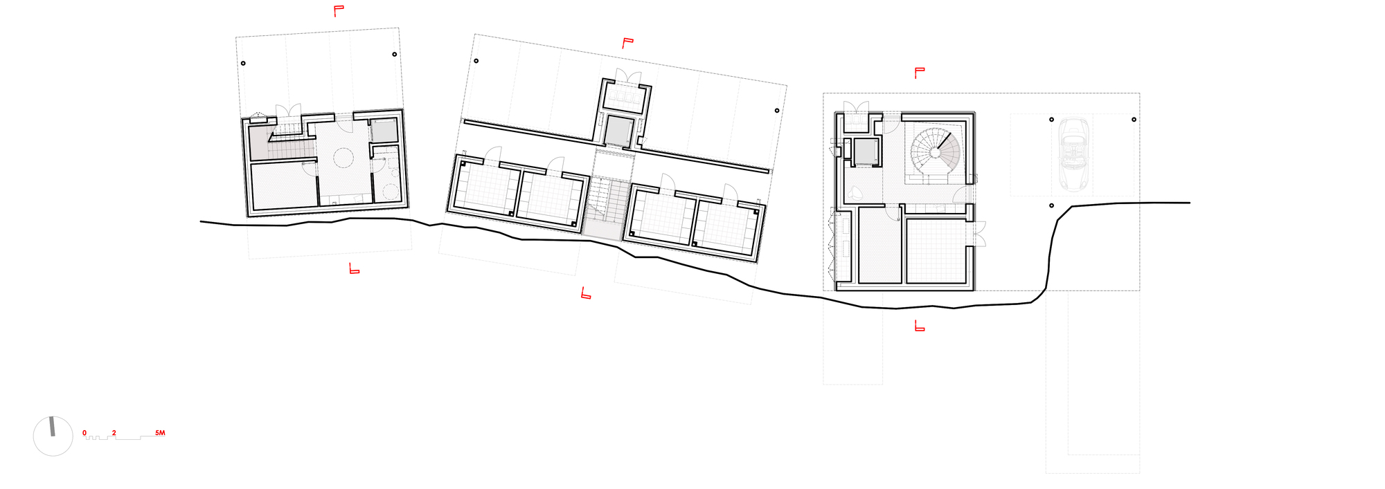
The position of the houses was based on a desire to appropriately complete the existing fabric and composition of buildings in an area that has a rural character, with houses winding along the street and following the terrain's contours. The proposed triplet of houses reflects the usual local forms in its shape, size, and roofs with the ridges oriented parallel to the street. The prominent presence of the exposed sandstone mass is a determining factor in the positioning of the buildings in relation to each other and about the overall urban design – as has been common in the formation of rural settlements throughout history. The individual houses are rotated in relation to each other and respond to the rock wall that backs them to the south. Through a gradual dialogue with clients and the authorities, the minimalist form of the houses has emerged.
The roofs of the two outermost houses were designed as hipped to soften the overall mass. A rock wall is visible through the widening partitions between the buildings. The forefront of the buildings towards the street has a more urban character (stone paving, newly planted trees), while the steeply sloping garden on the cliff above the houses is more wild and makes use of the original mature vegetation. It is bounded by the wall of the Star Game Reserve.
All three buildings are visually elevated one story above ground floor level; white archetypal abstracted masses thus visually float above the smaller footprint and materially differentiated ground floor. A combination of plain white lime plaster, natural timber, white perforated corrugated sheet metal, and glazing is used. These materials are further complemented on the exterior with galvanized steel details and grey-painted timber street fencing.
All three structures have two regular residential floors and an attic. The bottom floor serves as the entrance for both houses, while the middle apartment building has common facilities and access to the central exterior staircase, which, together with the elevator, serves the entrance floors of the residential units - two duplexes and two penthouses. The investor's family villa is characterized by a different garden area, where the main house is accompanied by the volumes of an indoor pool and an outdoor kitchen with vegetated roofs defining a terrace between them.
The interiors of all the houses have been designed in a fundamentally similar way: surfaces of exposed concrete, white plaster, oak floors, and built-in furniture in a combination of white paint and natural oak veneer. The floors in the service areas are tiled with hexagonal mosaic in two shades of grey, and the walls of all bathroom spaces and the indoor swimming pool in the investor's house are finished with light grey screed. The aim was to create a calm and simple background for the life of the inhabitants of the houses and space for quality elements of free-standing furniture. The investor's villa is also for the collection of contemporary Czech art characterized by its distinctive color scheme.
The buildings were executed as a predominantly monolithic reinforced concrete structure with exposed bottom faces of the ceiling slabs, combined with steel columns. Heating is provided by air-to-water heat pumps and hot-water floor heating. All buildings are equipped with ventilation heat recovery and air conditioning. All three houses were built in passive standard as exceptionally energy-efficient.
Project gallery
客服
消息
收藏
下载
最近
































































