查看完整案例

收藏

下载
项目名称:中国台湾新竹生物科技研究及培育中心第三期
位置:中国台湾
设计公司:JJP建筑师与规划师事务所
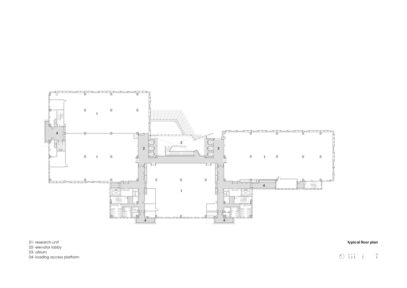
珠北生物医药园被群山、农田和空地环绕,形成了优美的研究和孵化环境。该项目是一座11层的生物医学研究大楼,台湾高铁新竹站将锚定公园中轴线的两端。该设计基于“生物核心”的概念,探索建筑如何激发人们像生命体一样对环境条件做出反应。该项目为生物技术产业提供了一个创造性的研究平台,同时融入了可持续绿色能源、技术意象和人文理念,将有机建筑提升到整体意识的水平。建筑体量的集中允许最大的开放空间,并促进与中央绿化带的连接。建筑的外部设计考虑了环境因素以交错体量,并通过参数分析,将响应转化为有节奏的开窗模式。模块化幕墙单元采用嵌入式玻璃,在必要时向太阳路径倾斜时提供遮阳,达到类似向光性的效果。建筑内部以交流和分享为设计理念,研究单位围绕一个中央中庭组织。每个典型的地板由三个不同尺寸的单元组成,可以组合成各种配置。这种灵活性由单独的用户和材料循环系统以及高效的暖通空调系统提供支持。
中国台湾新竹生物科技研究及培育中心第三期外部实景图
中国台湾新竹生物科技研究及培育中心第三期外部实景图
中国台湾新竹生物科技研究及培育中心第三期外部实景图
中国台湾新竹生物科技研究及培育中心第三期外部实景图
中国台湾新竹生物科技研究及培育中心第三期外部实景图
中国台湾新竹生物科技研究及培育中心第三期外部实景图
中国台湾新竹生物科技研究及培育中心第三期外部实景图
中国台湾新竹生物科技研究及培育中心第三期外部实景图
中国台湾新竹生物科技研究及培育中心第三期外部实景图
中国台湾新竹生物科技研究及培育中心第三期外部实景图
中国台湾新竹生物科技研究及培育中心第三期外部实景图
中国台湾新竹生物科技研究及培育中心第三期外部实景图
中国台湾新竹生物科技研究及培育中心第三期外部实景图
中国台湾新竹生物科技研究及培育中心第三期内部实景图
中国台湾新竹生物科技研究及培育中心第三期内部实景图
中国台湾新竹生物科技研究及培育中心第三期内部实景图
中国台湾新竹生物科技研究及培育中心第三期内部实景图
中国台湾新竹生物科技研究及培育中心第三期平面图
中国台湾新竹生物科技研究及培育中心第三期平面图
中国台湾新竹生物科技研究及培育中心第三期平面图
客服
消息
收藏
下载
最近























