查看完整案例

收藏

下载
“我让冲突发生在体内的节奏中”
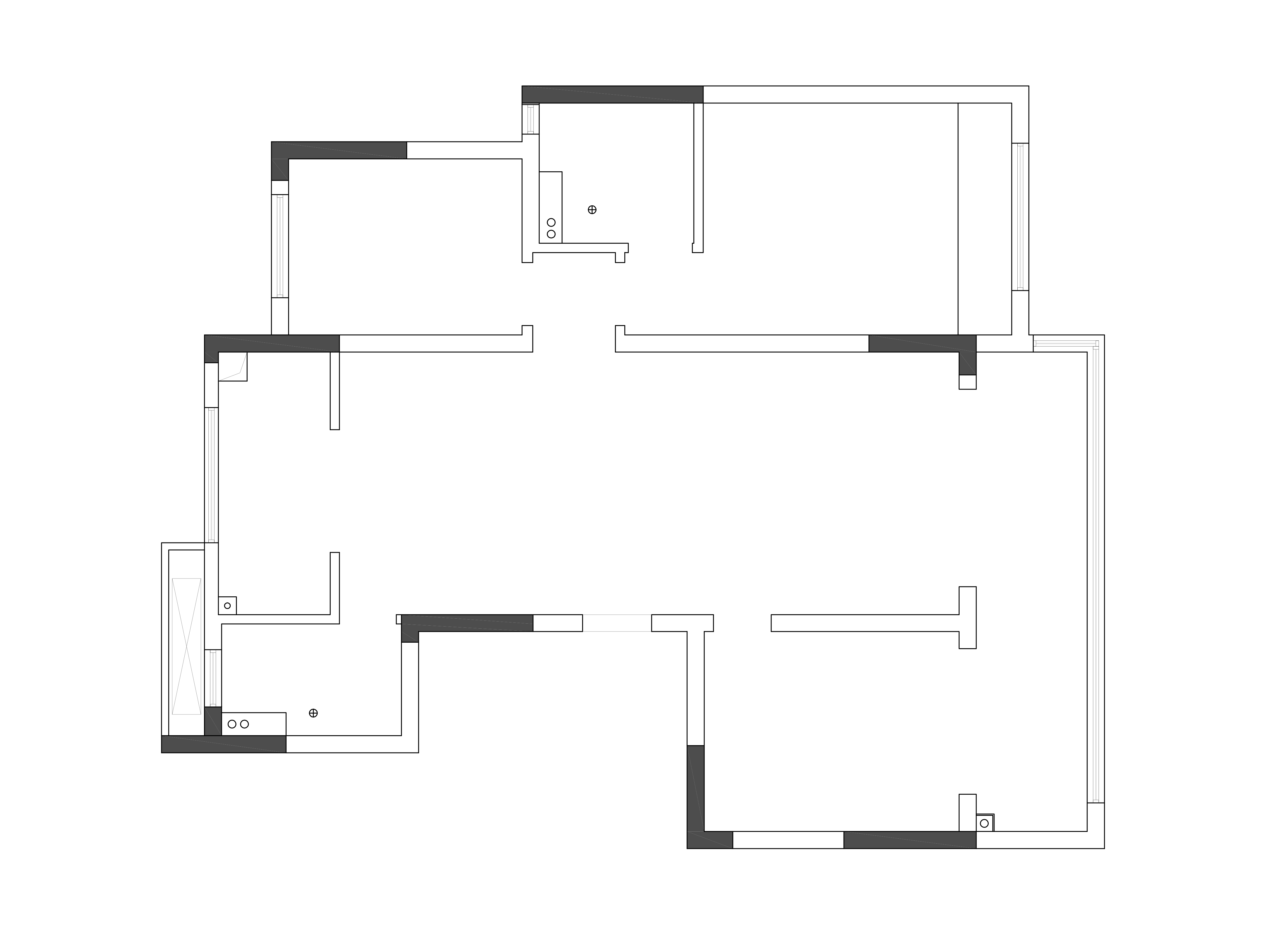
从屋主需求出发,
依旧是三室两厅的布局,
但通过局部墙体拆改、动线调整,
不同材质的碰撞,软装的调和,
我们希望空间可以更加实用,
也能不断为屋主带来审美的乐趣。
项目地址 | 芜湖金悦府
设计团队 | 研己设计
设计主创 | 张传祥
合作模式 | 设计+半包施工
建筑面积 | 123㎡ 3室2厅
项目类型 | 平层
Part1 客厅 柔软、轻盈、明亮的
我们希望能营造一种柔软、明亮、轻盈的空间氛围。公区地面铺设带有肌理的柔光砖,吊顶更改为悬浮式,优化灯光布局。墙顶通刷佐敦1376薄雾色乳胶漆,暖色系的灰白色调,奠定空间暖、轻、透的氛围。
局部改动了沙发后的这面墙——将它向客厅推出一组柜子的深度,以便在主卧嵌入柜体。
无法改动的承重墙部分,则用一组柜体平整立面,柚木色的实木混油柜体,搭配真百叶,在浅色的背景墙中也是鲜明的装饰。
阳台内包,用斜墙有趣地过渡,斜墙侧面利用工艺缝,削弱墙体的厚度感。
黑色可以为浅色空间带来稳定感——黑色鹅卵石异形边几,经典的瓦西里椅,带有黑边的地毯……用软装搭配去丰富空间的色调变化。
洗衣区放到次卧这边的阳台,升降衣架藏进吊顶,将生活实用部分处理得更加舒适美观。
Part2 餐厨 就像在屋檐下
餐边柜这面墙,由于两面都做了储物,便不再与客厅沙发背景墙位于一个空间立面上了。不过顺着这道悬挑出来的造型,跨越过道,柔和地弥合了差异。
厨房换用吊轨移门,纯净的玻璃不会阻断光线,维持柔和、轻盈的空间氛围。
风口更换为加长极窄风口,并根据冰箱宽度稍微调整吊顶宽度,让立面更连贯。
餐边柜是很耐看的中古风,柜门内嵌,金属材质的把手,台面则用石材,并沿墙做了一圈加高,保护墙面。
岛台台面为天然洞石,嵌入蒸烤箱,让喜欢做饭的屋主有更多的操作空间。定制的实木长桌,不管是二人居还是未来有更多家庭成员后,都可以轻松容纳。
长桌对板材厚度有一定要求,为了避免厚重感,我们在中间加入抽缝造型,看起来更为轻盈精致。
厨房:
从屋主喜好出发,定制了不锈钢厨房操作台面,仔细处理不锈钢焊接处,并为油烟机管道也包裹上不锈钢,去达到理想中的效果。
墙面则是手工窑变砖,有清透均匀的色彩变化,很适合小空间。
Part 3 客卫 舒适的小空间
占据屋子一角的客卫,面积不大,布置中规中矩,我们利用玻璃门,玻璃隔断,以及墙面的仿微水泥瓷砖等软硬装去改造,试图让空间体验更舒服柔和一些。
Part 4 主卧 混搭总有趣
主卧依旧是“薄雾”色的墙顶,不过考虑到地暖铺设和环保性,地面改成了石晶地板,木纹人字拼,视觉与触感依旧自然温和。木质床头背景加入分缝处理,搭配包豪斯风床头柜,注入现代简约感。
给主卫入口转个向,用带阻尼的吊轨移门,更适合小空间。
现在,我们可以利用起过道两边的空间了——一边做储物柜,一边做开放式挂衣区,绿色手工窑变砖搭配天然洞石,有趣的混搭碰撞,总能带来一种不拘束的松弛感。
储物柜则放置在床尾,不过要将墙体向客厅推出,将柜体嵌入,不会占用过道,并定制了与墙漆同色的烤漆柜门,视觉上更显规整通透。
Part 5 南次卧 不要规矩沉闷
南次卧预想做儿童房,所以想做的有趣一点,考虑到电视墙整体的和谐性,做了隐框门,但在顶部做了四个洞口,嵌入茶色玻璃,让这面墙不要那么规矩沉闷。
另一面入口朝向阳台,阳光很好,用了定制的实木混油门,光线可以照到木门上,从通透的玻璃进来,点亮这个小小的房间。
Part 6 北次卧 落进安静的光
北次卧兼做书桌与客房,床头一张桌子,床尾一组层板书架,层板底部内嵌灯带,丰富视觉效果。
家具也均是定制,柜体用了仿石材纹理的饰面,和书桌、百叶一起营造安静、自然的氛围。特别的是这个床头造型,有个小壁龛,可以置物,由木工师傅根据图纸现场制作。
平面布局
客服
消息
收藏
下载
最近

































