查看完整案例

收藏

下载
这一间是位於台北市中心的50平小宅,居住成员为一家三口,屋主为了小孩学区而买下这个小宅,因为空间不大且屋主对於电视需求不高,所以我们希望可以将楼梯的存在感降低,颠覆以往我们认为楼梯是空间核心的概念。
△楼梯概念图
用折叠五金的形式将楼梯可收折起来,就像摺纸的概念,平时希望空间变大时可以隐藏在墙面,客厅可以做更多运用。
△分析图
小坪数尽可能保持空间通透,将光线带入空间。
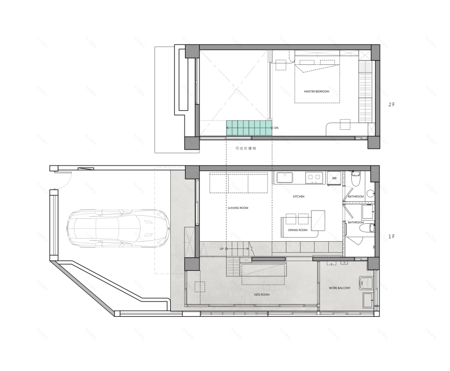
二楼作为主卧室,一楼公共空间与小孩房,用一个回字形动线将公私领域串联。
△设计平面
我们将楼梯与收纳跟掀床集中在一侧,利用架高地板将房间与客餐厅延伸,将空间串连起来也可让光线引入室内,机能类空间(浴室+工作阳台)都集中在後侧,保持采光面的开阔感。
楼梯平时可以收折起来状态,插座跟线路都隐藏在旁边卧榻内,所以需要电视可以用支架型的电视也可以,也许很多人觉得收起来是没有意义的,只是让空间感暂时变大?但其实这概念的重点在於我们想要弱化楼梯的存在,除了空间运用弹性外,也解决了规范上的限制。
将垂直动线放在家的中心,用架高地板将空间延伸进来,卧榻也与餐桌整合。
这个摺叠楼梯必须先克服五金问题,当时施工因为没有找到现成这样的五金(最近有发现台湾有进类似五金),所以当初我们是请木工跟铁工订做这样的折叠轴心,测试之後发现虽然可以顺利开合,但是因为没有缓冲所以会比较不好打开,後来再决定加上缓冲棒,虽然视觉上比较没那麽完整,但最後完成度还是很高,也比想像中好收折。
室内维持两间厕所,因为没有对外窗所以利用侧面开洞借光。
天花上方因为要包覆管线所以收了一个弧面造型,也与灯光造型整合,形成一个入口引导。
开放式厨房虽然空间不大,该有的机能都有,整个空间以白灰木为主,没有什麽复杂材质,让空间回归到家的本质。
楼梯收折後整个室内都变成大餐厅。
对屋主来说客厅只是休息聊天的空间,所以就维持最简单乾净的状态。
二楼为主卧室,楼梯墙面因为比较多不规则开口与元素,所以我用一些分割线整合立面,重新梳理墙面让一二楼有一种延续感。
如需委托虫点子
设计
ヘ憤怒の小鳥ち 发表于 2024-5-5 16:06
客服
消息
收藏
下载
最近






































