查看完整案例

收藏

下载
拥有一百多年历史的冠生园公司,坐落于梧桐行道树成荫的桂平路。此次的项目是对这里的八栋建筑进行改造。
Guanshengyuan, with a history of over 100 years, is located at the platanus-lined Guiping Road. This project is to renew eight buildings here.
▼项目概览,project overview
这八栋建筑尺度较小,聚集在一起形成了一个群落,置身其中仿佛有在街道上散步的体验。我们希望通过改造,使它既能融入周围环境,又能保留这种低层建筑的完美尺度感。
▼设计示意图,design concept
The eight small-scale buildings come together to form a community where people feel like they are walking on the streets. We hope that through the renewal, we’ll fit the buildings into the surroundings while retaining the perfect sense of scale of these low-rise buildings.
▼八栋建筑形成的群落,eight small-scale buildings come together to form a community
在上海有很多租界时期建造的美丽的老洋房,每一栋都各具特色。对于这个项目,我们考虑将其打造成这种独栋老洋房式的群落。因此,我们选用了老洋房的外立面经常使用的水洗石和柚木作为主要材料,将老建筑独有的柔和的气氛保留在立面上。
In Shanghai, there are many beautiful old houses built during the concession period, each with its own characteristics. For this project, we consider it to be the community of detached old houses with its own feature. Therefore, we choose washed stone and teak, which are often used in the facade of the old houses, as the main materials to retain the unique and mild style of the old buildings on the facades.
▼立面的主要材料选择了老洋房经常使用的水洗石和柚木,the washed stone and teak are used in the facade, which can be widely found from the old houses in Shanghai
将吸引人流至二层的楼梯与景观花坛结合。二层的观景平台可以俯瞰西侧即将建成的樱花大道。
The stairway, which attracts people to the second floor, is combined with the flower bed. From the viewing platform on the second floor, people can overlook the cherry blossom avenue which will soon be built on the west side.
▼楼梯与景观花坛结合,the stairway combined with the flower bed
▼二层视角,view from the second floor
▼在保留冠生园老厂房尺度感的同时,使其呈现出全新的生命力和极具特色的海派风格。 While retaining the sense of scale in the old factory of Guanshengyuan, we attach vitality and a distinctive Shanghai style to it
▼阳台细部与窗套细部统一,整体功能更完善。 The details of the balcony and the window casing are of the same style. The setting of balcony provides more functions for the building.
▼立面细部,facade detailed view
垂直绿化在丰富内街景观的同时也加强了墙体的节能效果。
Vertical greening enhances the energy-saving effect of the wall while enriching the inner street landscape.
▼绿墙,green wall
改造后的建筑,通过建筑与建筑之间体量的变化,层与层之间不同的层次感,窗户位置的交错,以及落地窗多角度的设置,再现了整个建筑群落的韵律感。
After the renewal, by the volume change between the buildings,the different layering between layers. The staggering of the window positions, and the multi-angle setting of the floor-to-ceiling windows,the community of buildings fully presents its unique sense of rhythm.
▼多角度设置的窗户,the multi-angle setting of the floor-to-ceiling windows
我们将园区打造成兼具工作、娱乐与艺术功能的文创综合体,建筑之间更设置了花园式庭院作为休闲办公区。
We have built the community into a cultural and creative complex with work, entertainment and art. There is also a courtyard set as an open and leisure office area.
▼抬升的走廊,the elevated corridor
▼中庭空间,patios
我们以创新生活为设计理念,本项目设施带来的体验正是创新生活的第一步。
We’ve always taken “LIFE INNOVATION” as our design concept. The experience brought by using the facilities of this project is the first step of “LIFE INNOVATION”.
▼整体夜景,overall night view
▼建筑细部夜景,building facade night view
▼一层平面图,first floor plans
▼立面图,elevation
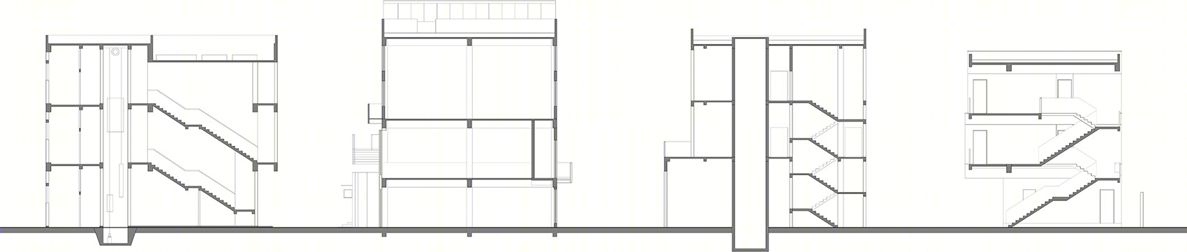
▼剖面图,section
客服
消息
收藏
下载
最近






















