查看完整案例

收藏

下载

翻译
Architect:Atelier KOMA
Location:1970-34 Haeannam-ro, Hwado-myeon, Ganghwa-gun, Incheon city, South Korea; | ;View Map
Project Year:2023
Category:Chapels
The Meditation Chapel is less a place for traditional worship within an urban community, and more a sanctuary for solitary individuals to savor their existence before the divine in nature, essentially a retreat from the city. It originated from the request for a small prayer space for these pilgrims. Hence, rather than mimicking the form of minimalistic architecture which aims to strip everything down, the architect opted for functional simplicity faithful to the role of a vessel that can hold the visitor's existence.
The simple chapel volume, set in the vast nature, is constructed as a lifted box, signifying a separation from the secular world. It creates a reverent space through minimal sequence and the effect of vertical expansion. Rather than adopting a strolling architectural approach that extends the path for visitors to enjoy the abundance of nature and space, it allows them to reach the open sky quickly and succinctly, and to stand directly as solitary individuals before the divine.
The interior of the chapel is divided into four surfaces, each with its own purpose and theme: the sea, sound, light, and the background that encapsulates them. The front is covered with a concrete wall that can capture a mindless view, holding the hazy West Sea and natural light. Instead of the dramatic view of the common sea where waves sway, it is filled with the dark western sea, making it more solemn. Thus, it becomes a space where even a modest pulpit intended for religious persuasion is unnecessary.
The back surface is a wall where the organ, a tool that occasionally expresses the harmony of heaven in a synesthetic way, is installed. It's a typical example of a wall that's modest yet not shabby, vibrant but not luxurious. And the walls welcoming the greenery around are composed in monochrome and designed in balanced proportions.
The 12 funnel-shaped stained glass windows serve as metaphors of nature. Unlike the colored glass of medieval churches that tried to concretely express the contents of the Bible, here, they fill the interior and exterior with the abstract motif of greenery, enabling visitors to continuously perceive nature.
The wall where the chapel's entrance is placed guides the view from the inside to the outside world. It's an empty wall from the observer's perspective, looking at the other three themed walls. And in the late afternoon when the sun sets, it becomes a screen that accommodates the long ray of light from the stained glass.
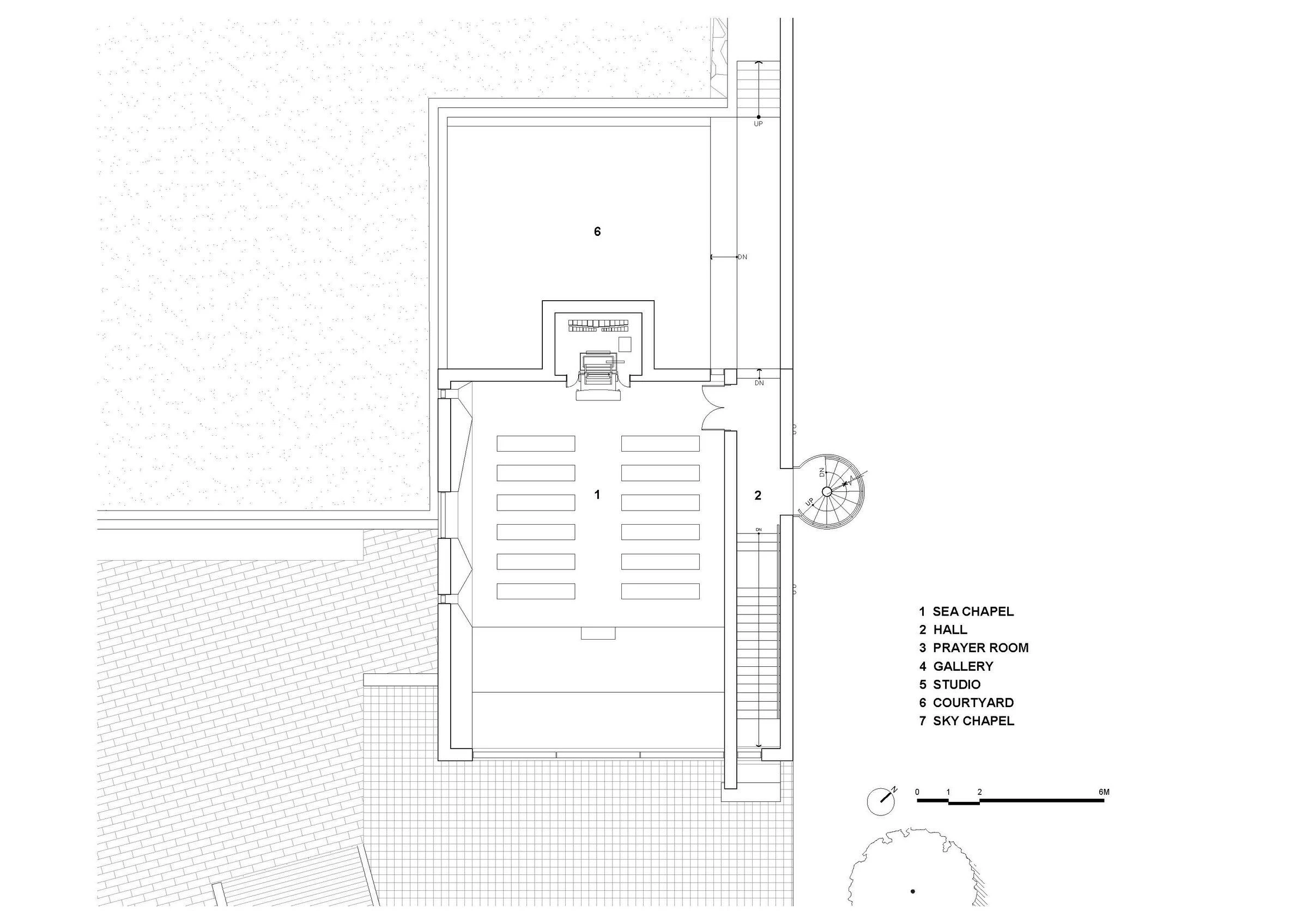
The chapel is composed of three spaces that pull the function of mindfulness. Firstly, there's the 'Sea Chapel,' where one gazes at an endlessly dim view, similar to James Turrell's installation art, and also the 'Closet Chapel,' where one can calmly focus on the source of light. Furthermore, the 'Sky Chapel,' where only the sky is perceived surrounded by greenery, is placed on the rooftop. Therefore, the spatial experience of the mindfulness chapel is diverse and sustained, originating from the simple volume.
The Sea Chapel is a place where several people look at the faint horizon of the far West Sea and the neutral sky view. It is a communal mindfulness space that supports a rich artistic experience.
The Closet Chapel is narrow and long, and the devoutness is heightened by the natural light flowing in from the front wall, reaching the floor along the wall. This place is a light mindfulness space that allows for deep contemplation alone, and it is placed as a separate space in the upper front of the Sea Chapel.
The Sky Chapel is a rectangular rooftop space that achieves a complete sense of awe surrounded by concrete walls that appropriately hide the faintly visible ridges beyond the building and the buildings below. Vertically, it allows for focusing on sky mindfulness and horizontally, it evokes endless mindfulness. ---- Written by: Lee, Eunseok
Architect(s): Lee Eunseok + Atelier KOMA
Project team: Atelier KOMA
Collaborator(s):
- Stained Glass Artist: Chung Kyungmi
- Orgelbau Meister: Hong Seonghun
- Structural engineer: Edun Struc.
- Equipmental engineer: Jusung Eng.
- Mechanical engineer: Jusung Eng.
- Electrical engineer: Hangil Eng.
General contractor: Eldream Construction
Client: Sangok Church
Photography: Lim Juneyoung (Urban Azit) / Kim Yongseong
1. Structure: RC
2. Exterior finishing: Exposed Concrete
3. Interior finishing: Exposed Concrete
4. Material(s): Exposed Concrete and Concrete Polishing
▼项目更多图片
客服
消息
收藏
下载
最近



















































