查看完整案例

收藏

下载

翻译
Architect:shinslab architecture
Location:49 Unnam-ro, Jung-gu, Incheon, South Korea; | ;View Map
Project Year:2023
Category:Churches
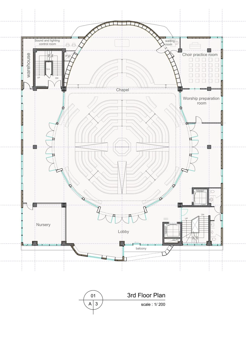
The Yeongjongdo Onnuri Church stands as a unique religious center on a developing island near Seoul, South Korea. Its design integrates the symbolic form of Noah's Ark with the practical concept of upcycling dismantled ship hulls. The building's bow, pointed skyward, serves as a powerful visual reminder of the ark.
This project promotes the concepts of scale, ready-made elements, and sustainable reuse. Fragmented sections of the recycled ship's hull become integral parts of the church's architecture. Steel, a readily available and highly durable material, finds renewed purpose in its elegant, curved forms.
The inspiration for this "Up-cycling" approach originated at the 2016 Young Architect Program (YAP MoMA NY) at MMCA Seoul. Since then, we've been developing this principle in competition entries and new projects. Our aim is to unlock the architectural potential of end-of-life ships, promoting a more ecologically conscious approach to construction.
In 1923, architect Le Corbusier compared a ocean liner to several monuments in Paris, highlighting the beauty created by the era in which he lived. Near this period, artist Marcel Duchamp gave new meaning and value to mass-produced manufactured objects, removing their primary function and changing their position. Duchamp with his “Fountain” (1917) spoke of "Readymades" and challenged the idea of an object in art.
The fate of these once-mighty vessels compels us to consider the legacy we leave behind. The ancient Greek word "oikos," meaning "house," forms the root of "ecology" and "economy," highlighting the interconnectedness of environmental and economic concerns in modern architecture.
The Yeongjongdo Church stands as a testament to the beauty and practicality of upcycling. Recycled steel components from a dismantled ship form the heart of the structure. This project transcends mere recycling; it embodies a process of creative transformation.
The church's fragmented design reflects the ship's deconstruction process. Strategic cutaways within the hull create open spaces for religious activities. The monumental scale of the salvaged ship inspires awe, showcasing the potential for repurposing industrial objects.
The timeworn steel possesses a unique "aura," imbued with history and authenticity. In this project, upcycling elevates the material, adding a layer of poetic value.
The Yeongjongdo Onnuri Church represents the culmination of extensive collaboration with the client. Each project allows us to refine the "Up-cycling" principle, striving to create ever more beautiful and sustainable architecture through economical and ecological means.
▼项目更多图片
客服
消息
收藏
下载
最近


































