查看完整案例

收藏

下载

翻译
Architect:Seoinn Design Group
Location:49, Sangjeong-ro, Bupyeong-gu, Incheon, South Korea; | ;View Map
Project Year:2023
Category:Churches
Due to the redevelopment of residential area of Sipjeong-dong in Inchecon the existing Eden church was relocated to the new city. Eden church is located betweeb the wide road which runs through the city of Incheon and elementary school. The high-rise apartments complex behind the church create overbearing and highly packed urban environment. Eden church as a public venue in a densely populated city, is recognized as a comfortable public gathering place.
Through the curved surface the building itself embraces the community around the building.
This curved facade guides residents of the apartment buildings to naturally access church facilities and public open space. The tower of the cross rising with a gently curved surface gives the church symbolism, and the glass window that penetrates the curved surface and protrudes toward the front allows the church to communicate and be open to the community and residents. The material is low-e double-layered glass covered with stone monuments, thereby ensuring the openness of the church and creating a warm atmosphere in a city surrounded by concrete jungle.
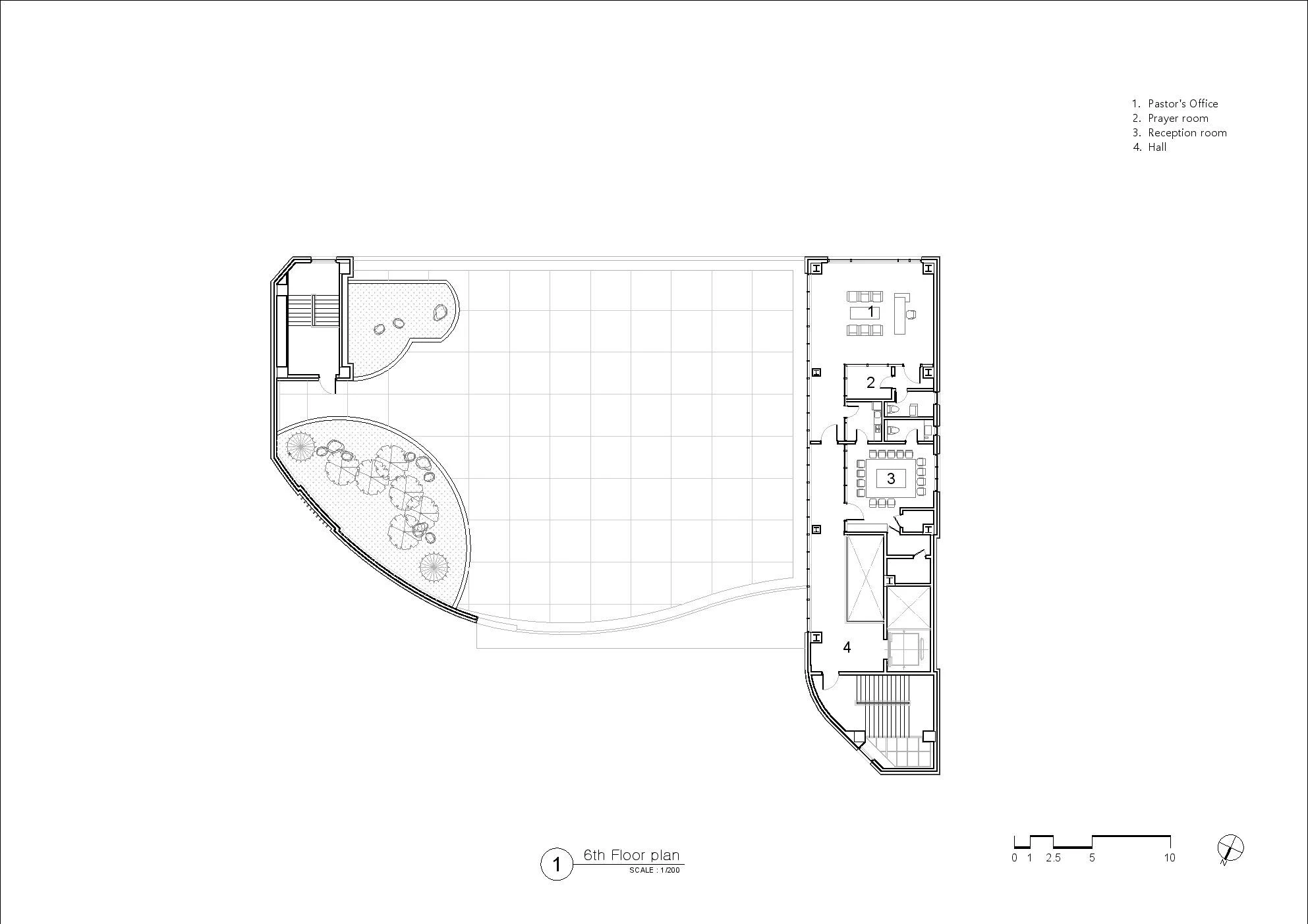
The entry space and lower-level spaces are open for church members and local residents, so everyone feels free to enter the inside. The lower floor, which consists of neighborhood living facilities, a book cafe, and a central chapel where various events and small gatherings can be held, was designed to allow entry through Sangjeong-ro (15m road). The entrance area surrounding the main entrance allows people using the church to actively flow through soft curves. The stand-type main worship room further reduces the boundaries between pastors and believers.
Architect: Seoinn Design Group
Principal architect: Choi Dong Kyu
Project architect: Alex Yoocheol Choi, Jung Dong Jo
Design team: Seo Eun Ae, Seo Youngjin Kim Kitae
Client: Foundation for the Maintenance of the Church of Korea
Photographer: Yongsu Kim
▼项目更多图片
客服
消息
收藏
下载
最近














































