查看完整案例

收藏

下载
重新定义城市中央办公室 -
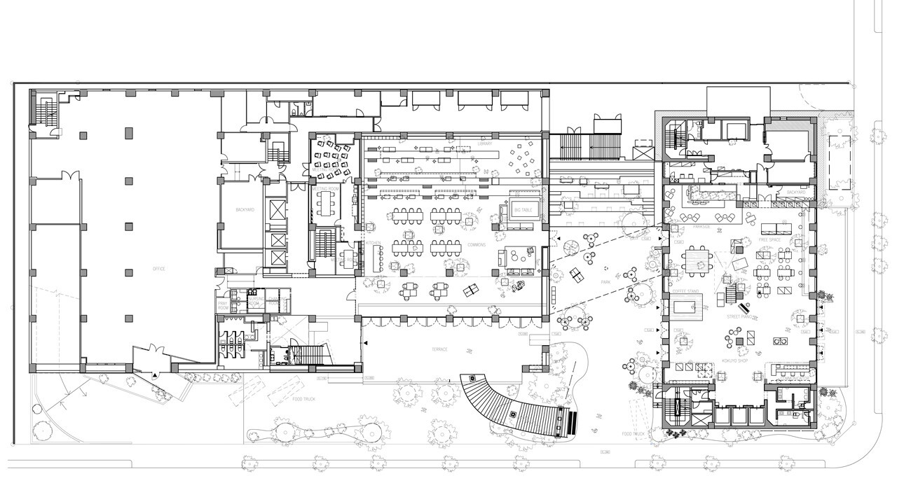
一项改造项目,将一栋有四十年历史的私人公司大楼改造成未来的实验场所,人们可以在这里创造性地工作和生活。 主要概念是“工作与生活区”。 该项目将企业活动向城市开放,在多元化的人参与的环境中探索新的价值。我们设计了“城市办公室的未来原型”,提供向邻里开放的可变公共空间以及体验 分散工作的新时代所必需的移情共鸣。
控制混乱,与城市舒适地融合 -
我们在利用现有建筑的同时,通过“减法运算”创造了一个开放而宽敞的空间。 这个空间就像城市中的绿洲,是一个可以感受到大自然微妙魅力的地方,微风吹过建筑开口,树木摇曳。 相信这样一个半公共、半户外的空间能够激发人们的创造力,我们将建筑的下层设计成“与城市和谐的景观”。这里有一种精心设计的、鼓舞人心的混乱,各种功能融合在一起, 每天都有不同的活动发生。漫步在如此鼓舞人心的混乱之中,实际上是任何城市都能提供的最令人惊奇的体验之一,尽管在办公区通常无法获得。
用“创意减法”打开现有建筑 -
原来存在的三座建筑中的中央一栋被拆除,以创建一个开放的PARK。 由于场地位于街角,我们特意在建筑墙上开出许多开口,为风和人提供通道。 我们的目标是将我们在品川的办公场所从“以企业为导向的封闭工作场所”转变为“开放的场所,让劳动者可以与社会联系”。 这是一个“不同的人聚集、诞生各种活动和文化的空间。
“绿意台阶景观”连接城市与室内——
两座老建筑中插入了各种楼梯和舞台,创造了一个人们可以停留和放松的地方。 有机设计的弧形楼梯和桥梁与古老的坚固建筑形成鲜明对比,成为这里的象征。 游客可以在连接室外和室内的大楼梯上找到自己喜欢的地方。
欢迎多样性和变化的船只 -
我们设置了男女厕所、哺乳室、祈祷室和更衣室,以创造一个每个人都可以展示个性的环境。 一楼的固定装置设计提供了多种用途,具有可移动和可堆叠的结构,方便在室外使用。 我们的目标是使这个翻新的空间成为多样性和变化的载体,并成为游客和我们员工的灵感源泉,从而为品川地区创造一个丰富多彩、充满活力的场景做出贡献。
项目设计:KOKUYO
项目面积: 8426.2501349m²
项目年份:2021
项目摄影:Nacasa & Partners
供应商: Ashford Japan, KOKUYO Furniture, ModuleX, NEW LIGHT POTTERY, Nagoya Mosaic-Tile, Toray
设计团队: Yumi Washio, Eri Takahashi, Yoichi Hanada, Noriya Todoroki
方向:GOODTIME
灯光设计:ModuleX
标志设计:Serina Shiota Design Office
纺织品设计:Fabricscape
项目成市: Minato City
项目国家: Japan
设计师:KOKUYO
语言:英语
客服
消息
收藏
下载
最近























