查看完整案例

收藏

下载

翻译
Architect:SAKO Architects
Location:3-9-31, Befu, Jonanku, Fukuoka, Japan; | ;View Map
Project Year:2024
Category:Apartments
Located just a three-minute walk from a subway station in a commercial area dense with mid-to-high-rise buildings, this residential complex is built. The standardized apartment layouts in the real estate market are repeatedly used regardless of the surrounding environment. As a result, in places where it is difficult to secure privacy, curtains remain closed day and night. The continuity between the interior spaces and the balconies is compromised, undermining the spatial role of the balconies.
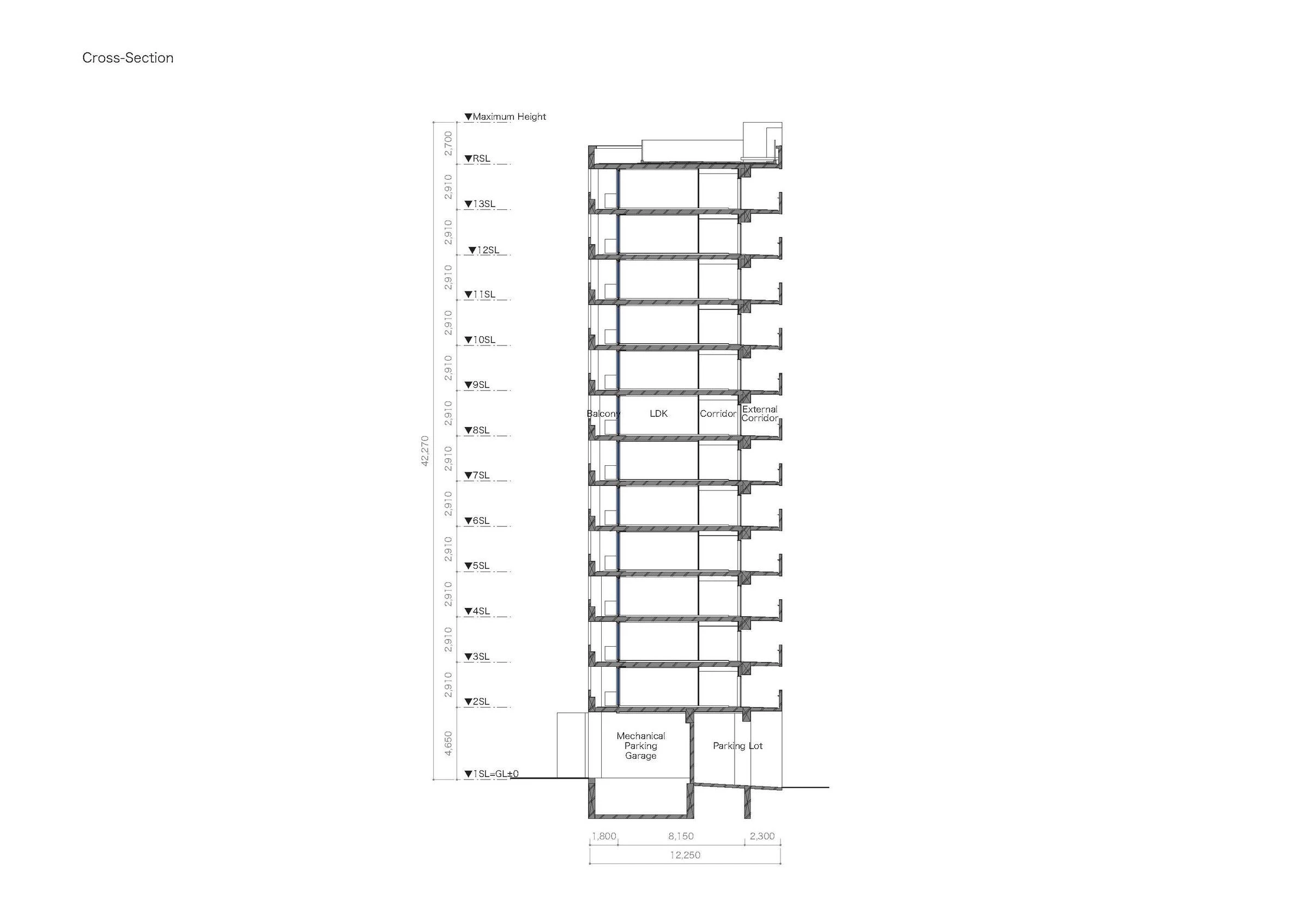
In response to this situation, we designed a residential complex with the "most closed" facade. An open ratio minimum has been set for the balconies, which are not included in the floor area calculations. According to this threshold, the facade features a checkerboard pattern of square and rectangular "picture windows" cut out from the white cuboidal volume. This semi-indoor balcony extends the interior space by about 2 meters, creating a room-like area. The units are designed to connect with the city in a controlled manner through these "picture windows."
The interior and balcony are designed to be continuous, achieved by using a sash at the same height as the ceiling. This was made possible by adopting an inverse beam structure at major openings. In the rectangular "picture windows," the inverse beams also serve as platforms with a height of 650mm and a depth of 280mm, ideal for displaying hobbies like flower beds, sheltered from strong winds.
The surface is painted white up to 150mm from the front, making it appear like a thin plate, with the rest painted black. Essential but unsightly elements of the residential complex, such as air conditioning units and downspouts, are hidden behind this plate. The plate is divided into square and rectangular pieces with 20mm wide black joints, similar to the "picture windows." Although actually finished with sprayapplied tiles, it looks like solid aluminum panels. The unique arrangement of the joints makes it difficult to discern the building type, creating an enigmatic facade during the day and highlighting the white plate's cross-section with light leaking from the units at night.
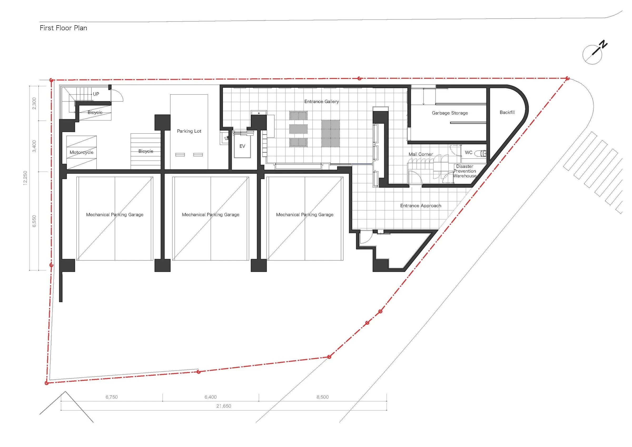
The ground floor exterior finish uses raw concrete with cedar boards, serving as a base for the white volumes above. The tip of the sharply angled site is shaped like the bow of a ship, and cherry trees are planted at the second floor level, providing a soothing visual from the intersection. The entrance hall is located at the end of a tunnel-like approach dug into the base, crafted into a sharp-edged, gallery-like space unified in black and white. The curation of twelve paintings themed on water and life and four sculptures made of tin are also the architect’s creation. The building, detailed entirely in "monochrome," has become a new landmark embodying a refined lifestyle.
Design Firm: SAKO Architects
Principal Architect: Keiichiro Sako
Architectural Design: SAKO Architects
Interior Design: SAKO Architects
Lighting Design: SAKO Architects
Artwork: Keiichiro Sako
Curation: Keiichiro Sako
Photo Credit: Yousuke Harigane
▼项目更多图片
客服
消息
收藏
下载
最近































