查看完整案例

收藏

下载

翻译
Architect:kirsch ZT gmbh
Location:Cumberlandstraße, Wien, Austria; | ;View Map
Project Year:2022
Category:Social Housing
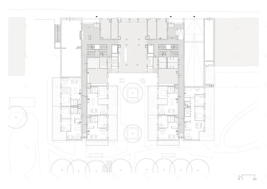
The area of the former Siemensgründe in the west of Vienna is being developed as a new residential quarter (approx. 530 units) on several building sites. Among them is the „Orchidea“ component, which is intended for subsidised housing for single parents. 124 compact flats on 8 floors are grouped around an inner courtyard open to the south.
Good neighbourliness and opportunities for social exchange are particularly important for single parents. Therefore, the desired compactness of the flats is complemented by a generous offer of communally used rooms.
For single parents, clarity is important. The flats are cut in a way that allows you to keep your children in view while cooking, homeworking or relaxing. A deep-cut, fully glazed winter garden ensures that there is always a visual connection, and the room can be used as an additional living room / „joker room“ / climate buffer (winter garden, office, guest room, etc.) all year round. Fixed curtains can be used to visually separate individual rooms and room areas to ensure the required privacy.
▼项目更多图片
客服
消息
收藏
下载
最近


















