查看完整案例

收藏

下载

翻译
En el siguiente trabajo freelance, la empresa The Action Design Company (TADC) confía en mis servicios como Cadista y Renderista para llevar a cabo el proyecto de un Stand publicitario de la marca Puma para emplazar dentro de la última FIESTA BRESH que transcurrió en GEBA, Buenos Aires.
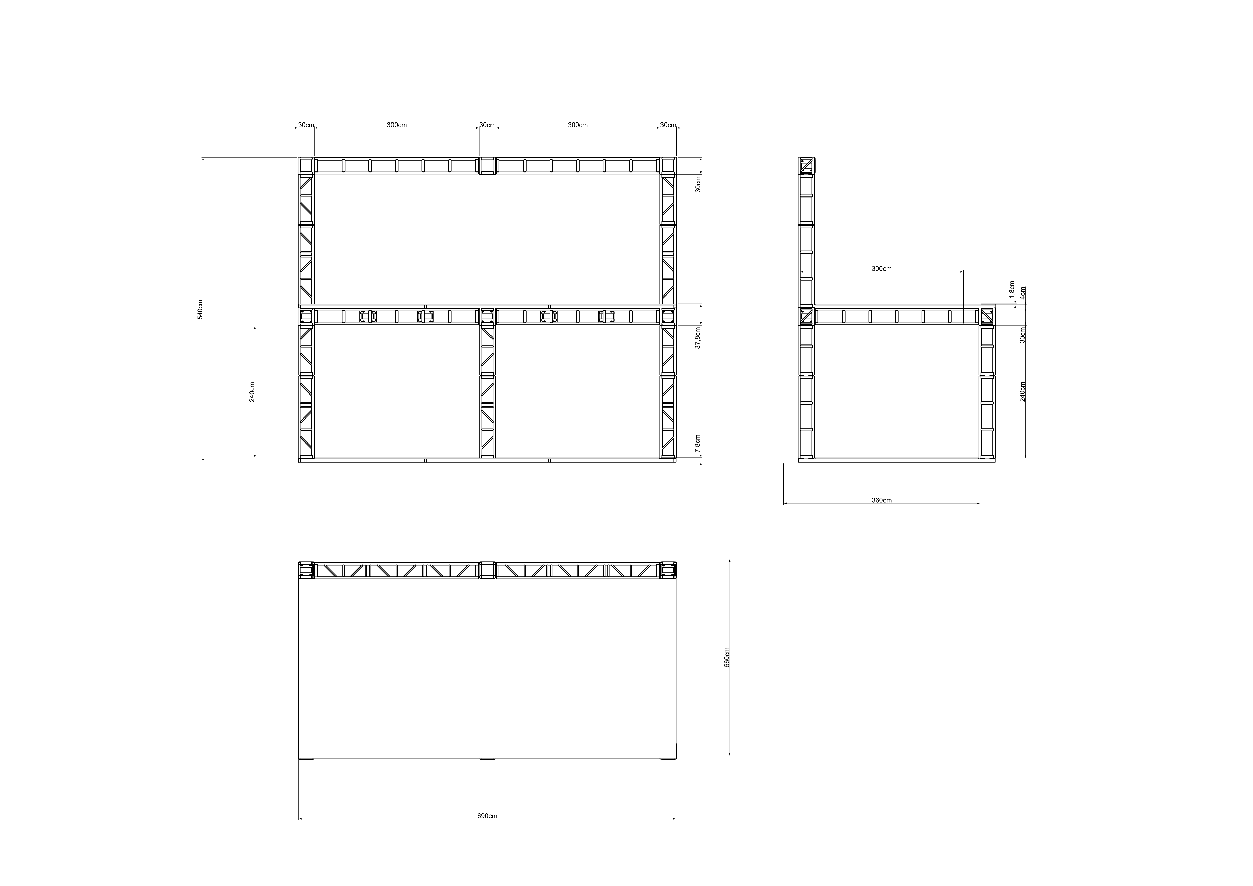
Luego de varias idas y vueltas, se logró realizar un modelado completo, planos para su construcción teniendo en cuenta medidas y materialidades, y renders finales para la correcta presentación y visualización del proyecto.
Los planos constructivos para la construcción de la estructura general con trusses, una vista general identificando las materialidades, y luego una vista explotada para dejar en claro la construcción de las carpetas del piso y entrepiso.
A continuación les muestro las imágenes del proceso de su construcción y cómo quedó el proyecto terminado para la fiesta.
客服
消息
收藏
下载
最近


















