查看完整案例

收藏

下载
林盘如画 Linpan: A Picturesque Landscape 林盘田居是成都平原上最典型的农耕生活状态,从古蜀文明时期跨越几千年延续至今。通常以宅院为核心,多户农舍院落自由组合,竹林及各类果树乔木成为院舍之间的天然围栏。这种小聚居的形态星罗棋布于广袤的“天府粮仓”中,成为集合耕织、生活、休憩于一体的自然村落。百草香庐位于成都城北新都区天星村,是一个坐落在千亩良田内的小型林盘。
▼雪山下天府粮仓的林盘全景,The panoramic view of the Linpan in the Granary of Sichuan under the snow-capped mountains©DONG 建筑影像
如同天星村的其他林盘,场地位于农田中央,四周草木环绕。看向林盘时,宛如观赏一幅田园画,农田既是前景也是背景,提供一定距离感的同时,又凸显出林盘,成为视线焦点,阡陌的交通让人随时可以入画。
Like other Linpan in Tianxing Village, the site is located at the center of farmland and surrounded by greenery. Looking at the Linpan, it resembles admiring a pastoral painting, where the farmland serves as both foreground and background, providing a sense of distance while highlighting the Linpan as the focal point. The network of paths allows easy access, inviting one to step into the painting at any moment.
▼场地原状,Original site condition©小隐建筑
▼晨间雾气中的百草香庐,Herbal Fragrant Cottage in the morning mist ©DONG 建筑影像
这与中国古典山水画有异曲同工之妙。山林水泽为留白,内容集中体现于画面中的一个或者几个角落。若是多个林盘在同一片田野中,就如同观看一幅长轴画,接天的农田是留白,故事便发生在每个林盘之中。
This mirrors the subtlety of classical Chinese landscape paintings. The mountains, forests, and waters are left unpainted, with the focus concentrated on one or a few corners of the scene. When multiple Linpan are situated in the same field, it resembles viewing a horizontal scroll painting, where the expansive farmland is left blank, and the narrative unfolds within each Linpan.
▼晚饭后遛弯的村民与百草香庐,Villagers taking a walk after dinner near Herbal Fragrant Cottage©DONG 建筑影像
百草香庐的设计意象并不仅仅是某个特定的乡村元素,林盘中的农耕生活场景才是我们想要呈现的最重要的意象。
The design imagery of Herbal Fragrant Cottage isn’t solely about a specific rural element; instead, it’s the agricultural life scenes within the Linpan that we aim to present as the most significant imagery.
▼麦田中的百草香庐,Herbal Fragrant Cottage in the wheat fields©DONG 建筑影像
我们研究了历代的《耕织图》、明代沈周的《东庄图》以及多个版本的《辋川图》中的园林布置、房屋形式及组合关系。
▼古画的研究(清 陈枚《耕织图》明 沈周《东庄图》),
根据场地原有建筑的肌理,原场地的空间形态、乡野环境与千年古画中的生活场景结合,创造出多块相对独立而又相互连接的画布,将不同的林盘生活场景绘入其中成为一个个鲜活的画面。
We have studied the garden layouts, architectural forms, and compositional relationships in the ancient "Farming and Weaving Picture", Shen Zhou’s "Dongzhuang Painting" from the Ming Dynasty, as well as various versions of the "Wangchuan Painting". We have combined the spatial forms of the original site, the rural environment, and the scenes of life depicted in millennium-old paintings to create multiple relatively independent yet interconnected canvases. These canvases incorporate different Linpan life scenes, forming vivid images that reflect the original texture of the site’s buildings and blend seamlessly with the rural surroundings.
▼多个展示面的分隔与连续,The division and continuity of multiple display surfaces©DONG 建筑影像
林盘重生
Linpan Rebirth The land is divided by the only road leading into the Linpan, resulting in the project being split into two parts. The smaller area is transformed into a rural gathering place, primarily consisting of a teahouse and a multifunctional hall; the larger area is comprised of residential plots for multiple households, serving mainly as guesthouse accommodations and private kitchens.
▼百草香庐的整体布局,The overall layout of Herbal Fragrant Cottage©DONG建筑影像
成都平原的乡村不同于山村,由于地势开敞,更多是一种直白的呈现。我们用墙体与农田来界定流线,建筑入口朝向道路给人更加开放的感受。曲径通幽或者推门入户的山村之感在这里并不适用,我们希望更多的是“推窗见田”。
The rural areas of the Chengdu Plain differ from mountain villages. Due to the open terrain, they present a more straightforward appearance. We define circulation with walls and farmland, while orienting the building entrances towards the roads to create a more open feeling. The secluded paths or doorstep entry typical of mountain villages are not applicable here; instead, we aim for a sensation of “opening the window to see the fields.”
▼乡村会客厅的迎客门廊,The welcoming porch of the rural reception hall©DONG 建筑影像
林盘的入口处通常是公共开放的场景,或是留出相对开敞的空地作为村民的聚集空间,或是一个服务村民的小商店。我们将乡村会客厅朝向入口的一角切割退让,大挑檐与建筑局部凹陷的灰空间形成外摆区域,也是进入会客厅的入口门廊,与空出的前院连合,可供邻居们“摆龙门阵”。
The entrance of the Linpan is typically a publicly accessible area. It may feature a relatively open space reserved as a gathering area for villagers or a small shop serving the community. We have designed the rural gathering place to be partially recessed and positioned towards one corner of the entrance, with a large overhanging eave creating an outdoor seating area. This area also serves as the entrance porch to the gathering place and connects seamlessly with the open front yard, providing space for neighbors to gather and socialize.
▼会客厅入口门廊,The entrance porch of the reception hall©DONG 建筑影像
基于“天府粮仓”关于农耕文化的需求,乡村会客厅的屋顶融入了仓与米斗的设计意象,使该建筑与旁边的民宿建筑从外观的形式上区分开来,更具有公共建筑的形象。▼乡村会客厅以仓与米斗为设计意象,The rural gathering place uses granaries and rice measures as design imagery©小隐建筑
Based on the demand for agricultural culture stemming from the “Granary of the Land of Abundance,” the roof of the rural gathering place incorporates design elements inspired by granaries and rice measures. This design sets the building apart from adjacent guesthouses in terms of external appearance, giving it a more public architectural image.
▼乡村会客厅以仓与米斗为设计意象,The rural reception hall features granaries and rice measures as design imageries©DONG 建筑影像
▼观望大田景观,views of the vast fields ©DONG 建筑影像
会客厅一层的茶室空间下沉,坐下后视线可以平视周边的农田,喝茶的场景被农田包裹,室内外的区分又与农田相对隔离。以窗为绢,画卷中是麦稻轮作的大田景观,四季枯荣描绘出诸多美妙的画作。
The tea room on the ground floor of the reception hall is sunken, allowing seated individuals to gaze at the surrounding farmland at eye level. The tea-drinking scene is enveloped by the fields, with a clear distinction between indoor and outdoor spaces, creating a sense of isolation from the farmland. The windows serve as canvases, presenting the vast landscape of wheat and rice rotation, depicting the wonders of the changing seasons.
▼下沉茶室与窗外稻田,Sunken tea room overlooking rice fields©DONG 建筑影像
▼楼梯取景稻田,Staircase with views of rice fields©DONG 建筑影像
二层的多功能厅可听风、观雨、赏田。主空间较为内秀,结合运营可转化多种功能场景,如:禅修、研学、会议等。
The multifunctional hall on the second floor offers the opportunity to listen to the wind, watch the rain, and admire the fields. The main space is more inward-looking and can be transformed into various functional settings depending on operation needs, such as meditation, study tours, or conferences. ▼禅修模式,阳光透过天窗洒落多功能厅,
Zen meditation mode, with sunlight streaming through skylights into the multifunctional hall©DONG 建筑影像
▼会议模式,观望大田景观,Conference mode, with views of the vast fields©DONG 建筑影像
坡屋面局部掀开,在建筑的两个方向形成观景阳台,作为休憩远眺的补充空间。阳台的观景面以挂轴画的形式融合楼上楼下、田间屋内的场景,屋顶与护栏形成框景,取不同角度的农田与林盘入画。
The pitched roof is partially lifted, creating viewing balconies on two sides of the building, serving as supplementary spaces for relaxing and enjoying distant views. The viewing surfaces of the balconies integrate scenes from both upstairs and downstairs, indoors and outdoors, resembling scroll paintings. The roof and railing frame the scenery, capturing views of the farmland and Linpan from different angles.
▼坡屋面局部掀开,the pitched roof is partially lifted©DONG 建筑影像
▼不同角度观景阳台的眺望与对望,Views and gazing from different angles on the observation balcony©DONG 建筑影像
▼不同角度观景阳台的眺望与对望,Views and gazing from different angles on the observation balcony©DONG建筑影像
北侧屋面上插入一个观景台,让建筑与林盘内部景观及后续二期场景相互关联,为游客预留一处空中打卡观景点。
A viewing platform is inserted on the north side of the roof, connecting the building with the internal landscape of the Linpan and the subsequent Phase Two scenes, providing tourists with an aerial viewpoint for photo opportunities.
▼北侧观景台,North-facing observation deck©DONG 建筑影像
▼北侧观景台,North-facing observation deck©DONG 建筑影像
为了平衡整个用地的效率和古制的农村风格建筑形式,民宿与私房菜建筑融合为一栋楼。屋顶拆分形成了多个块面,像是多个建筑的自然组合,同时又兼顾了每个看面观景、遮光、排水等实用功能。
In order to balance the efficiency of the entire site and the traditional architectural style of the rural countryside, the guesthouse and private kitchen buildings are integrated into a single structure. The roof is divided to create multiple sections, resembling a natural combination of several buildings, while also accommodating practical functions such as viewing, shading, and drainage for each surface.
▼民宿与私房菜建筑的空间错落,Interplay of spaces between the guesthouse and private kitchen buildings©DONG 建筑影像
▼建筑屋顶在场地内形成多个民居的效果, The roofs of the buildings create the effect of multiple residences within the site©DONG 建筑影像
民宿与私房菜共用一个入口,将林盘中的林、田、水、宅四个元素运用于空间布置之中,成为一方小天地。
The guesthouse and private kitchen share a common entrance, incorporating the four elements of forest, fields, water, and residence from the Linpan into the spatial arrangement, creating a small world of its own.
▼民宿与私房菜入口, Entrances to the guesthouse and private kitchen©DONG 建筑影像
▼接待看向入口方向, Reception area facing the entrance
▼林、田、水、宅合一的入口景观,
The entrance landscape integrating forest, fields, water, and residence
©DONG 建筑影像
餐厅与住宿部分的动线生动有趣——流线并没有区分明确的主次,随机性的林盘道路运用于空间交通之中,场地开合的偶然性与观景面结合,是闲逛林盘时,隔着林木、建筑看到美景的欣喜。
The circulation between the restaurant and accommodation areas is lively and interesting. The flow lines do not distinguish clear priorities. Random Linpan pathways are integrated into spatial circulation, incorporating the incidental opening and closing of the site with scenic viewpoints. This allows for the joy of admiring beautiful scenery while strolling through the Linpan, glimpsing through the trees and buildings.
▼景墙与建筑形成相对围合的空间, The landscape wall and building enclose adjacent spaces©DONG 建筑影像
▼院落开敞,农田景观直接与院落相连。The courtyard is open, directly connected to the agricultural landscape©DONG 建筑影像
通过小通道、小平台,有节奏地联合主体空间与交通空间,减少整个建筑的楼梯数量。并在交通节点中,提供了多个观景点与室外序厅,形成建筑气口,削减建筑的体量感。
Through small passages and platforms, the main spaces and circulation spaces are rhythmically connected, reducing the number of stairs in the entire building. Multiple viewpoints and outdoor lobbies are provided at traffic nodes, creating architectural “breathing points” and reducing the bulkiness of the building.▼室外灰空间序厅与流线上的观景点
Open space lobby with scenic spots along the circulation route©DONG 建筑影像
▼民宿楼梯的玻璃块将光影导入交通空间中,
The glass blocks on the guesthouse stairs channel light into the circulation space©DONG建筑影像
紧邻农田的车行道路移至林盘内部,建筑院落与农田直接相接,让田园纳入了每个院子中,每个房间都自成一院,独享田园。
The road adjacent to the farmland is relocated to the interior of the Linpan, allowing the building courtyards to directly connect with the farmland. This integration brings the countryside into each courtyard, where every room forms its own courtyard, providing exclusive access to the rural landscape.
▼农田纳入了民宿的小院之中。The fields are integrated into the guesthouse courtyard©DONG 建筑影像。
乡村振兴
Rural Revitalization
Urbanrural integrated development is the fundamental strategy for rural revitalization. How to combine the resource endowments full of differentiation with the rural development needs and create mutually beneficial functional formats is the direction we strive for in this type of project.
▼民宿二楼绝佳的客房视野, The excellent views from the second-floor guest rooms ©DONG 建筑影像
“百草”是希望结合新都中医药种植产业来丰富项目经营,将药膳、汤药、理疗等功能与业态关联,同时丰富林盘之内的乡土植物资源。
“Herbal” aims to enrich project operations by integrating the traditional Chinese medicine planting industry in Xindu, linking functions and formats such as medicinal cuisine, herbal soups, and therapy. Additionally, it seeks to enhance the indigenous plant resources within the Linpan.
▼药膳结合的乡村私房菜餐厅, The rural private kitchen restaurant offering medicinal cuisine©DONG 建筑影像
“香庐”是基于焚香、书香、花香、稻香、麦香等多种香味,结草为庐,是功能业态、建筑形态、农耕文化、资源环境等多维度内容浓缩后的独特表达。
“Fragrant Cottage” is based on various fragrances such as incense, scholarly aroma, floral scent, rice fragrance, and wheat fragrance. It combines these fragrances with grass to form a cottage, representing a unique expression condensed from multiple dimensions including functional formats, architectural forms, agricultural culture, and environmental resources.
▼传统材料与现代设计结合的新生.
The new blend of traditional materials and modern design
“林盘为绢,生活入画”这种生动的乡村场景演绎形式,无疑为之后周边的林盘拓展,甚至是大成都平原林盘的发展提供了新的思路——传统农耕生活状态演绎结合现代功能业态,放置于林盘之中,使之成为一块极具特色和活力的乐土,相对独立的场域纯粹而质朴。
“Linpan as the canvas, life as painting.” This vivid interpretation of rural scenes undoubtedly provides new ideas for the expansion of surrounding Linpan, and even for the development of Linpan across the Chengdu Plain. Combining the portrayal of traditional agricultural life with modern functional formats and placing them within the Linpan, it turns it into a vibrant and distinctive paradise, with relatively independent and pure yet rustic spaces.
▼私房菜阳台眺望大田景观, The private kitchen balcony overlooks the vast fields©DONG 建筑影像
百草香庐除了对当地的林盘发展起到了示范作用,也为城市里的人提供了一种新的生活方式。它利用乡村的差异化形成城乡互补的功能空间,一定程度促进了城乡融合,这也暗合了中国人血脉里流淌的,对于宅院和乡间生活的美好向往。
In addition to serving as a demonstration for local Linpan development, Herbal Fragrant Cottage also provides a new lifestyle for urban dwellers. By utilizing the diversity of rural areas to complement urban functions, it has, to some extent, promoted the integration of urban and rural areas. This also resonates with the Chinese people’s deep-seated longing for courtyard homes and rural life.
▼麦田雨雾中的百草香庐, Herbal Fragrant Cottage in the misty wheat field ©DONG 建筑影像
▼夜景, night view©DONG 建筑影像
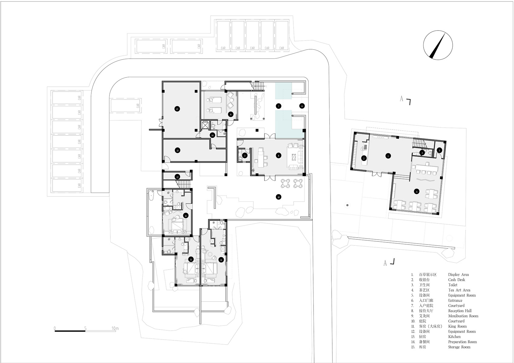
▼一层平面,ground floor plan©小隐建筑。
▼二层平面, first floor plan©小隐建筑
▼剖面, section©小隐建筑
主创团队:小隐建筑事务所主持建筑师:潘友才设计总监:杨喆(合伙人)技术总监:陈仁振(合伙人)设计团队:杨锐、胡沁梅、赵亚线、苟源君、黄宇婷、吴宁施工图团队:成都美厦建筑设计有限公司业主单位:成都华德生态农业开发有限公司施工单位:四川申泰建筑工程有限公司摄影:DONG 建筑影像撰文:杨喆、葛祥鑫项目地址:四川省成都市新都区天星村建筑面积:1015 平方米建筑材料:白色外墙涂料、木结构(杉木)、Low-E 中空玻璃、小青瓦、仿竹编花窗建成时间:2024 年 3 月
Project Leader Team: Archermit Principal Architect: Youcai Pan Design Director: Zhe Yang (Partner) Technical Director: Renzhen Chen (Partner) Design Team: Rui Yang, Qinmei Hu, Yaxian Zhao, Yuanjun Gou, Yuting Huang, Ning Wu Construction Drawing: Chengdu Meisha Architectural Design Co., Ltd. Owner: Chengdu Huade Ecological Agriculture Development Co., Ltd. Construction Contractor: Sichuan Shentai Construction Engineering Co., Ltd. Photography: DONG Architectural Photography Writing: Zhe Yang, Xiangxin Ge Project Address: Tianxing Village, Xindu District, Chengdu City, Sichuan Province Building Area: 1015 ㎡ Building Materials: White exterior paint, timber structure (fir), Low-E insulated glass, small blue tiles, imitation bamboo woven decorative windows Completion Date: March 2024
客服
消息
收藏
下载
最近



















































