查看完整案例

收藏

下载
人们通常会将办公室理解为只响应公司功能和运营需求的场所,却忽视了它从感知和自然方面去提升工作效率并改善员工生活质量的作用。
▽项目概览©Xue Liang
该项目是为中国品牌Orient Hongda设计的办公空间。设计的理念是彰显该品牌在服装工业中的地位,展示其产品的质量和美感。办公室的物理空间与品牌所强调的天然质地和细腻触感相互结合,将室内氛围变成一种独立的元素,消解了使用者对建筑结构的感知。空间中还大量使用了透光的材料,在空间之间建立起虚拟的交流,给人留下充满探索感和神秘感的独特印象。
▽电梯厅©Xue Liang
▽光影©Xue Liang
▽走廊©Xue Liang
▽展厅©Xue Liang
▽主厅©Xue Liang
▽室内细节©Xue Liang
▽会议室©Xue Liang
▽办公区©Xue Liang
▽室内细节©Xue Liang
▽透光材料©Xue Liang
▽大展厅©Xue Liang
▽墙面材料细节©Xue Liang
▽户外水池视角©Xue Liang
▽建筑外观©Xue Liang
▽设计示意图© PPAA
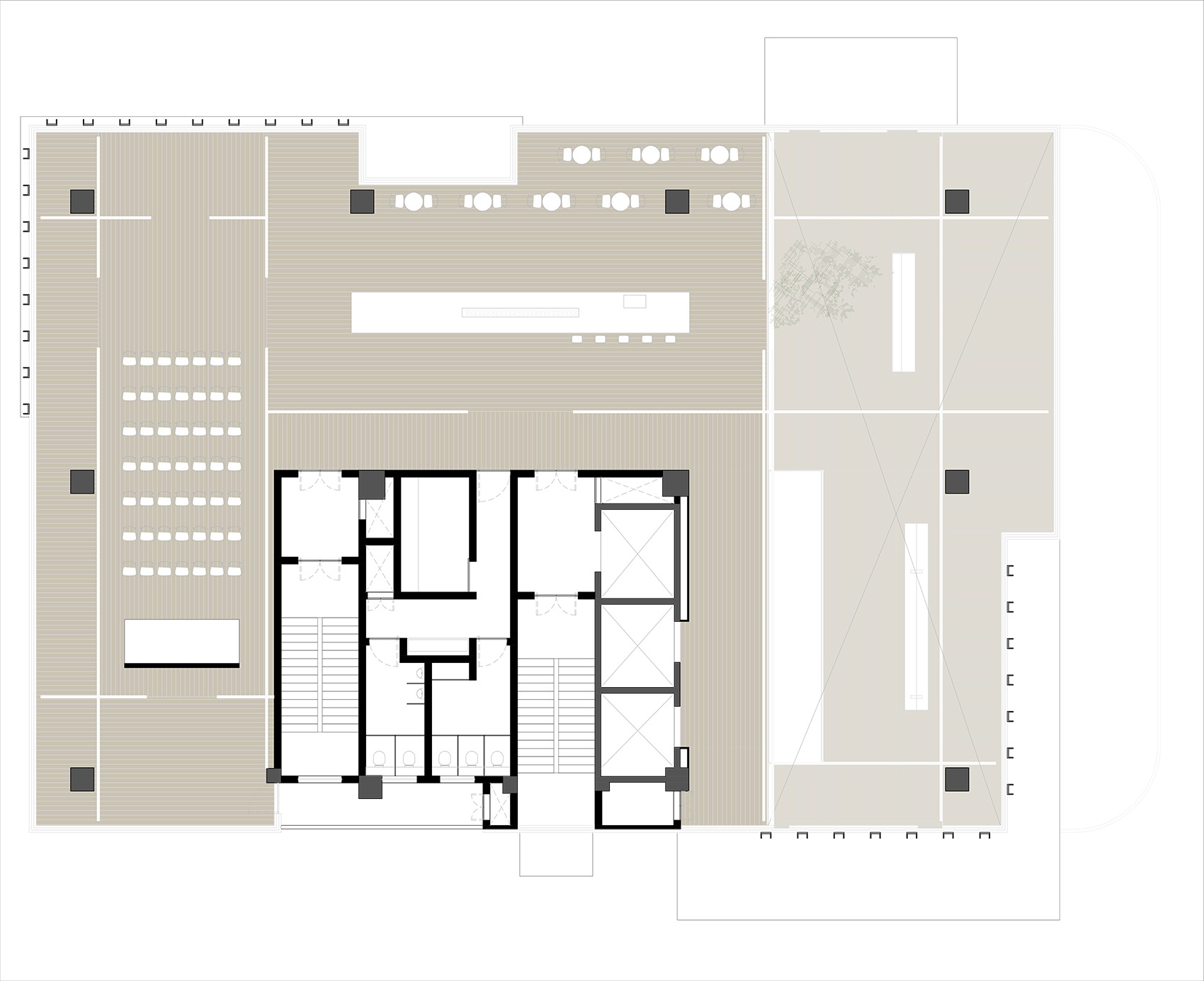
▽平面图01© PPAA
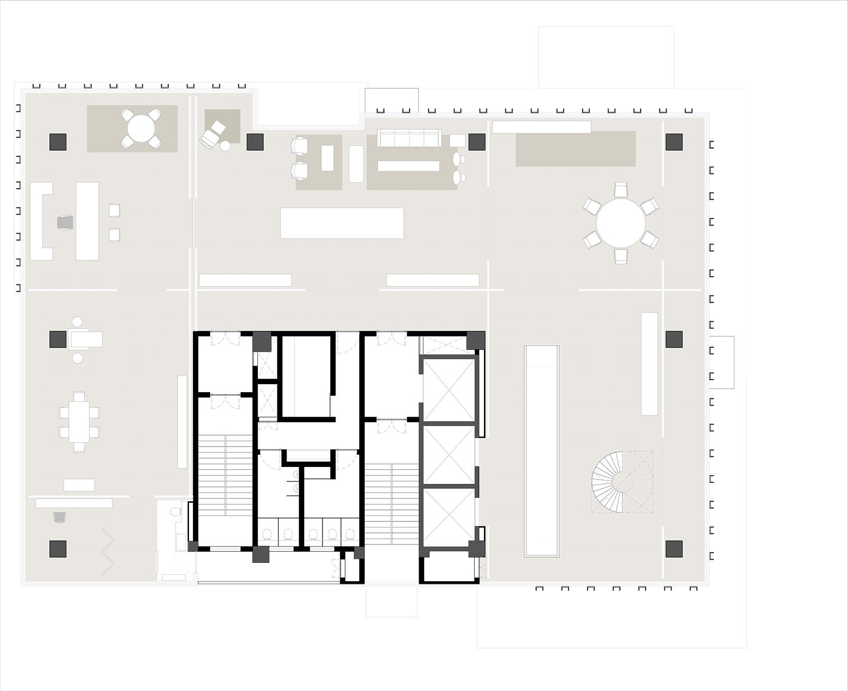
▽平面图02© PPAA
▽平面图06© PPAA
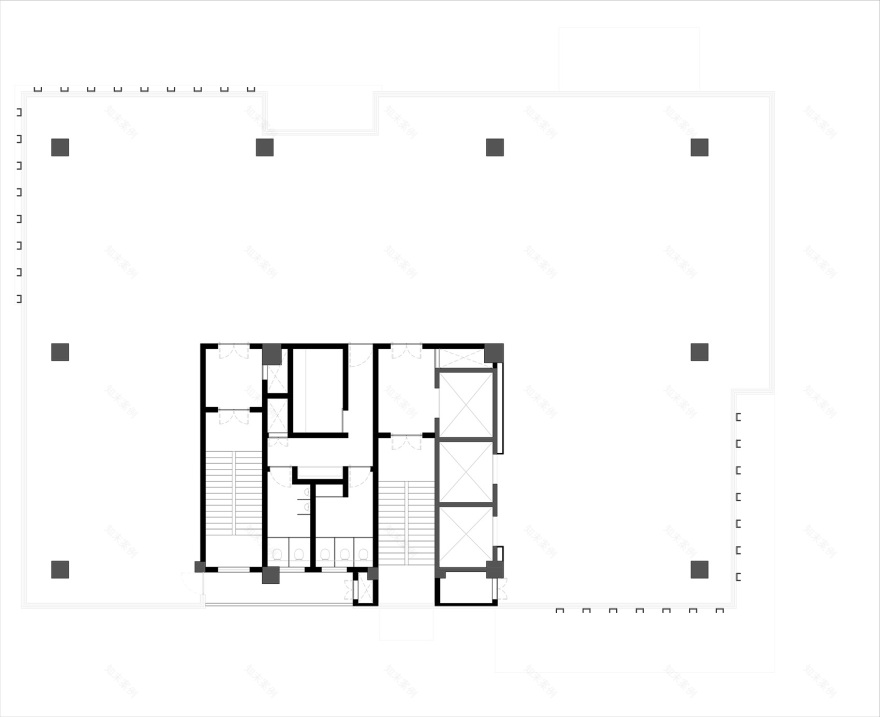
▽平面图09© PPAA
客服
消息
收藏
下载
最近


































