查看完整案例

收藏

下载
设计机构:
深圳市李益中空间设计有限公司
作品类别:
商业空间
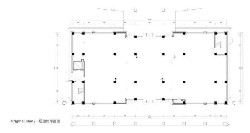
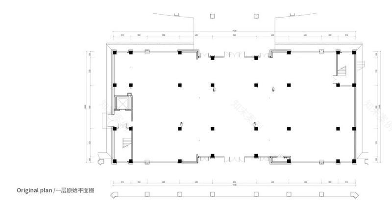
渭南万科城市会客厅:艺术化的表现,塑造精神自由说明:
项目名称 | 渭南万科城市会客厅
项目地址 | 陕西 渭南
项目面积 | 828㎡
竣工时间 | 2020年7月
委托单位 | 渭南万科
甲方团队 | 甄巍、李顺恩
室内设计 | 李益中空间设计
软装设计 | 李益中空间设计
总设计师 | 李益中
项目团队
|
范宜华、段周尧、叶增辉、杨光中、李静、蒋思敏、陈波、李俊丽、林超、冉艳、孙妮、李剑飞、马明红
项目摄影 | 聿空间摄影
客服
消息
收藏
下载
最近






















































