查看完整案例

收藏

下载
IF(综合领域):“在人们不再需要亲临其工作场所的时代,办公空间仍然并将变得更加重要。”
如果我们将“办公室”一词的含义解释为用于工作的空间,以及它在当今人们几乎可以在任何地方工作的时代所带来的好处,我们可能曾经质疑在家工作是否真的是一种有效的工作方式,而提出问题的背景为我们提供了答案——“为什么不呢?”
在大流行开始时,人们被迫在身体上彼此远离并将他们的家用作工作空间,据推测办公空间的方向会随着它变得不那么重要的趋势而改变。然而,我们不同意这样的理论,而且我们的想法恰好与一家公司的想法相匹配,该公司尽管受到了大流行病的影响,但仍决定将更多的精力放在发展其实体办公空间上。
Exotic Food (XO) 是一家上市公司,其业务涉及向世界各国出口泰国食品和香料。 XO 成功的基础在于他们不断适应变化的潜力。令人惊讶的是,在这个特殊时期改善和扩大办公室的决定与我们的信念相吻合,即即使在人们不再需要亲自在办公室工作的时候,办公空间仍将保持并变得更加重要.
该声明的意思是,当前和未来办公室的要求不仅会像过去一样迎合工作实践,而且还有望代表和传达组织的企业形象,同时促进集体目标和员工之间的团结。
红色和黑色以及传达 XO 身份的其他元素被用来创造一个强烈、统一的形象,公司的工作人员都可以辨别,包括有机会参观实际办公室或在网上看到它的访客。 XO 企业形象的这些元素将成为员工可以识别的东西,而访客可以轻松识别和记住。
比物理身份更重要的是组织的愿景以及办公空间如何塑造员工以相应的心态朝着相同的目标前进。通过鼓励团队合作和激发创造力的功能空间,公司员工已经培养了适应能力和创造力的潜力,这些都是帮助公司取得成功的品质。
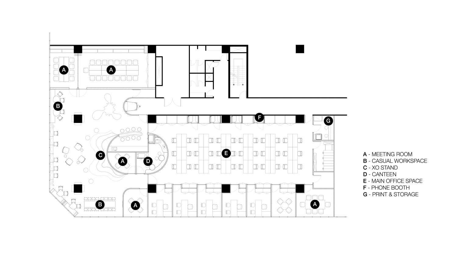
异国食品总部的功能程序分为四个不同的部分。
中央核心包括主要办公空间和其他功能空间,如食堂、酒吧和圆形剧场,可容纳各种工作和娱乐活动。
这些空间旨在容纳访客,由两个主要会议室组成,可以分隔或连接成一个大会议室。小型会议桌用于支持各种功能,例如正式会议、小组研讨会或课堂讲座。会议室外面的空间有一系列的小口袋空间,让公司可以同时容纳不同的访客群体。
这个休闲的工作空间旨在鼓励团队工作环境。内部核心和外部核心的空间位于可以看到城市景观和无线路绿地的区域,从而为室内带来更愉快和轻松的氛围。
主核心的前部与外部核心和内部核心相结合,形成了一个大的、连接的功能空间,称为 XO 核心。该计划的这一特定部分用于举办代表组织企业形象的活动,特别是那些有大量参加者的活动,如市政厅或公司聚会。
在工作不再局限于办公室的物理空间(第 2 名)的时代,在家工作(第 1 名)听起来可能是一种更方便的选择,因为人们不必在通勤上浪费时间通过交通,更不用说在漂亮的咖啡馆或其他类型的空间(第三名)工作的想法听起来比坐在小隔间里更好。
尽管如此,不可否认的是,最终,在一个被同事包围的物理工作空间环境中,仍然有一些好处,包括员工绩效的效率以及他们建立和分享的团结感。因此,未来工作空间的定义倾向于鼓励人们自愿来到办公室一起工作,同时作为组织身份的清晰和积极的代表。在功能上,它必须全面容纳与工作相关的活动,同时吸引员工选择在办公室而不是任何其他地方工作。重新思考曾经定义企业办公室设计以更好地与当代情境和场景产生共鸣的概念,将证明物理工作空间在现在和未来都将保持其意义,而能够熟练和适当地适应变化的办公空间将成为个人和他们所在的组织成功的关键因素。
Integrated Field Co.,Ltd.
IF 是一家位于泰国的设计事务所,相信为每个项目找到一个特定的问题,了解其“核心”,并在整个过程中基于该问题开发设计。 相信这种方法,IF 是由建筑师、室内建筑师、景观设计师和工业设计师组成的一群朋友创立的,旨在共同努力,收集尽可能多的领域,从整合的投入中创造作品 我们的核心理念是“IF 在集成领域发挥作用”。
项目名称:Exotic Food Headquarter
建筑公司:IF (Integrated Field Co., Ltd.)
项目地点:Sindhorn Building, Bangkok, Thailand
项目摄影:Ketsiree Wongwan
建筑面积:545 .2501349m²
完成年份:2021
项目合作:Environmental graphic: INFO
环境与 MEP:SITE 83 Co., Ltd.
灯光设计:FOS Lighting Design Co., Ltd.
项目建造:CHOICE INTERIOR (Main contractor), D.R. ADVERTISING COMPANY LIMITED (Signage contractor)
业主甲方:Exotic Food PCL
客服
消息
收藏
下载
最近






























