查看完整案例

收藏

下载

翻译
Architect:dMFK Architects
Location:Barley Mow Passage, London, UK; | ;View Map
Project Year:2024
Category:Offices
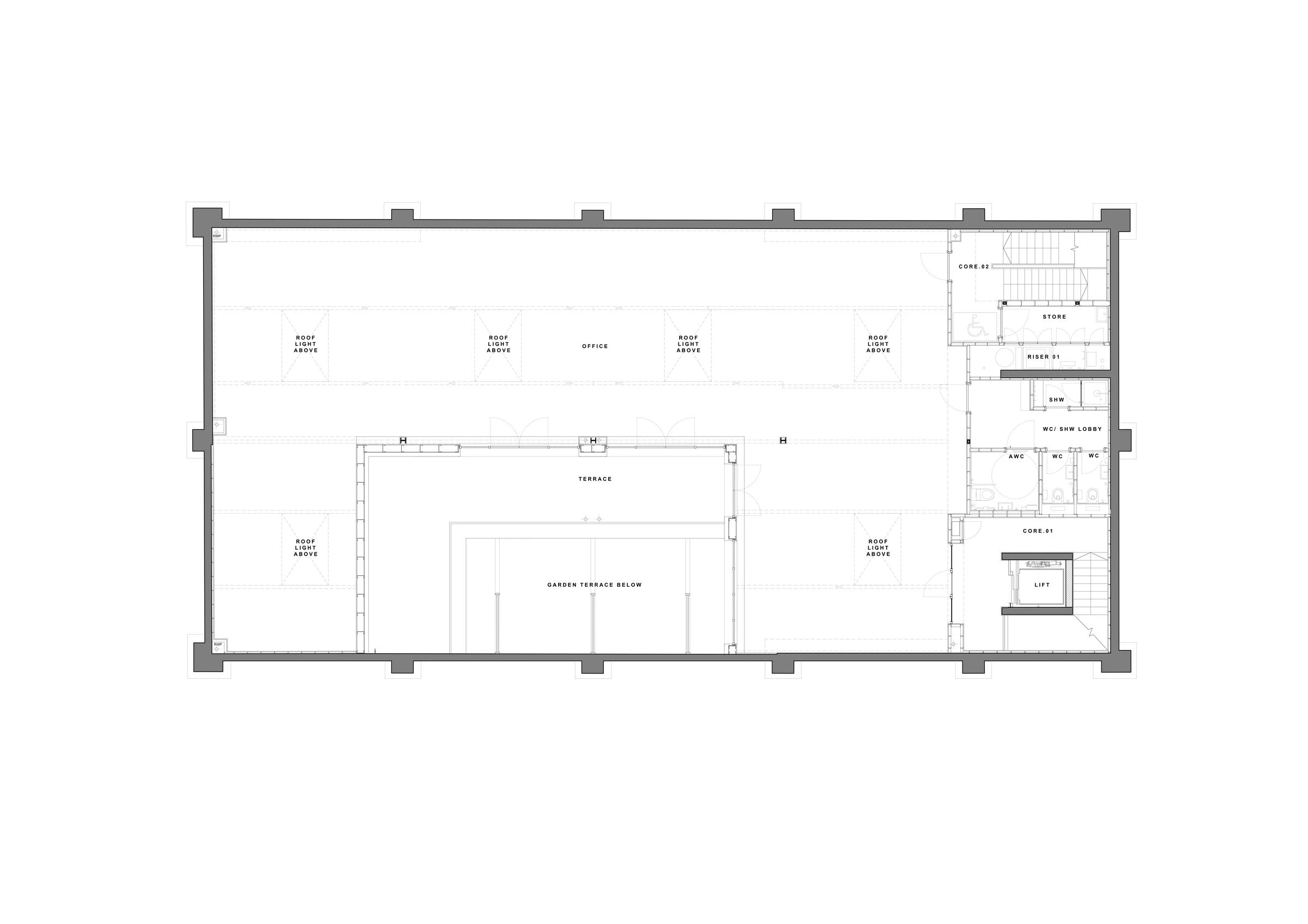
dMFK’s restoration, repurposing and upgrade of the iconic former wallpaper factory in Chiswick has provided the ailing Arts & Crafts building with a new lease of life. Originally constructed in 1902, the Grade II* Listed Voysey House is the only commercial building designed by celebrated architect C.F.A. Voysey. The five-storey structure was converted into offices following a fire in 1928 and faced piecemeal refurbishments over the years that diluted its identity. Nearly a century after leaving, Voysey House’s original commissioners are now set to return as occupiers.
Dorrington purchased Voysey House in 2020 with an aspiration to provide the ailing Arts and Crafts building with a new lease of life. Drawing from their extensive experience creatively repositioning, refurbishing and developing properties across London, Dorrington partnered with longtime collaborators dMFK to revive the purpose-built factory’s abundant character, transform its interiors into premium workspace and vastly reduce the building’s carbon emissions.
Following a considered consultation process with Historic England and Hounslow Council, the project team secured permission to replace Voysey House’s non-original existing windows with ultra-thin 7.7mm double glazing set within steel reproductions of the original frames. In addition to restoring CFA Voysey’s original design intent, this has reduced the building’s U Value by over 50% and enabled the historic structure to achieve an EPC rating of A.
▼项目更多图片
客服
消息
收藏
下载
最近
















