查看完整案例

收藏

下载
四川,素有“天府之国”的美誉,拥有数不胜数的世界文化和自然遗产。建发·凤翥澜山便位于四川德阳,这是一个着重于理想人居环境的山水叠墅项目。MOD穆德设计担纲此叠墅项目的室内硬装设计,将千年文明的古蜀之源沉淀到现代都市生活中,将文化转化为一种生活新方式,打造的不仅是一个休憩场所,更是一种精神状态,是新时代的生活美学家。
项目名称 | 德阳·凤翥澜山 下叠
项目地点 | 四川 德阳
项目面积 | 240㎡
竣工时间 | 2024年1月
开 发 商 | 万石控股集团
代建单位 | 厦门建发建设运营管理有限公司
硬装设计 | MOD穆德设计
软装设计 | GND恩家设计
项目摄影 | 张大齐
东方传统元素与现代时尚设计语言的融合,奢而不华,简而不凡。空间采用沉稳的配色,流畅的线条和几何图形,并用奢石与金属的材质纹理做点缀,衬托出奢的气质。恰到好处的装饰与点缀结构出舒适的视觉享受。
开放式的餐厨提升空间利用率,宽敞的空间里用协调的配色与布置,将精致的餐具与装饰陈列出来,营造生活氛围,这是对生活态度最好的表达。
主卧延续了客厅沉稳低调的设计语言,从材质细节诠释优雅与静奢。一张柔软舒适的床,摆放着精致用品的梳妆台,尽显生活仪式感,在这份精心布置的卧室拥抱生活。
女孩房沉浸在柔和的色调中,房间内布满了对音乐的兴趣以及包含的艺术梦想。
家中需要一个从都市的喧嚣中抽离出来的空间,夹层便成为了这个过度出舒适与平静的休闲区,尽享艺术、知识、音乐、自然之间的对话。
挑高的地下室是屋主的“私人会所”,简约而气派的设计,东方艺术与摩登轻奢的气韵扑面而来。吧台后方陈列着珍藏的美酒,茶桌上摆着颇有情调的茶具,匹配居者的生活品位与精神趣味,且谈音乐,且聊人生,与亲朋好友在此受时光流逝的美好。
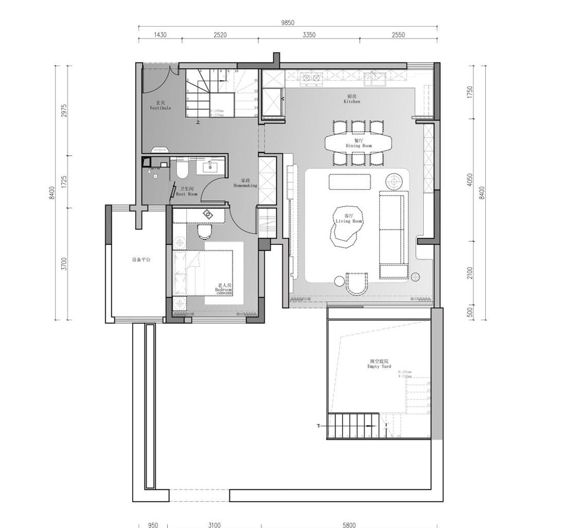
一层平面图
二层平面图
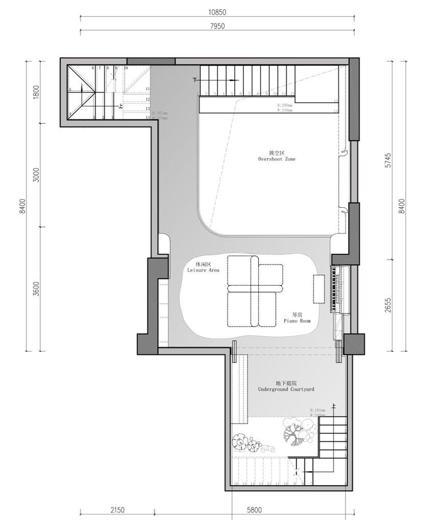
夹层平面图
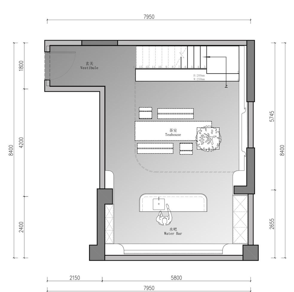
负一层平面图
客餐厅效果图
主卧效果图
夹层效果图
地下室效果图
客服
消息
收藏
下载
最近

































