查看完整案例

收藏

下载
作为全球家电行业的领导者,飞利浦书写了130年的技术创新历史。苏州机器人及智能家电研发中心的成立,将助力品牌更好服务于本土化需求,将中国创新输出全球。YSP着眼于品牌对技术创新的探索,对循环经济的关注,对健康生活的追求,为研发人员打造一个可以感受生活,沉浸工作,面向未来的办公场所。
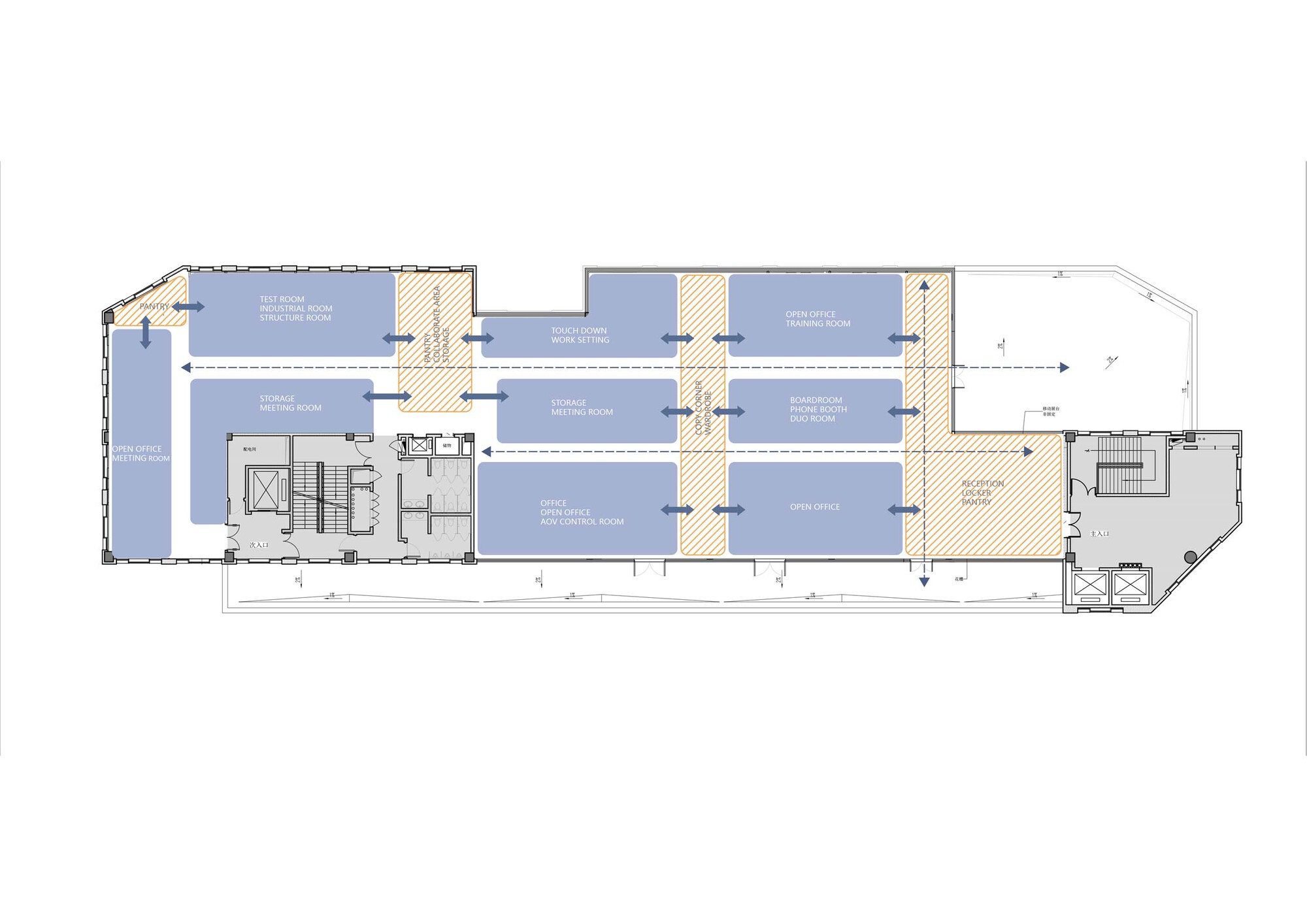
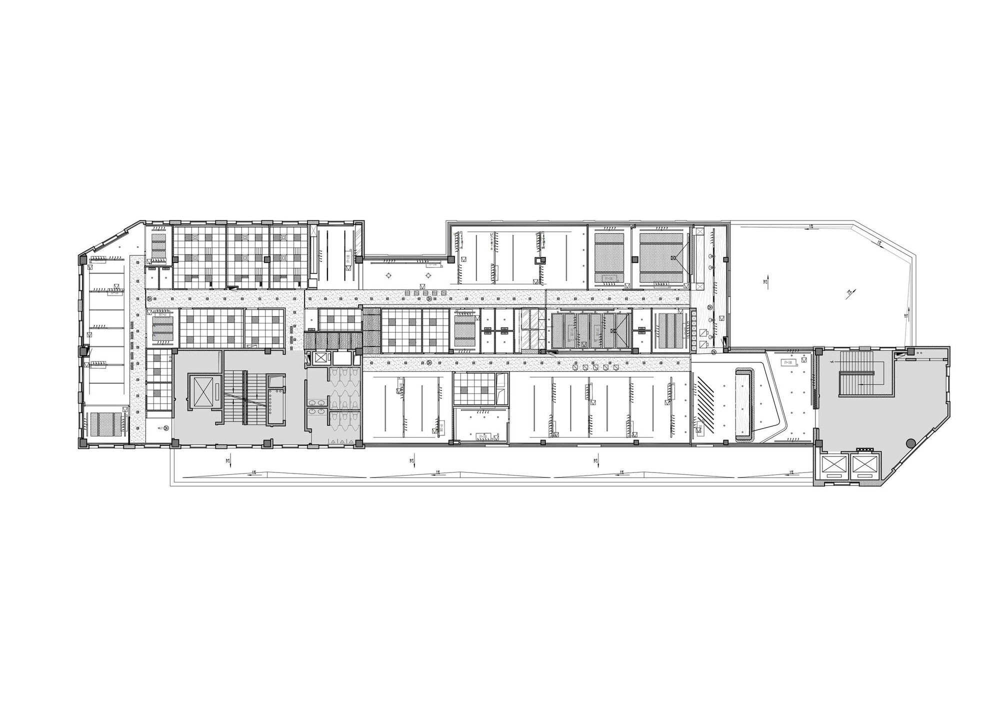
智能家电的技术研发依托于高频次高效率的沟通,同时也是对专注度需求极高的办公类型。对于研发人员来说,他们需要一个可以切换动静场域的任意门。 从办公环境心理研究层面,使人类偏爱具有瞭望与庇护特征的自然环境。空间中的瞭望与庇护与场地环境和功能需求相关,平面布局中应当考虑功能区域的开敞封闭状态。界和域也代表了开场和封闭两者空间状态。我们以界域互联为概念,呈现动静场景, 开敞与封闭空间的互通性,为飞利浦研发人员打造专属可应答环境。
界
我们将“界”定义为高效办公区域外的协作办公,休闲区域及多功能区域。空间氛围上是相对生态的有温度的,与形象区域金属材质形成对比,加强场景转化的感官认知。同时也体现飞利浦科技属性下对个体的人文关怀,呈现温暖的科技感。空间方面,“界”的场域我们通过体块的层次关系,着重体现空间的联通性。
域
界域互联
在办公空间中,高社交密度有利于促进信息交换,灵活机敏的办公环境可以促进沟通提高办公效率,而寻找最优流通性可以在日常办公时间中有效提高沟通效率。我们通过打造“界域互联”的空间来为飞利浦研发人员打造最佳的创造创新环境。
建筑师: YSP于市设计
面积: 11000.2501349m²
项目年份:2022
摄影师:言隅建筑空间摄影
厂家: Fórmica, Gabriel, KD, Milliken, Monhawk, Toli, Zenfeel
主创建筑师:郁听听
设计团队:仲金娣,李早阳,李鑫,唐坛方,戴云峰,郭佳女,吴晓艳,赵如意
结构设计:唐坛方
施工方:和玥装饰
委托方:飞利浦家电苏州研发中心
项目城市:苏州市
项目国家:中国
设计师:YSP于市设计
客服
消息
收藏
下载
最近









































