查看完整案例

收藏

下载
塔楼的占地面积由地块和规定的后退距离决定。塔楼位于一个双层地块上,主入口位于 Le Duan Boulevard 旁,第二入口位于 Nguyen Du 街。在垂直方向上,塔楼由两个街区组成,核心区位于塔楼的后方,面向毗邻的酒店。两座建筑之间的凹陷空间是为员工提供的的后勤区。
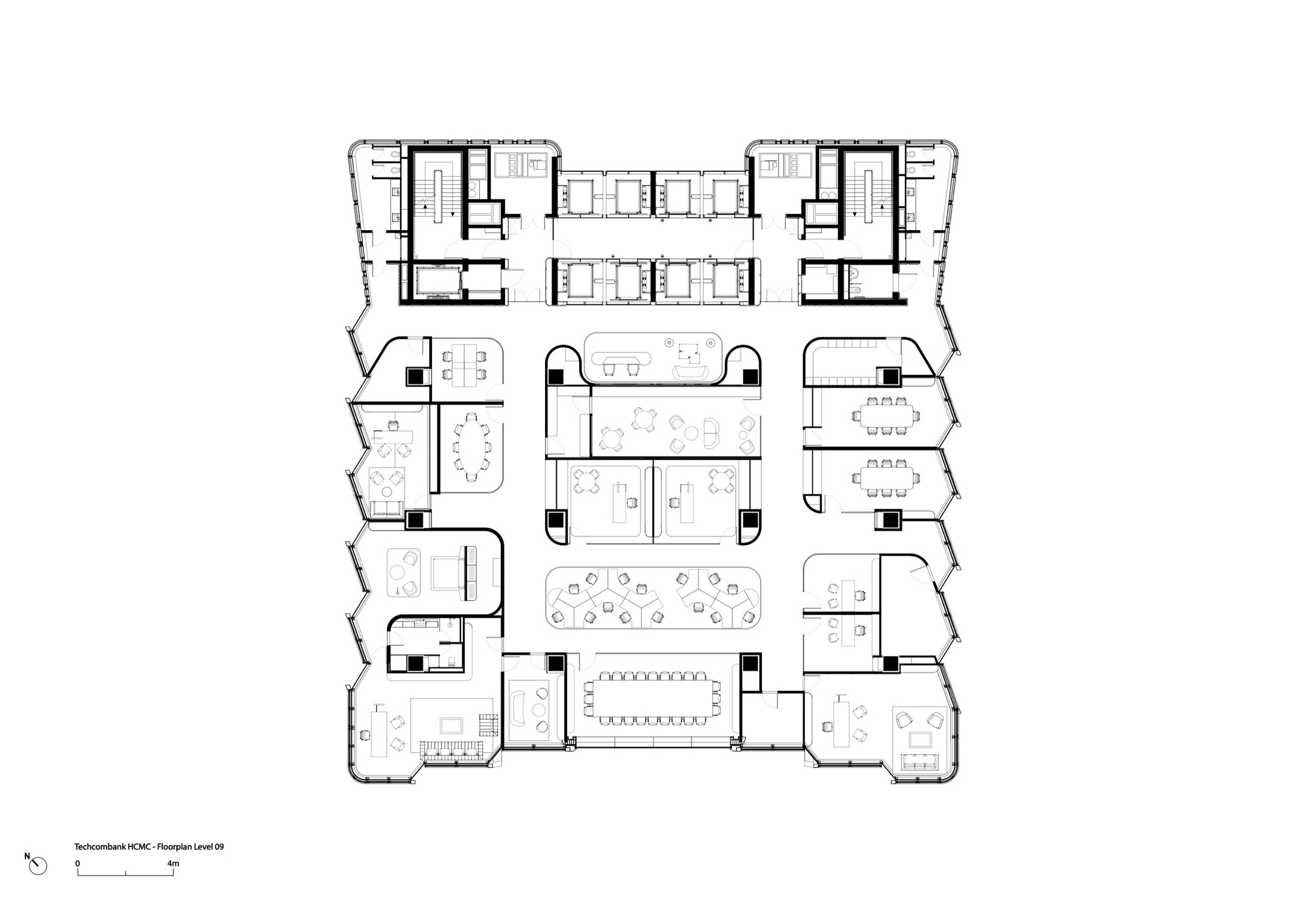
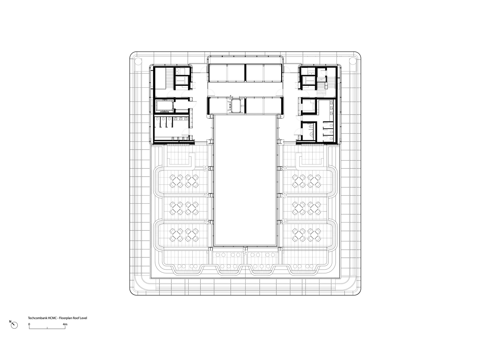
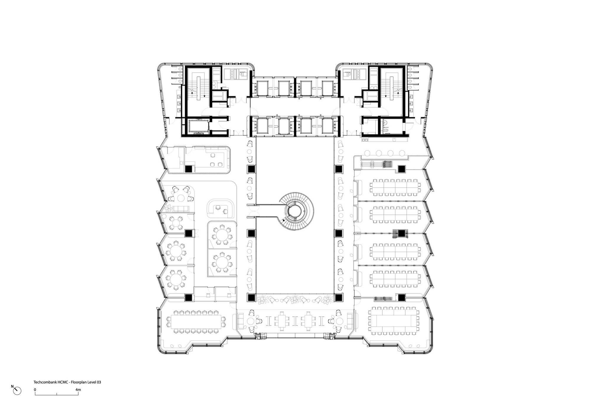
设计营造了一个光线充足、温馨的环境,有三个高度各异的中央中庭。第一个中庭从底层一直延伸到 9 层,第二个和第三个中庭从 11 层和 14 层一直延伸到塔楼的整个高度。这些空旷的空间提供了视觉连接,并包含会议空间“吊舱”,共同营造出一种协作和包容的工作场所文化。
楼板的边缘根据太阳的角度呈锯齿状。这些边缘的朝向使塔楼能够有效地自我遮阳,并创造出富有质感的立面。锯齿形边缘的一侧朝向太阳,并使用遮阳屏进行遮阳,而另一侧则是透明玻璃,因为它不会受到阳光的直射,可以清晰地看到城市和周边地区的景色。
建筑师: Foster + Partners
项目年份: 2023
摄影师:Weerapon Singnoi
项目城市: Ho Chi Minh City
项目国家: 越南
设计师:Foster + Partners
客服
消息
收藏
下载
最近































