查看完整案例

收藏

下载

翻译
Firm: ARQBR Arquitetura e Urbanismo
Type: Residential › Apartment
STATUS: Built
YEAR: 2022
SIZE: 1000 sqft - 3000 sqft
Photos: Joana França (11)
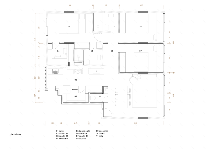
Located in SQS 315 block in Brasilia, the renovation of the 110m² apartment consisted of integrating the social areas, promoting interaction between these spaces with cross ventilation throughout. The height of the concrete beams delineates the residence spaces at a height of 2.05m. A cabinetry core, respecting this dimension, houses the toilet and pantry, connecting the living room and kitchen spaces. The kitchen features a linear 5.62m balcony with green cabinetry and hydraulic tiles present up to the height of the beams, creating a contrast with the wooden panels and exposed concrete above. Two symmetrical bedrooms are accessed through the hallway and, at the back, is the apartment's social bathroom, with a white marble sink, floor and shower box. In the master suite, an MDF panel runs throughout the room, housing the bedroom closets and concealing the entrances to the bathroom and office.
客服
消息
收藏
下载
最近



























