查看完整案例

收藏

下载

翻译
Architects:CADG
Area:25000m²
Year:2022
Photographs:Ziling Wang
Architectural Design:Man Li, Yaqiu Dong
Construction:Haidong City Urban Development and Construction Investment Co., Ltd.
Construction Company:Shaanxi HuaCui Road and Bridge Engineering Co., Ltd.
Lead Designers:Haidong Cui, Liyang Wang
Structural Design:Tianhan Guo
Mep Design:Zhiwen Tang, Cunfeng Wang, (HVAC) Wusong Han, Zhanshou Song, Lei Li, Jin Shen
Interior Design:Yang Cao, Yangyang Zhang
Landscape Design:Wenbin Zhao, Lu Lu, Hongtao Wang, Hao Sun
Curtain Wall Design Team:Zhejiang Zhongnan Construction Group Co., Ltd.
Project Manager:Jiwei Xu
Design Institute:China Architecture Design & Research Group Co., Ltd.
City:Haidong
Country:China
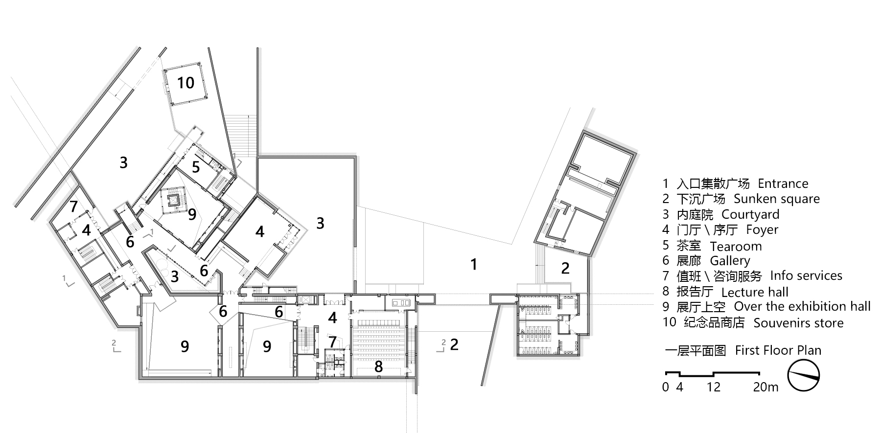
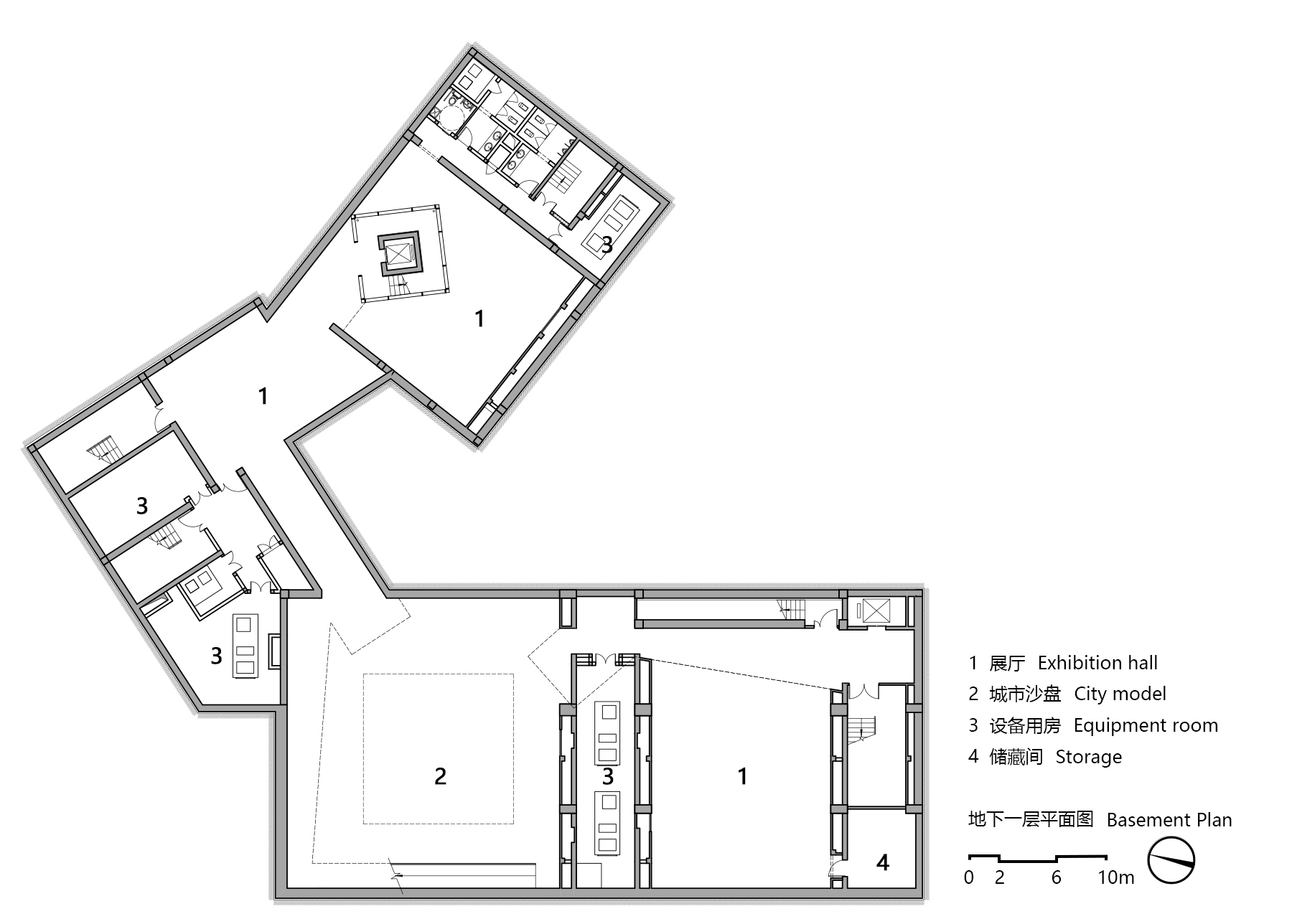
Text description provided by the architects. Located at the southwest corner of the Nanliang Relics Park in Haidong City, Qinghai Province, the Haidong Urban Planning Exhibition Hall integrates functions such as planning exhibitions, tourism reception, and relics display. The site of the ancient capital of the Nanliang Kingdom, one of the Sixteen Kingdoms, is on the main axis of Ledu District, Haidong City. The Nanliang Relics Park, which is designed by CADG, consists of a relics display area, a citizen activity area, and underground commerce, as well as an urban-planning exhibition hall.It is also called the "Central Park" of the core district of Haidong City.
Based on the historical protection principle of the relics park, it is necessary to minimize the architectural figure above ground while naturally and seamlessly connecting the site area to enrich the scene experience of visitors. The design uses the method of excavating the ground, taking the "root system" that grows in the place as the prototype, to make the building disappear into the earth landscape - the sprawling interwoven plank roads, stairs, and ramps become the beginning of the narrative of time and space, achieving the convergence of people from all directions. The guiding path superimposed with local materials makes people walking in it seem to be historical transgressors, step by step immersed in it.
Horizontal Space. The main space of the building is composed of multiple square halls, which are coupled with the square-courtyard type of the traditional dwellings in Qinghai Province, named "Zhuangkuo". Flexibly stacked and twisted, it forms a geometric abstract settlement set.
Vertical Space. The sunken courtyard generates a scattered and organic roof level, allowing the activity space of tourists to interact at different elevations, becoming the "standing way on the earth" of the building. Spiritual Space - The viewing tower with a perforated board surface of rusted steel rises from the underground exhibition hall, passing through the transparent skylight to a height of 20 meters, as if a fortress stands, as the "way to rise to the sky" of the building.
Material Matching. The main exterior wall material is the strip ceramic board with the color and texture of rammed earth, echoing the local rammed earth wall. The site uses the local Huangshui Stone exposed aggregate to express the roughness of the plateau river valley.
Scale Control. Starting from the elevation of the street corner square, all artificial "walls" are strictly controlled below the line of eyesight, achieving an open view and the vicissitudes of history. It is the "way to extend to the surroundings" of the building.
We use the design method of contemporary regional architecture to explore the "way to stand on the earth, raise to the sky, and extend to the surroundings" of the building. The plank road, corridor bridge, and wall-like walking path create experiences such as tracing roots, climbing high and looking far, and visiting the exhibition garden.
Project gallery
客服
消息
收藏
下载
最近





































