查看完整案例

收藏

下载
Famalicão B&B 酒店位于葡萄牙Famalicão市的中心地带,共有八层,内含98 间客房。
▽项目概览©Ivo Tavares Studio
▽日夜街景©Ivo Tavares Studio
项目建筑和周围建筑的高度相符,建筑师运用比例尺寸设计了一栋主立面面向东侧广场的高层建筑。该建筑的外立面采用了混凝土预制板和窗框相结合的结构方案,既突出了建筑的垂直感,又营造出错落有致的动感节奏。横向和纵向元素的使用贯穿了所有外墙,使整个建筑浑然一体,和谐统一。
▽周围环境©Ivo Tavares Studio
▽建筑立面©Ivo Tavares Studio
▽建筑立面©Ivo Tavares Studio
▽立面细部©Ivo Tavares Studio
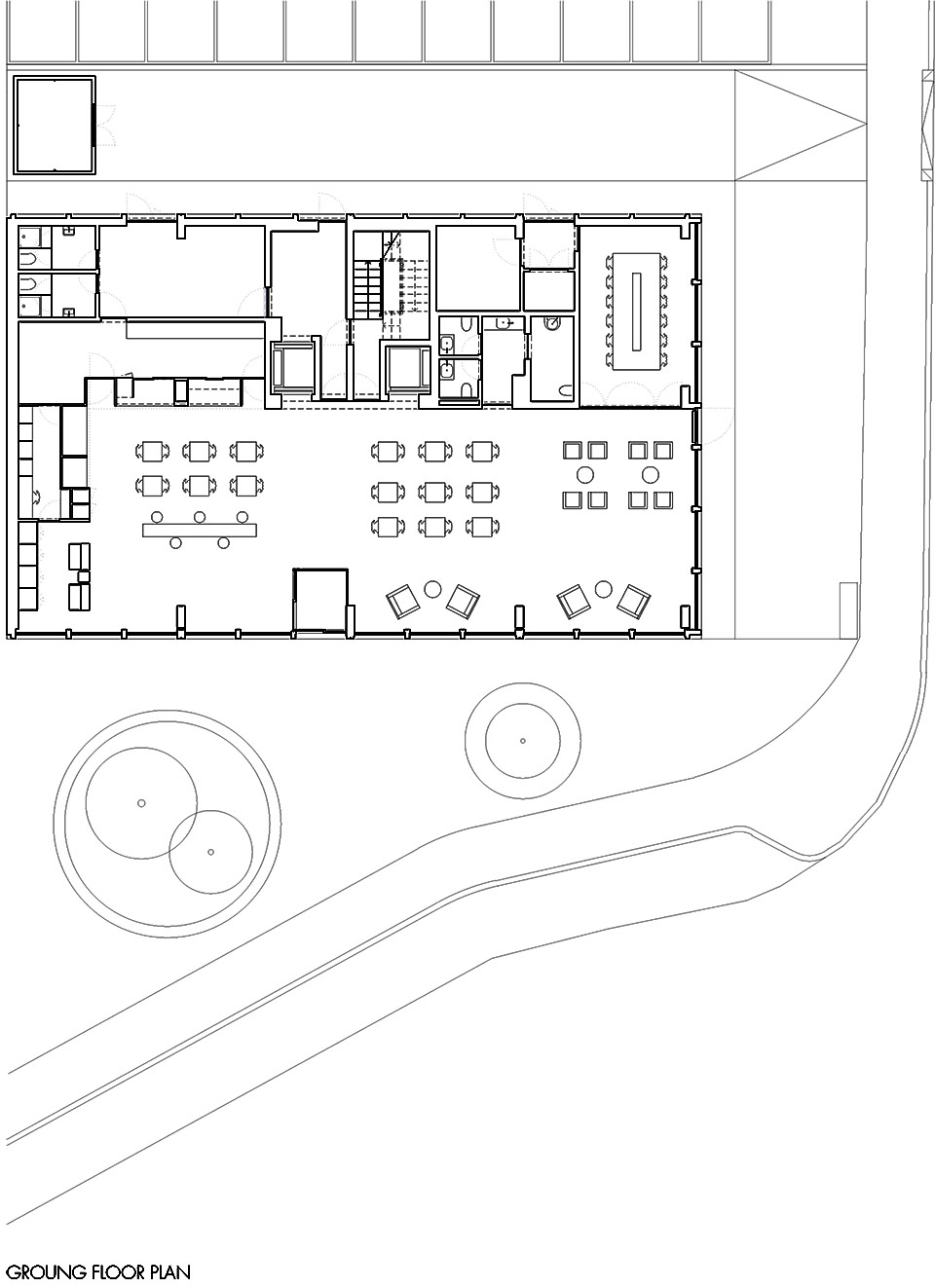
项目共分八层。一楼是入口和休息区,与外面的广场有直接的视觉联系,因此外墙采用了玻璃基座,一直延伸到一楼房间的水平面。它还包括服务区,可通过西侧立面上的入口进入,使所有所需服务的功能维护不受干扰。
▽一楼休息区©Ivo Tavares Studio
▽移动推拉门隔开的空间©Ivo Tavares Studio
▽服务区和休息区分离开©Ivo Tavares Studio
▽通往服务区©Ivo Tavares Studio
▽楼梯间©Ivo Tavares Studio
上层的客房依靠一条中央走廊,从这里可以进入每层的 14 个房间,一半朝东,一半朝西。走廊的室内装饰采用深色材料,营造出光线微弱、私密的环境,通往宽敞明亮的房间,房间的设计采用简洁、轻盈的材料,营造出宁静、放松的氛围。
▽酒店走廊©Ivo Tavares Studio
▽客房内部©Ivo Tavares Studio
▽客房内部©Ivo Tavares Studio
▽卫生间©Ivo Tavares Studio
▽夜景©Ivo Tavares Studio
▽夜景©Ivo Tavares Studio
▽一层平面©Jorge Domingues Arquitetos
▽标准层平面©Jorge Domingues Arquitetos
▽临街立面©Jorge Domingues Arquitetos
▽剖面©Jorge Domingues Arquitetos
Project name: Hotel B&B Famalicão .
Architecture Office: Jorge Domingues Arquitetos
Main Architect: Jorge Domingues
Website:https://jorgedomingues.net/projects/
E-mail: geral@jorgedomingues.net
Location: Famalicão
Year of conclusion : 2022
Total area: 3150 m2
Architectural photographer: Ivo Tavares Studio
客服
消息
收藏
下载
最近



































































































