查看完整案例

收藏

下载
Conceived as a tower crafted from a pair of tall, slender forms, 88 Walker contrasts with the wider proportions of its neighbors, acting as a focal point on the skyline. The development lies at the heart of the North Sydney CBD and is integrated with the heritage Firehouse hotel. Together, the 2-story former fire station, now a heritage pub, and 50-story mixed-use tower narrate the changing story of North Sydney’s growth from an early colonial suburb on the opposite shore from the town of Sydney to a major commercial component of the global city Sydney has become, housing some of the world’s largest corporate tenants in an evolving and vibrant CBD.
Occupying a very constrained site, the design seeks to harmonize the hotel and office functions through a clear planning diagram and careful optimization of each function to create a cohesive, singular, slender architectural expression. The ground plane strategy and reworking of the pub rear laneway access was key to unlocking the functioning of the laneways, which will come to define the heart of the CBD. The design integrates the existing heritage building with a new 252-room 4.5-star hotel and over 12,500 sqm of boutique commercial office space to become the tallest building in North Sydney.
A simple diagram of served and servant curved forms, the northern form lands to ground the building while the southern form hovers above the Firehouse, allowing double the height of the heritage building so that it can be read in the round. With daring engineering and a series of angled steel and concrete columns, the tower cantilevers 9m on plan over the heritage pub to create a highly efficient compact tower plate of almost 600 square meters. Softening the edges of the two forms allows the building to sit with distinction within the tightly spaced and fast-changing landscape of tall towers that is the North Sydney CBD. 88 Walker is an important urban marker on both the skyline and ground plane of the North Sydney center.
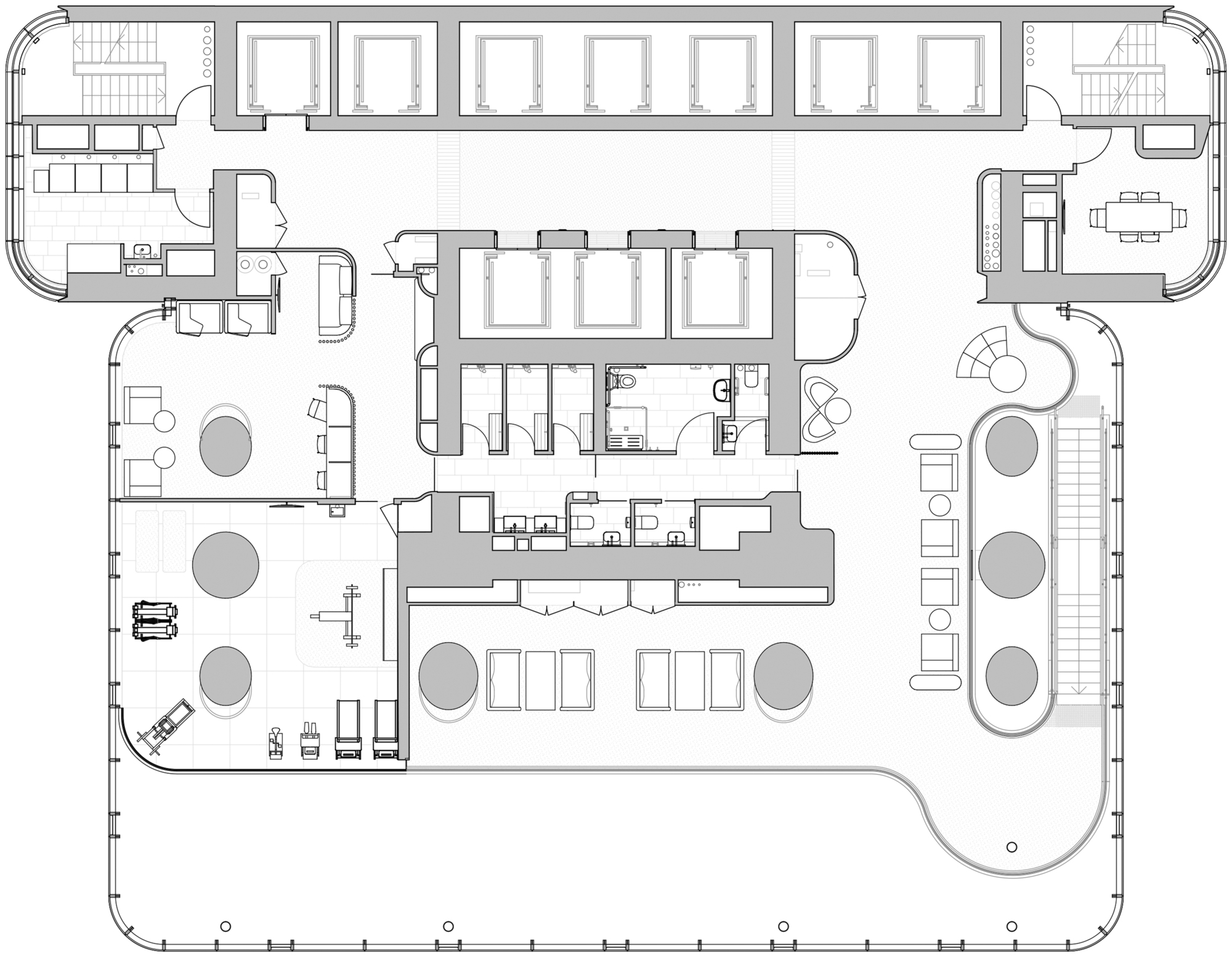
At the ground, a through-site connection allows permeability to the evolving laneway network and future metro while the hotel lobby addresses Walker Street as part of the broader multi-story lobby. Seen as a seamless connection of inside and outside, hotel and office, visitor and worker, the ground plane is a lively and dynamic space of movement, meetings, coffee, and arrival under the sculpted soffit of the tower hovering above. The hotel covers the lower portion of the tower with two levels of function spaces and a series of 16 room floors arranged around a central service core.
The building harmonizes the central core arrangement of the hotel with the side core of the office by moving the stairs from inside to the façade. Integrating the office bathrooms into the northern servant volume allows for an open-plan office plate in the southern volume. They can be combined via the dramatic staircases into multi-floor villages. Designed to achieve a 5-star Green Star, the building offers expansive views over Sydney Harbour and the city skyline.
项目设计:fitzpatrick+partners
项目面积: 24300.2501349m²
项目年份:2023
项目摄影:Tyrone Branigan
首席设计师: Paul Reidy
结构工程:TTW
Planning:Ethos Urban
Project Leader: Graham Steer
Hotel Design: Kieran Kartun
Documentation: Pei-Lin Cheah, Emma Bond, Elizabeth Need
Lighting Design: Haron Robson
Façade 工程师: Prism Façade
项目国家: Australia
设计师:fitzpatrick+partners
语言:英语
客服
消息
收藏
下载
最近




























