查看完整案例

收藏

下载
SANS WALLS,意为与自然无界限开放,是现代人在城市中寻找度假胜地的绿洲。 SANS WALLS是连接首尔、加平、春川的城市度假村衍生项目之一,计划在详细运营计划确定后公布。
Joongho Choi Studio为Sans Walls进行了空间、家具和品牌设计,为现代建筑、壮丽的山川和河流提供了空间之美和完美的放松。 由于这个地方四面八方都被大自然包围,它的设计模糊了建筑与自然之间的界限,将自然融入到每一个可以放松的地方。 融入自然并不仅仅意味着将外部风景作为图像。 从 SANS WALLS 的内部世界延伸出来的外部游泳池、北汉江和神仙山的重叠层会根据室内活动的用户的视角或行为的变化而转化为个人情感。 室内、游泳池、河流和山脉中的个性化情感成为记忆和回忆 SANS WALLS 的象征性媒介。
一个人的情绪会根据连续的层次而变化,根据不同因素聚集在一起的控制氛围,提供空间内独特的体验。 通向餐厅、厨房、主休息室、走廊、客房和健身区的长流线内的空间,通过家具、装置、音乐、灯光和色彩等多种元素所营造的氛围,创造出每个时刻独特的场景。 空间之间。 Joongho Choi Studio 将元素放置在它们发挥作用的空间中,旨在最大限度地提高人们在里面可以体验到的感受。 场景越持续、越重叠,人们的情绪就会发生动态变化。 延伸到外部场景的层次增强了情感。
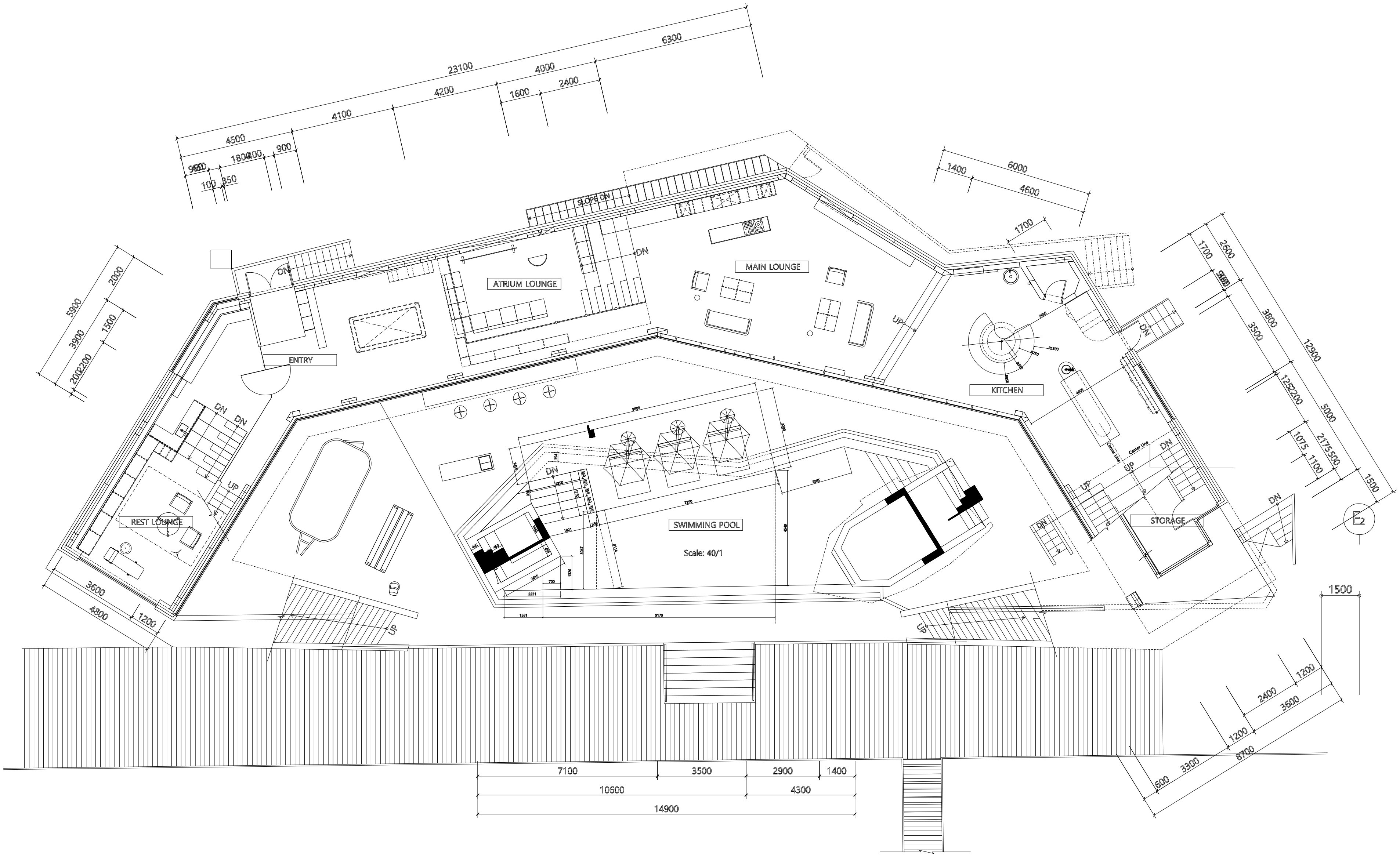
平面与结构图:
设计师:JOONGHO CHOI STUIO
坐落:Gapyeong County / South Korea / 2023
语言:English
客服
消息
收藏
下载
最近




































































