查看完整案例

收藏

下载
项目地位于浙江省湖州市南浔区练市镇中心区域,业主希望将一座建于上世纪 50 年代的茧站厂房遗址建筑群改造为具有地方特色的艺术酒店。老茧站位于练溪南岸,对面就是练市老街,周边人口稠密,是典型的老城腹地。场地东西两侧完全被民居包围,只有南北端头与周边的运河支流水系相联系。
▽层层递进的庭院与客©嵒建筑摄影
茧站:杭嘉湖平原的风土建筑
丝织业作为浙江省历史悠久的传统手工业,在千百年的发展历程中形成了生产环节完整的特殊建筑类型,“茧站”便代表了杭嘉湖片区丝织产业的典型生产建筑群,其在该片区密集分布,与水网紧密相连,是城乡生活、农业与手工业的纽带,曾链接了丰富的地方文化。
▽杭嘉湖片区茧站分布及部分茧站卫星图 ©九樟结合调研资料自绘
茧站是收购农家蚕茧©中国国家人文地理©九樟结合调研资料自绘
各家的蚕茧经由河运运输至茧站,经过称重收购后,进入茧站的核心区域——烘茧房。
烘茧房通常中心对称,带有火炉的烘茧室被安排在两侧以尽快排烟,避免烟尘影响蚕丝品质。
烘茧时会将整个茧车推入烘茧室,为满足通行和烘茧效率,中间的通道通常会以“两部茧车并排通行”为基本建造尺度 (论文引自《乡土工业建筑活化更新研究——以杭嘉湖地区茧站建筑为例》©贾玉冰)。
烘干处理后的干茧储存在堆场,再经由河运转运至下一级生产空间——缫丝厂。
蚕丝易受潮,不耐光,所有运输外廊皆带有顶棚;蚕茧储存堆放需防盗防鼠害,外窗及防潮气窗都设置有铁质防护栏。
由于蚕茧生产的季节性,高峰期时常常需要煤工、茧处理工、烘烤工等多工种人员,在短时间内进行较高强度的工作及配合,直至完成所有鲜茧烘干,因此食堂住宿卫生间等附属用房需要安排在烘房附近。
▽工作人员收茧称重;工作人员将茧车推入烘茧灶中;煤工正在向烘茧灶中添加煤炭© 茧站图片原载于《湖州晚报》项飞摄影报道《守望着湖州桑蚕的老人》贾玉冰
场地基因:巴西利卡与东方园林
场地中央三栋中心对称的厂房建筑自北向南一字排开,依次是回廊、长厅和 C 形堆场。其东侧为职工生活区,包括宿舍和食堂建筑,南侧为收茧计重的办公区。
▽老茧站原貌航拍©九樟
▽老茧站原始平面复原图 ©九樟
最初到场地考察©九樟
▽(左)原 C 形堆场的木结构屋架;(右)原收茧计重区外廊 ©九樟
▽长厅:烘茧房(左);旧圣彼得巴西利卡大教堂复原平面与透视图(右)©九樟 / 图源网络
▽(左)长厅与 C 形堆场相接处形成的蟹眼天井 ©九樟;(右)陆巷某宅蟹眼天井 ©心匠《“蟹眼天井”–苏州民居的意与趣》
长厅©九樟
▽烘茧灶的空间关系示意图 ©九樟结合调研资料自绘
设计概念与品牌定位
▽茧酒店 vi 系统©童 cc、瞿振超、栾嘉辉、陈铮
茧·酒店,新生
从烘茧工厂到艺术酒店的蜕变,考验的是如何将全新的功能装入历史的躯壳中,项目场地天生缺乏良好的外部视野,螺蛳壳里做道场,经营内部便是该项目设计工作中的日常修行。
▽延续空间结构©嵒建筑摄影
设计将围绕如下几个要素展开叙述:
首先是现状树,是场地中最根深蒂固的先在物;
其次是这里标志性的遗存——长厅;
最后是酒店的筋骨——连廊的组织,以及围绕现状树形成的庭院与建筑的排布。
这些要素相互映照,共同塑造整体的空间体验。
▽穿梭于建筑组团之间的连廊©嵒建筑摄影
从酒店的功能配比来看,公区整体占比 52%,客房区占比 43%,后勤区占比 5%。如将其与标准化的酒店产品相比较,公区占比略高于常规。究其原因,主要是受限于原空间结构的保留(如长厅保留则难以切断局部改为客房等)。长厅作为茧站空间中的“灵魂”,无论从场地记忆还是品牌定位等角度势必得到保留,但也确实会让酒店的公区客房比失衡。
因此,我们向酒管公司提案了另外一种产品定位的可能性,即一种收入来源更加多元的酒店型产品,实质是“带有住宿功能的小镇宴会中心”。在此基调下,所有公区均加强了独立经营(单独收费)的可能性,以及宴会、包场租用等付费活动举办的灵活性。
▽总平面图©九樟
▽酒店一层平面图©九樟
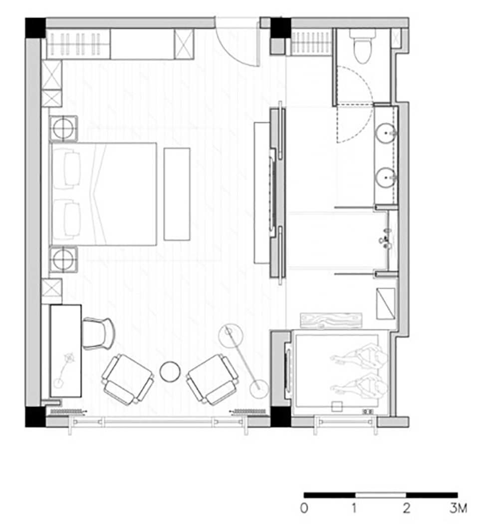
客房户型方面,我们主要设计了四种基本房型:两种宽窄不同的标间、一类大床房和一类带大型泡池的套房,面积段设定在 45-55.2501349㎡区间,是介于经济型和奢华型之间的轻度假定位,与练市镇现有的酒店类型形成差异竞争。
此外在场地最南侧,设置了一套行政套房,一层为客厅,二层为三室一厅的客房,既可以整栋打包销售,也可以上下层分开销售。兼顾了一部分三代家庭出游、朋友集体出游、婚宴招待等需求。
由于建筑使用年限接近 70 年,原有的砖木结构建筑已濒临倒塌,木结构部分腐朽或变形(房屋检测报告为 C-su 级危房,即部分承重结构无法满足安全使用要求,构成局部危房),经过综合评估,最终选择“在尊重原始风貌的基础上重建”的改造策略。
其中,中央三栋(回廊、长厅、C 形堆场)在保持原建筑体量和风貌不变的前提下根据酒店功能需要微调并复原,而客房组团的五栋建筑则以保留现状树为前提,兼顾建筑间距和采光等要求重建。长厅采用木结构复建,其余建筑均为混凝土框架结构,连廊采用钢结构。
▽各层平面图、功能配比与客房户型统计 ©九樟
七十载香樟树:茧·酒店的自然之魂
▽原场地中夹缝生长的香樟树©九樟©郑国栋
场地东西两侧均被现状建筑包围,密不透风,只有长厅北端西侧两排房屋,有机会拆出一处空隙,因此在总图关系中形成了酒店的主入口,此处也与新建的停车场、车行主干道最近,方便顾客识别和抵离,从中部进入也大大缩短了酒店内部的交通流线。巧合的是,这个原来建有公共厕所的地方,长着一棵树冠硕大的野树,后来查询得知名叫楝(lian)树,与练(lian)市谐音,在后续的设计中得到巧妙保留,成为酒店主入口标志性的门面树。
▽西入口的楝树与长厅的大屋顶 Before & After©九樟 ©嵒建筑摄影
▽面向练溪的茧·酒店正立面 Before & After©九樟 ©嵒建筑摄影
酒店大堂:从烘茧房到艺术长厅
由烘茧房改造而来的酒店大堂艺术长厅是茧·酒店的灵魂。改良而成的木结构屋架,悬置在大厅正中的巨大梭形织物艺术装置,在强化仪式性的同时,用材料和形态回应“茧”这一独特的主题。
设计在保留了原建筑两侧低檐的同时,加强了面向东西两侧的景观视野,从长厅东侧的水平长窗,可以感受到前后错落,层层递进的庭院关系。最外侧的气候边界,为方便门窗安装,采用了矩形截面钢柱,这也让一段户外连廊有机会架设在屋顶之上。
功能方面,长厅室内被切分成了三段功能区:自北向南依次是酒店前台、多功能休息区和公共会议室。空间中央通过增加地台,与侧廊形成层次区分,保证了仪式性的同时,调试了室内各区域的空间尺度。
▽长厅剖面©九樟
▽长厅©九樟©嵒建筑摄影
▽长厅的大屋顶得到了重新演绎©嵒建筑摄影
▽侧廊焕然一新©嵒建筑摄影
▽长方向看©嵒建筑摄影
▽梭织与木构的结合©嵒建筑摄影
双烟道的火炉是烘茧房最具标志性的物质遗存,设计中复刻了这一独特的烟道形式,将其转化为长厅西侧休息区的火炉。出现在老茧站窗户上的金属编织元素,则在设计中被巧妙地转化为空间中的装饰语言,出现在室内的各类半封闭隔断中。
▽取材于老茧站的金属编织网细部©嵒建筑摄影
▽老茧站特有的双烟道火炉©九樟
连廊:在自然与建筑之间穿梭
在客房区和长厅的夹缝中穿梭的钢结构连廊,从北部的回廊,经过每栋客房,爬上长厅的屋顶,穿过建筑的间隙,一直延伸至酒店的最南端,体验从公共到私密逐步深入,回应“小城秘境”的设计初衷。连廊穿梭在自然与建筑之间,形成酒店形象中最活跃的符号。天气好的时候,顾客除了在庭院休憩,还可以爬上连廊的二层,站在不同的高度感受酒店的整个环境。
▽酒店流线:住客流线、垂直交通及后勤流线©九樟
▽茧·酒店鸟瞰:穿梭于建筑组团之间的连廊©嵒建筑摄影
▽连廊©嵒建筑摄影
▽连廊细部©嵒建筑摄影
连廊的走势,注重了与两侧建筑忽近忽远的“呼吸感”,在连廊不贴紧建筑的地方,局部形成“镂空”的庭院,形成灵动的空间层次。技术层面,优化了主梁与复合楼板上下叠加的常规做法,将楼板至底部吊顶的厚度控制在了 20cm,柱径控制在了 15cm。柱网布置并没有追求极限的少,而追求了将柱子落在相邻建筑柱网的延申处。尽量对齐的操作,最大程度减轻了底层柱子的“存在感”,营造出轻盈灵动的空间体验。通常顾客从长厅北端进入酒店,完成入住手续后,便走出户外,行走在连廊之下,一边漫游庭院,一边走入各客房建筑。
▽连廊二层回看长厅©嵒建筑摄影
▽客房与爬上瓦屋面的连廊©嵒建筑摄影
▽层层递进的庭院与客房©郑国栋
酒店公区与客房:亭庭相生
C 形堆场和长厅东南侧被打造为了酒店的客房区,由 6 栋建筑组成,相对集中的布置便于管理。但在如此狭窄的建设用地内,同时保障客房的采光、视野与私密性并不容易;其次,所有客房要实现无障碍、不淋雨、方便顾客识别方向。客房区域存留有 70 余年树龄的 6 棵香樟树,胸径均超过 30cm,它们见证了老茧站的兴衰,新建的客房建筑需要绕开现状树形成舒适的庭院关系。设计的亮点便在满足上述条件的同时,实现丰富的漫游体验,实现客房数量和类型的最大化。庭院的画面层次则借由蜿蜒的砾石小径与乔灌木组团得以延展,茧站独特的老城“园林”空间气质借此得到新的演绎。
▽茧·酒店鸟瞰©嵒建筑摄影
▽庭院©嵒建筑摄影
建筑外观以黄泥色艺术涂料和旧木板的组合形成基调,这源自于老茧站原始的材料关系——木结构与黄沙水泥墙的组合,屋顶附近配以仿木饰面长城板,形成格栅形式,屋面选择小青瓦,最终让整个酒店在鸟瞰视角中重新回到老城的肌理之中。
▽建筑外观©嵒建筑摄影
▽客房窗外©九樟 ©嵒建筑摄影
不同户型反映在建筑立面上,选择了统一的单元形式以营造整体感。一组凸出的立面单元分为左右两部分,分别是阳台和窗洞,窗洞内侧对应室内书桌,它们以楼层为界,镜像交错,形成特有的韵律感。在极为有限的进深条件下,以类似“浮雕”的手法,实现了有层次感的内外效果。
▽回廊中庭©嵒建筑摄影
回廊被打造为复合的酒店配套集合及后勤办公用房,对顾客开放的功能包括酒店餐厅、包厢、宴会厅、面向老街的酒吧、棋牌室、SPA、健身房,这些功能兼顾了后期独立运营的可能性和不经由客房区独立抵达的需求;回廊东侧为酒店的“后场”,配合后勤流线布置有综合布草间、管理人员办公室、消控室等,后勤供应的进出被布置在了东北侧。
▽层层递进的庭院与客房©嵒建筑摄影
结语
乡镇存量建筑的改造更新,尤其是各类文化遗址、工业遗址的改造更新是九樟营造近年接触比较多的项目类型。我们在面对这类项目时,坚持尊重场地的记忆,通过重新整理、组织在地要素,而不是“无中生有”的方式,回应和处理设计问题。最终力求为项目“重组”具有差异化、独属性的,脱胎于自身的新基因,让一座经历 70 年岁月的老茧站,携带着历史的痕迹,以焕然一新的状态继续前行。
正如美国作家威廉·福克纳所说的,人就像是永远坐在一辆背向行驶的火车上,唯一能看清楚的就是过去。希望在时代里滚滚向前的我们,也常对过去满怀一种温情与敬意。
▽从对岸老街看向北入口©郑国栋
▽酒店西侧主入口©郑国栋
▽酒店南入口鸟瞰©嵒建筑摄影
▽茧酒店户型平面©九樟
▽K2 客房立面©九樟
▽K3 客房立面©九樟
▽回廊北立面©九樟
项目名称:茧·酒店: 湖州纺织业历史遗存的新生
项目类型:酒店建筑设计、景观设计、室内设计、工业遗址改造
设计方:九樟营造事务所
项目设计:九樟营造事务所
完成年份:2023
主创建筑师: 许天心,马宇乾
设计团队:李威,沈柯韦,吴纯纯,徐义如,汪宇,张章,王博,罗荆倩,潘祥祥,李奇,孙逸斐,谢斌楠,郑明阳,陈琛(实习),高睿璇(实习),潘于(实习),丁翔宇(测绘协助),章乐锴(测绘协助)
项目地址:浙江省湖州市南浔区练市镇
用地面积:8960 平方米
建筑面积:6460 平方米
景观面积:5800 平方米
装修面积:4840(室内)+789(半户外)平方米
景观顾问:易大景观
结构顾问:梁昌松;葛军桥(木结构)
机电顾问:军齐设计工作室
照明顾问:名浪,阿飞
VI 团队:童 cc、瞿振超、栾嘉辉、陈铮
施工:上海景域园林建设发展有限公司
摄影版权:嵒建筑摄影;郑国栋 TACOMA
客户:南浔区练市镇人民政府,乡伴文旅集团(项目管理)
材料:花旗松 小青瓦 金属格栅 黄泥色艺术涂料 旧木板
客服
消息
收藏
下载
最近










































































































