查看完整案例


收藏

下载
station NEO是一个协作式的工作站,它致力于通过投资、研发和人力资源管理等手段来促进韩国各类科技创业公司的成长与发展。Archi@Mosphere工作室希望通过该项目来促进station NEO、创业公司以及投资者三方之间的沟通与合作。设计团队摒弃了传统协作办公空间的形式,以全新的理念构建了一个能够促进工作者积极互动的联合办公室,并将该地区的特征融入到空间当中。
▼空间概览,overview
station NEO is a leading co-working office incubating deep tech startups in South Korea. The station NEO expects steady growth to tenanting companies (startups) by fulfilling their needs; investment promotion, R&D, human resource management as a role of manager. The ultimate goal of Archi@Mosphere is to create a space enables flexible communication and synergy effect between tripartite; station NEO, startups and supporter. To avoid a typical co-working office prototype by just doing a copy and paste, we create an environment where active synesthetic interaction occur between members through offering a new form of co-working office where unique regional character applied in.
▼设计以屋顶的纵向轴线为依据在空间中置入了数个庭院,several courtyards are located aligned along a vertical axis to the rooftop
▼共享空间旨在促进工作者的积极互动,the shared spaces will enhance the synesthetic interaction between members
station NEO坐落在圣水洞,这里是首尔发展最快的商业区之一。该项目位于一栋普通的建筑当中,占据了7层、8层(共计660平方米)以及顶层(330平方米)的空间。既有建筑中存在一些问题,例如低矮的天花板、昏暗的氛围以及不甚理想的
The co-working space station NEO is situated on the seventh and eighth floor and rooftop. (It is 660-square-metre for 7th and 8th floor and 330-square-metre for rooftop) These days, ‘Seongsu-dong’ is a booming business district in metropolis Seoul but the ordinary building where station NEO located has some matters; low ceiling height, darken atmosphere, low-efficient environment for office. However, this building had structurally well-constructed and useful rooftop as a merit.
▼屋顶被改造为休闲平台,the rooftop was transformed in to a leisure terrace
为了加强使用者之间的互动,设计团队以屋顶的纵向轴线为依据,在空间中置入了数个庭院,并创造了一系列可以从多个方向进入的小型口袋空间,使办公者能够在工作时享受到充足的阳光。半透明的盒体空间相互交叠,不仅能够使空气在其周围自由流通,还为办公室增添了一种独特的未来感。
To enhance interaction frequencies between users, we located several courtyards aligned along a vertical axis to the rooftop. In addition to this, we set each small pocket spaces to meet more than two sides to communal space so people can enjoy abundant sunlight while working. We also tried to present future-oriented atmosphere by intangible airflow seems to flow around freely among the box-shaped spaces which could be seen in a different dimension.
▼天窗带来充足的阳光,skylights provide abundant sunlight for working
▼交通空间,circulation
▼半透明的盒体为办公室增添了一种独特的未来感,the box-shaped spaces bring a future-oriented atmosphere to the office
▼空间细部,detailed view
▼办公室墙面,interior walls
▼协作办公空间,co-working space
▼夜晚灯光效果,lighting effect
▼屋顶夜景,rooftop view at night
▼7层平面图,7F plan
▼8层平面图,8F plan
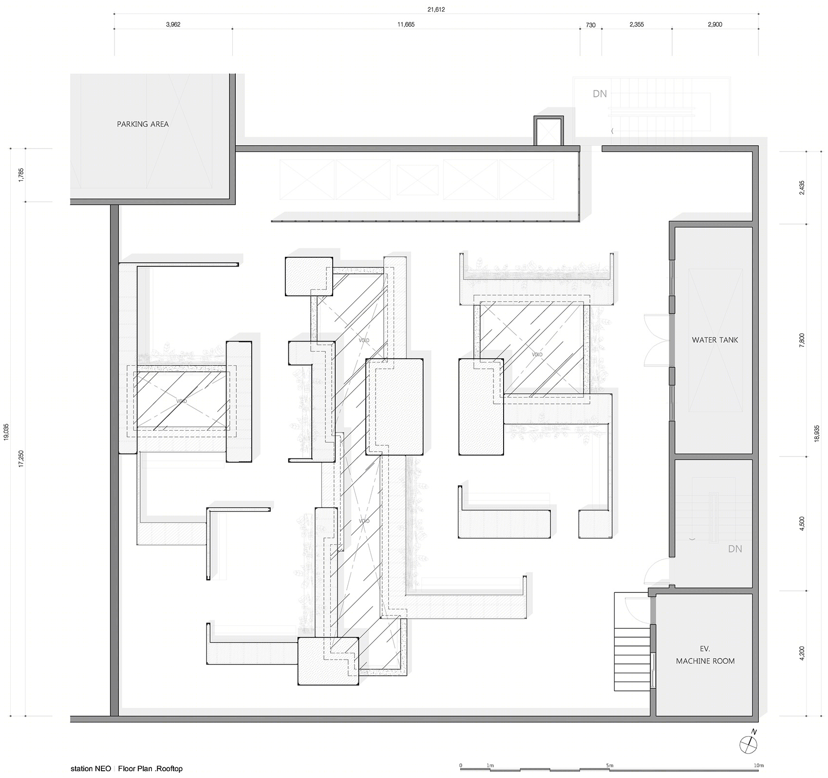
▼屋顶平面图,roof plan
客服
消息
收藏
下载
最近





























