查看完整案例

收藏

下载
项目名称:充满现代精致与舒适的住宅
位置:其他
业主朋友的房子是我们设计的,他们看过朋友家之后很满意,就直接找了我们,没有提出很多的设计要求,希望全权委托我们,感谢业主的信任。
充满现代精致与舒适的住宅室内实景图
充满现代精致与舒适的住宅室内实景图
充满现代精致与舒适的住宅室内实景图
充满现代精致与舒适的住宅室内实景图
充满现代精致与舒适的住宅室内实景图
充满现代精致与舒适的住宅室内实景图
充满现代精致与舒适的住宅室内实景图
充满现代精致与舒适的住宅室内实景图
充满现代精致与舒适的住宅室内实景图
充满现代精致与舒适的住宅室内实景图
充满现代精致与舒适的住宅室内实景图
充满现代精致与舒适的住宅室内实景图
充满现代精致与舒适的住宅室内实景图
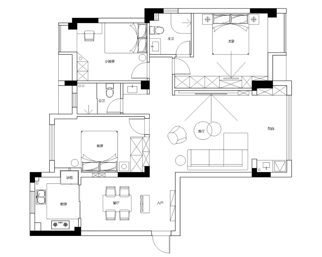
充满现代精致与舒适的住宅平面图
充满现代精致与舒适的住宅平面图
客服
消息
收藏
下载
最近


















