查看完整案例

收藏

下载
项目名称:福州阳光城翡丽湾别墅
位置:福建 福州
设计公司:品川设计
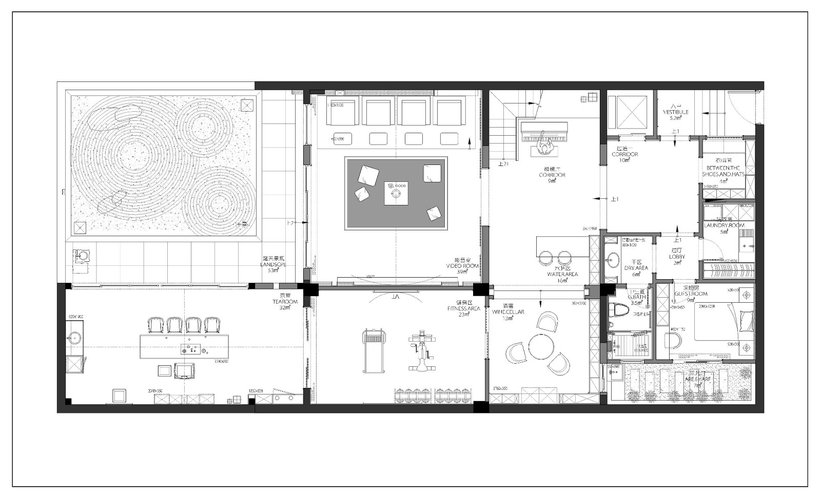
代际变迁,周而复始,人们从聚焦城市繁华又转回了对自然生活真谛的寻觅之中。项目便以探讨自然生活出发,摹刻出城市精英心驰神往的自在居所。在设计中,我们遵循克制平衡之道,彻底抛掉繁琐与复杂,以纯净的白色,朴实的原木,自然的大理石,筑造一个干净而空灵的空间。在此之上,通过空间中“物”的具象化而将人对于生活的遐想一一呈现出来。B1层预设了茶室、健身房、影音室、酒窖、庭院等功能分区,利用推拉门,实现彼此有机组合,却又互不打扰。茶室,通过山水画与东方庭院的呼应,以及交界处玻璃门的设计,开合出一种“身在自然中,自然在身旁”的诗意关系。茶室外,以形神兼具的东方庭院造一隅休闲自在。院外是繁华的市井烟火,院内是安静的一方天地,可容纳万般随性。
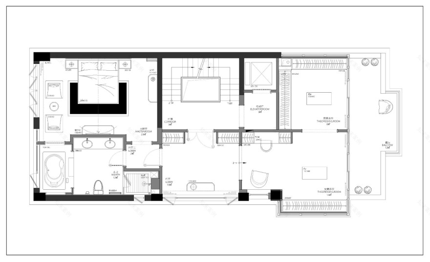
晨光中静坐,月色中观星,雨夜时煮茶,亦或呼朋赏器,执子对弈......如此,便是神仙日子。我们想要打造的从来不仅是美的视觉冲击,更希望通过空间带给居者精神层面的共振,让快节奏带来的疲累得到释放。于是,每一隅皆以一丝不苟的细节精神,从材质到空间细致打磨空间的灵性与自然。等微风乍起,白色纱幔与光随风而舞,空间自然绘就一幅诗意的画面。灵性与诗意自由穿梭其中,一切落得雅韵清浅,而况味深长。主卧,素雅的床品,克制的色调及光影变化,以浅唱低吟的方式,铺叙自然质朴的样貌,筑起纯粹的宁静氛围,让居者得以放松一切感官,享受此刻。
福州阳光城翡丽湾别墅室内实景图
福州阳光城翡丽湾别墅室内实景图
福州阳光城翡丽湾别墅室内实景图
福州阳光城翡丽湾别墅室内实景图
福州阳光城翡丽湾别墅室内实景图
福州阳光城翡丽湾别墅室内实景图
福州阳光城翡丽湾别墅室内实景图
福州阳光城翡丽湾别墅室内实景图
福州阳光城翡丽湾别墅室内实景图
福州阳光城翡丽湾别墅室内实景图
福州阳光城翡丽湾别墅室内实景图
福州阳光城翡丽湾别墅室内实景图
福州阳光城翡丽湾别墅室内实景图
福州阳光城翡丽湾别墅室内实景图
福州阳光城翡丽湾别墅室内实景图
福州阳光城翡丽湾别墅室内实景图
福州阳光城翡丽湾别墅室内实景图
福州阳光城翡丽湾别墅室内实景图
福州阳光城翡丽湾别墅室内实景图
福州阳光城翡丽湾别墅外部夜景实景图
福州阳光城翡丽湾别墅外部夜景实景图
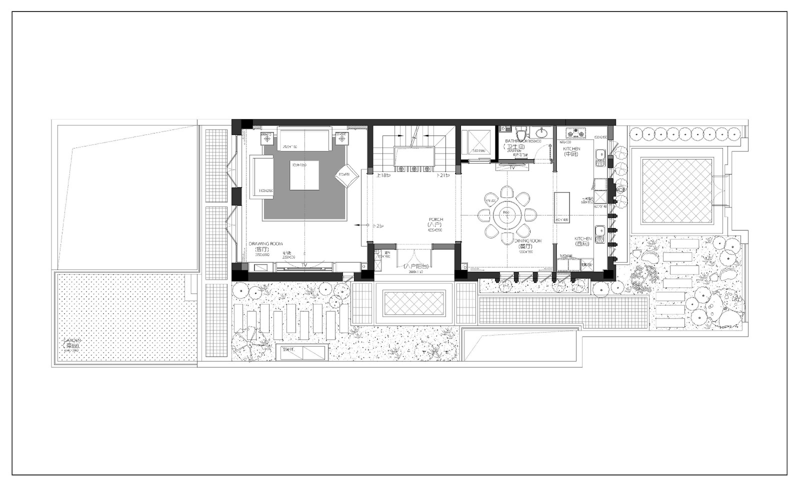
福州阳光城翡丽湾别墅平面图
福州阳光城翡丽湾别墅平面图
福州阳光城翡丽湾别墅平面图
福州阳光城翡丽湾别墅平面图
福州阳光城翡丽湾别墅平面图
客服
消息
收藏
下载
最近





























