查看完整案例

收藏

下载
项目名称:杭州复式大挑空的住宅
位置:浙江 杭州
设计公司:杭州肯纳建筑景观设计
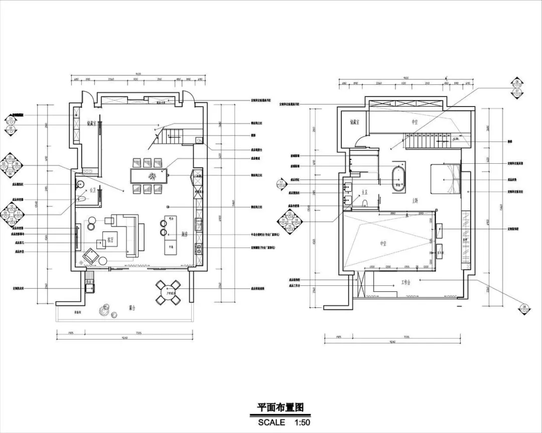
本案位于杭州钱江世纪城丽景国际,建筑面积为150m²。该项目业主是一位单身海归摄影师,具有非常高的鉴赏能力,平时喜欢在家举办各种小型聚会。设计师将层高5.4m的户型设计为双挑空跃层,所有空间都采用开放式结构,楼梯与护栏选用玻璃材质,以通透性来美化视觉感官。整体以北欧风格为主,玄关区域搭配了暖暖的灯和绿植,希望给进门者第一眼的温暖和舒适。整个客厅大面积采用白色涂料与木地板的装饰风格,虽然看似清简,没有任何多余的装饰元素,却能以极简的魅力凸显出不凡品质。选择简单、自然的生活态度,就等于选择了一种返璞归真的精神,空间看似漫不经心的搭配,实则处处都能体现对舒适生活的向往和追求。业主平时有爱看书的习惯,所以餐厅一侧设计了整面书架,餐桌一物两用,既可用餐,也可在平时作为书桌使用。
开放式厨房以白色和原木色为主,敞开式吊柜让业主开party时也能很方便的拿取物品。岛台下方一侧加入了开放式储酒柜,这样朋友来家里聚会时,取酒水就会更方便。私密的卧室设置在了二楼,半截原木背景墙在隐形灯带的衬托下,显得温馨自然。搭配几样实用性强且具有美感的东西,让空间保持了通透明亮的感觉。卧室对面是一个白色浴缸,平时业主下班累了,可以躺在里面沐浴,尽情享受繁忙过后的放松。整个卧室没有设置主光源,主要依靠床头、床围和走廊的辅助性光源,其烘托出了空间安静、舒适的休息氛围。卫生间运用黑色六边形地砖和网红小白砖,它们在灯光的映衬下,质感十足。阳台是业主最热衷的一个空间,设有养殖植物的收纳架,种上些许花花草草,圆了他一个田园梦。
杭州复式大挑空的住宅室内实景图
杭州复式大挑空的住宅室内实景图
杭州复式大挑空的住宅室内实景图
杭州复式大挑空的住宅室内实景图
杭州复式大挑空的住宅室内实景图
杭州复式大挑空的住宅室内实景图
杭州复式大挑空的住宅室内实景图
杭州复式大挑空的住宅室内实景图
杭州复式大挑空的住宅室内实景图
杭州复式大挑空的住宅室内实景图
杭州复式大挑空的住宅室内实景图
杭州复式大挑空的住宅室内实景图
杭州复式大挑空的住宅室内实景图
杭州复式大挑空的住宅室内实景图
杭州复式大挑空的住宅室内实景图
杭州复式大挑空的住宅室内实景图
杭州复式大挑空的住宅室内实景图
杭州复式大挑空的住宅室内实景图
杭州复式大挑空的住宅室内实景图
杭州复式大挑空的住宅阳台实景图
杭州复式大挑空的住宅阳台实景图
杭州复式大挑空的住宅阳台平面图
客服
消息
收藏
下载
最近

























