查看完整案例

收藏

下载
项目名称:长乐阳光城蓝光·璟月样板间
位置:福建
设计师发挥艺术的创想,以自由随性的笔法,在自然和浪漫的艺术气息中,打造了一个时尚优雅的都市空间,客厅摒弃对刻板美感的盲求,背景墙以艺术画的抽象气质,融入爱马仕橙与灰、白的对比,贴合着空间流动的时尚气息,一种恰到好处的优雅散发开来,有意模糊空间的界限,创造一种多元化的居家模式,将线条意象转译为简约的美学语素,在简约中觅得艺术的韵味。主卧背景墙以线条抒发空间情绪,舒适亲肤的床品、简单大方的装饰,光一寸一寸地落于其间,让人在简净素雅中安享生活之美,不同的场景设计,叙述不一样的空间情绪,漫延至空间的每一处细节,更加契合居者对艺术生活的向往与追求。
长乐阳光城蓝光·璟月样板间室内实景图
长乐阳光城蓝光·璟月样板间室内实景图
长乐阳光城蓝光·璟月样板间室内实景图
长乐阳光城蓝光·璟月样板间室内实景图
长乐阳光城蓝光·璟月样板间室内实景图
长乐阳光城蓝光·璟月样板间室内实景图
长乐阳光城蓝光·璟月样板间室内实景图
长乐阳光城蓝光·璟月样板间室内实景图
长乐阳光城蓝光·璟月样板间室内实景图
长乐阳光城蓝光·璟月样板间室内实景图
长乐阳光城蓝光·璟月样板间室内实景图
长乐阳光城蓝光·璟月样板间室内实景图
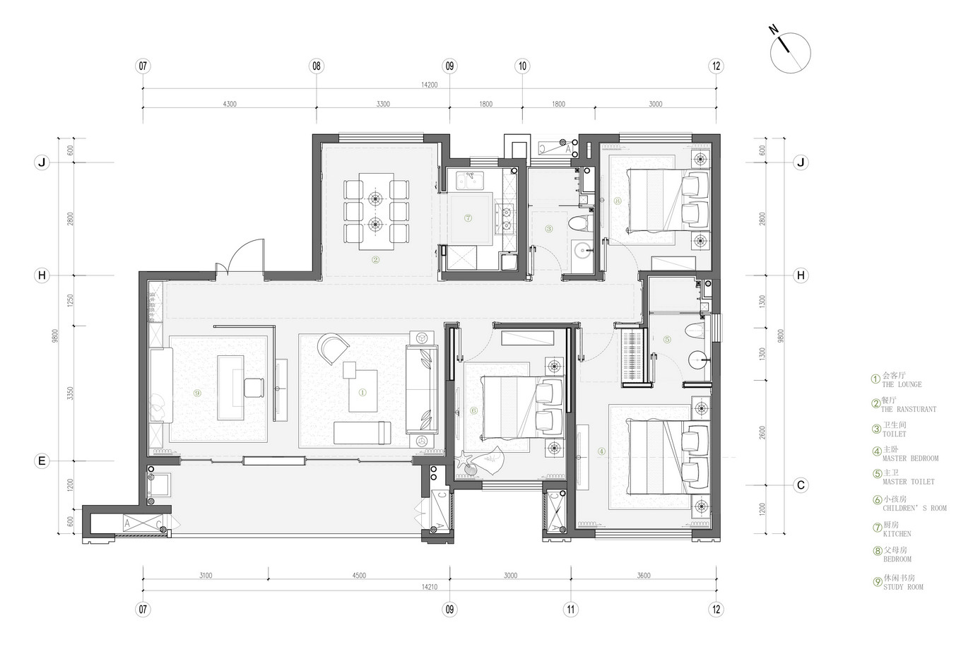
长乐阳光城蓝光·璟月样板间平面图
客服
消息
收藏
下载
最近
















