查看完整案例

收藏

下载
安德兰克莱芬酒店 (Klein Fein Hotel Anderlahn) 位于南蒂罗尔 (South Tyrol) 帕尔辛斯 (Parcines) 的边缘,以藤蔓覆盖的山坡和雄伟的山峰为背景。 根据建筑竞赛,设计了主屋的时尚而现代的扩建部分,该扩建部分可以独立运营,也可以与后者共生。
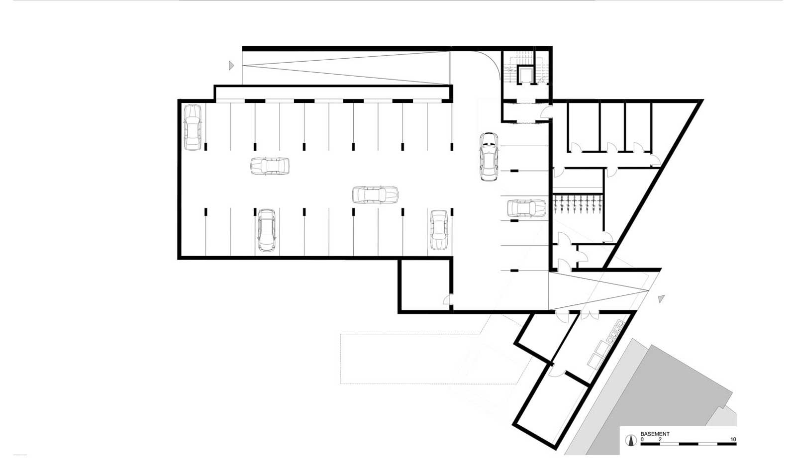
该项目分为两个建设阶段。 一期工程完成地下停车场及地面层。 在第二阶段,将建设带有豪华度假公寓的高层。 底层和上层的对比不仅体现在材料的选择上,也体现在形式上。 健康区清晰笔直的线条和斑岩覆层象征着永恒和宁静。 上层的弧形形状和木材的使用代表着轻盈和放松。
与自然密切接触的休闲是设计的核心方面。 该建筑布置在地块的南部,构成了一个中心的幸福绿洲。 无边盐水泳池被天然池塘包围,提供力量和平静,而有针对性的种植将周围的自然环境直接带入健康区。 来自内部的视觉联系与景观建立了恒定的关系。 当地材料的使用使自然成为设计的一个组成部分。 朴实的色彩和大气的光点营造出舒适的氛围。
平面与结构图:
效果与概念图:
vsszan906222200493457.pdf
,
附件:A-06.1 LP.pdf
vsszan906222200493458.pdf
,
附件:A-06.2 -1.pdf
vsszan906222200493459.pdf
,
附件:A-06.3 0.pdf
vsszan906222200493460.pdf
,
附件:A-06.4 1.pdf
vsszan906222200493461.pdf
,
附件:A-06.5 2.pdf
vsszan906222200493462.pdf
,
附件:A-06.6 3.pdf
设计师:monovolume architecture + design
坐落:Partschins / Italy / 2023
语言:English
客服
消息
收藏
下载
最近
























































